
Haus mit Einliegerwohnung: Grundriss
Das klassische Einfamilienhaus bietet, wie der Name schon sagt, Platz für eine Familie. Doch es eröffnen sich durchaus Erweiterungsmöglichkeiten. Hier kommt die Einliegerwohnung ins Spiel. In vielen Fällen dient die Einliegerwohnung zunächst zur Unterstützung der Finanzierung, indem man sie vermietet. Später, wenn die Kinder erwachsen sind, nutzen diese nicht selten die Einliegerwohnung und beziehen auf diese Weise ihr eigenes Reich. Dadurch sind sie nicht zu weit von den Eltern entfernt - und in der Regel müssen sie keine Miete zahlen. Häufig wird die Einliegerwohnung als Alterssitz für die Eltern respektive Schwiegereltern der Hausbesitzer genutzt. Insbesondere dann, wenn ein Elternteil verwitwet ist und die Nähe zu den Kindern sucht, ist das eine beliebte Alternative. Auch in diesem Fall ist räumliche Nähe bei gegenseitiger Wahrung der Privatsphäre gegeben. Es empfiehlt sich, bei einem Haus mit Einliegerwohnung den Grundriss von vorne herein entsprechend zu gestalten und auf spätere Verwendungsmöglichkeiten zu achten.
Das sollten Sie wissen:
Häuser mit Einliegerwohnung Grundrisse
Das sollten Sie bei einem Einliegerwohnung Grundriss beachten
Es ist egal, ob Sie sich bei Ihrem Hausbau für ein Massivhaus oder eine der Fertighausvarianten entscheiden, in jedem Fall muss die Einliegerwohnung bereits bei Beginn der Planungsphase berücksichtigt werden. Ein Bauplan kann selbstverständlich jederzeit geändert werden, solange der Bau noch nicht begonnen wurde, aber dies ist mit Aufwand und Kosten verbunden. Besser ist es, die Einliegerwohnung von Anfang an im Grundriss einzuplanen.
Für Häuser mit Einliegerwohnung Grundrisse erstellen
Die Erstellung eines genehmigungsfähigen Bauplanes für die Einreichung beim Bauamt ist - zumindest beim frei geplanten Haus - Aufgabe eines Architekten. Hierbei geht es nicht nur um den Grundriss, sondern es müssen auch Fragen der Statik und die entsprechenden Bauvorschriften Berücksichtigung finden. Aber der Grundriss, der aufzeigt, wie die Lage der Räumlichkeiten geplant ist, kann durchaus im Vorfeld schon vom Bauherrn erstellt werden. Das erleichtert einerseits dem Architekten seine Arbeit, weil er schwarz auf weiß bereits die Vorstellungen seiner Kunden vor Augen hat. Außerdem macht es auch noch Spaß. Es ist schön, seine Fantasie spielen zu lassen, sich vorzustellen, wo die Küche, das großzügige Wohnzimmer und selbstverständlich auch die Einliegerwohnung entstehen sollen. Dabei werfen sich jedoch einige Fragen auf.
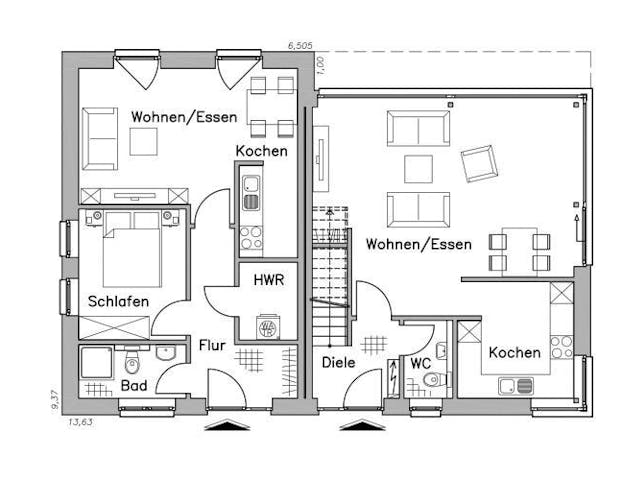
Planung eines Grundrisses eines Hauses mit Einliegerwohnung
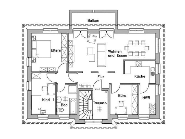
Wenn bei einem Haus mit Einliegerwohnung die Grundrisse in Arbeit sind, müssen wesentliche Dinge beachtet werden, unter anderem die Wasser- und Abwasserleitungen. Es ist empfehlenswert, beispielsweise die Badezimmer und Toiletten so anzuordnen, dass bei der Hauptwohnung im ersten Stock Bad und WC an der gleichen Stelle liegen wie ein Stockwerk tiefer in der Einliegerwohnung im Souterrain. Das ist zwar nicht zwingend notwendig, spart aber Kosten bei der Bauausführung.
Besonderheiten von Grundrissen von Häusern mit Einliegerwohnung
Eine Einliegerwohnung wird in vielen Fällen als Standbein und Unterstützung für die Finanzierung des Hausbaus geplant. Das ist an sich schon eine feine Sache, aber die Einliegerwohnung kann noch mehr bringen als nur die Erhöhung des Einkommens durch Mieteinnahmen. Viele Bauherren nutzen für die Finanzierung ihres Bauvorhabens die zinsgünstigen Kredite der KfW (Kreditanstalt für Wiederaufbau). Das Förderprogramm mit der Bezeichnung "Energieeffizient Bauen" gilt allerdings pro Wohneinheit. Wenn in einem Einfamilienhaus noch zusätzlich eine Einliegerwohnung entsteht, kann der günstige Kredit und der Tilgungszuschuss für zwei Wohneinheiten beantragt und in Anspruch genommen werden. Die finanzierbare Summe von 120.00 EUR und der Tilgungszuschuss von maximal 60.000 Euro können auf diese Weise verdoppelt werden. Das ist neben all den praktischen Vorteilen, die eine Einliegerwohnung bietet, ein weiterer Pluspunkt.















