
Kleines Haus bauen
Gerade auf Grundstücken mit wenig Platz sind kleine Häuser mit cleveren Grundrissen gefragt. Doch welche Vorteile bietet ein kleines Haus zu bauen zusätzlich und was sollte bei der Planung beachtet werden?
Bauland wird zunehmend teurer. Zu den Kosten für das Grundstück kommen Steuern und Gebühren. Vor allem in den Ballungsgebieten lässt sich der Traum vom Eigenheim damit oftmals nur schwer realisieren. Erhebliches Sparpotenzial bietet ein kleines Haus mit geringer Grundfläche: Es genügt ein überschaubares Grundstück oder eine schmale Baulücke, und wenn das kleine Einfamilienhaus in die Höhe gebaut wird, bietet es dennoch verhältnismäßig viel Platz.
Darüber hinaus eignen sich kleine Häuser bestens für Alleinstehende oder Paare mit geringem Wohnflächenanspruch; eingeschossig gebaut als Bungalow bieten sich kleine Häuser für Senioren an.
Kleines Haus bauen als flexiblere Alternative zur Eigentumswohnung
Ein kleines Haus ist die ideale Lösung für begrenztes Bauland. Außerdem stellt ein Eigenheim mit reduzierter Wohnfläche eine interessante Alternative für Baufamilien dar, die in großen Städten, wie Berlin oder Hamburg, mit eingeschränktem Flächenangebot bauen wollen. Auch auf schwierigen Arealen erweist sich ein kleines Häuschen als vorteilhaft. So können die kompakten Eigenheime beispielsweise auch an Hanglagen behaglichen Wohnraum schaffen.
Zu allein lebenden oder älteren Personen passen kleine Häuser ideal, und ermöglichen es diesen, mit mehr Freiheit und Privatsphäre leben zu können. Zudem erhalten Sie einen Garten, auf den Sie bei einer Eigentumswohnung verzichten müssten.
Kostengünstig
Platzsparend
Variable Gestaltung
Nachhaltiges Wohnen

Empfohlene kleine Einfamilienhäuser

Kostenlos Kataloge & Informationen anfordern!
Seien Sie bestens informiert bei Ihrer Traumhauswahl! Fordern Sie Informationen von Baupartnern in Ihrer Nähe an, um bei der Entscheidung gut vorbereitet zu sein.
Kataloge anfordernKleines Haus bauen: Kosten
Mit ihrem übersichtlichen aber intelligenten Grundriss reduzieren kleine Einfamilienhäuser die beim Bau anfallenden Kosten um ein Vielfaches. Ein kleines Haus zu bauen ist vergleichsweise günstig. Wenn Sie zusätzlichen Einfluss auf den Preis nehmen möchten, können Sie dies vor allem im Rahmen der jeweils vereinbarten Ausstattungsmerkmale und der verbauten Materialien tun. Gerade bei kleinen Häusern bietet sich der Baustoff Holz an. Zudem lässt sich durch Eigenleistungen - die sogenannte Muskelhypothek - oftmals noch ein wenig an den Lohnkosten für die Gewerke einsparen. Schlüsselfertig können Sie, wenn Sie ein kleines Haus bauen, von Kosten von im Schnitt 2.500 bis 3.000 Euro im mittelpreisigen Bereich ausgehen, entsprechende Kleinhäuser mit 90 Quadratmeter kosten also 225.000 bis 270.000 Euro.
Kleines Haus bauen, wenig bezahlen!
Kleine Häuser unter 100 Quadratmeter, die auf unserer Seite angeboten werden, finden sich zu Durchschnittspreisen analog zu denen aus der Grafik, welche als Richtwerte zu sehen sind. Es können teils große Schwankungen auftreten.
Wie teuer ist es, ein kleines Haus zu bauen?
Ein kleines Haus bauen mit 100 qm – was kostet das insgesamt? Um Ihnen alle Kosten rund um den Bau eines kleinen Einfamilienhauses in Gänze beispielhaft darzulegen, kalkulieren wir hier das Budget für ein entsprechendes schlüsselfertiges 1,5 geschossiges kleines Haus mit mittlerer Ausstattungsgüte (Quadratmeterpreis 2.600 Euro) auf 440 qm Baugrund in Thüringen (Durchschnittlicher Quadratmeterpreis für baureifes Wohnbauland laut Destatis: rund 77 Euro). Zusätzlich gehen wir von einer Unterkellerung zu 1.000 Euro pro Quadratmeter aus.
Des Weiteren berücksichtigen wir hier rund 20 % der Bausumme an Baunebenkosten, plus Ausgaben für die Außenanlage und Sonstiges wie das Richtfest oder den Umzug.
| KOSTENFAKTOR | PREIS |
|---|---|
| Kleines Haus: Preis | 260.000 Euro |
| Grundstück | 33.880 Euro |
| Keller | 66.600 Euro |
| Außenanlage | 26.000 Euro |
| Baunebenkosten | 52.000 Euro |
| Sonstige Kosten | 15.000 Euro |
| = Kleines Einfamilienhaus: Kosten gesamt | 423.480 Euro |
Kleines Haus: Merkmale
Die tatsächliche Wohnfläche der Kleinhäuser variiert von Anbieter zu Anbieter. Grundsätzlich gilt: Ein kleines Haus zu bauen heißt nicht, dass in den entsprechenden Gebäuden kein Platz vorhanden ist. Zwar sind vor allem die kleinsten Varianten auf das Notwendigste reduziert, dafür aber überzeugt ein kleines Häuschen in der Regel durch intelligente Verstaumöglichkeiten. Ein kleines Haus bietet selbst Familien ausreichend Raum - vorausgesetzt, Dach und Keller werden in die Planungen einbezogen. So kann im oberen Geschoss wahlweise ein Rückzugsgebiet für die Eltern oder das eigene Reich für den Nachwuchs entstehen. Auch ein mit Tageslicht versehener Wohnkeller kann unter Beachtung der gesetzlichen Vorschriften als zusätzlicher Wohnraum genutzt werden und vergrößert so die Grundfläche des Eigenheims.
In Sachen Individualität stehen die besonders für Singles, Paare, Senioren und kleine Familien geeigneten Kleinhäuser ihren größeren Verwandten in keiner Weise nach. Moderne Stadthäuser und ausgefallene Architektur sind ebenso möglich wie klassische Einfamilienhäuser oder Bungalows mit nur einer Geschossebene. Die Produktpalette ist sehr vielfältig und abwechslungsreich. Generell sind hierbei kleine Häuser unter 100 Quadratmeter gemeint.
Vorteile & Nachteile beim Bau eines kleinen Hauses
Kleines Haus Vorteile
Kleine Häuser kosten weniger in der Anschaffung
Perfekt für kleines Grundstück durch kleine Grundfläche
Einfachere Instandhaltung und Pflege
Weniger Material- und Baukosten
Geringerer Energieverbrauch als größere Häuser
Optimale Nutzung des verfügbaren Wohnraums
Kleines Haus Nachteile
Kaum Raum für (größere) Familien
Bei zwei Geschossen eher wenig geeignet für altersgerechtes Wohnen
Eventuell Abstriche in Sachen Komfort
Anpassung an neue Lebenssituationen nur schwer möglich (z.B. Nachwuchs)
Wählen Sie jetzt ein passendes kleines Haus aus
Beliebte kleine Häuser
Ebenerdiges kleines Haus für Senioren
Kleines Haus bauen mit 80 qm: Schlüsselfertige Preise
Kleines Haus bauen mit 60 qm
Kleines Haus bauen mit 100 qm
Inspiration für schöne kleine Häuser
Kann man ein kleines Haus selber bauen?
Wie weiter oben erläutert, können Sie selbstverständlich die Kosten Ihres kleinen Hauses durch Eigenleistungen um die eingesparten Handwerkskosten senken. Bedingungen hierfür sind handwerkliches Geschick und ausreichend Zeit.
Bedenken Sie zudem, dass zu den niedrigeren Hauspreisen beim Bausatz- oder Ausbauhaus auch immer noch Aufwendungen für zusätzliche Materialien, gemietete Gerätschaften und persönlich beauftragte Gewerke wie beispielsweise für die Elektroinstallation hinzukommen.
Nicht zuletzt können Verzögerungen beim Bau – wie etwa aufgrund doppelter Ausgaben für Miete und Baukredit – und selbst herbeigeführte Baumängel zu Mehrkosten führen.
Generell raten wir dazu, im Zweifelsfall lieber die höhere Ausbaustufe bis hin zum bezugsfertigen Objekt zu wählen, da Sie dann in den meisten Fällen von einem komfortablen Alles-aus-einer-Hand-Service Ihres Anbieters und einer Festpreisgarantie profitieren.
Nichtsdestotrotz können Sie bei passenden Voraussetzungen, darunter Profi-Handwerkskenntnisse und tatkräftige Unterstützung, sehr wohl Ihr kleines Haus selber bauen oder zumindest den Innenausbau übernehmen und so Baukosten einsparen.
Kleines Haus selber bauen als Bausatz
Kleines Häuser zum selber ausbauen
Kleines Haus schlüsselfertig bis bezugsfertig
Kleines Haus bauen: Grundstück & Wohnfläche optimal nutzen
Tipps für Grundstücke mit wenig Platz
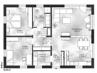
Kleines Haus: Grundriss
Wenn Sie ein kleines Haus bauen, bringt die geringere Wohnfläche mit sich, dass die durchdachte Planung des Grundrisses umso wichtiger wird, um am Ende ein Eigenheim mit Wohlfühlfaktor zu erhalten.
Die folgenden Punkte helfen dabei, den Grundriss für ein kleines Einfamilienhaus effektiv zu gestalten:
- Ein offener Grundriss vergrößert optisch das Haus
- Flure und Treppenhäuser so klein wie möglich planen
- Platz unter Treppen als Stauraum nutzen
- Schmale Fenster und Schiebetüren verwenden
- Bodentiefe Fenster vermeiden für Stellfläche unter den Fenstern – allerdings sorgen Glasfronten für viel Licht und ein Gefühl von Weite im Hausinneren
- Räume ggf. mit Schiebeelementen in mehrere Bereiche trennen
- Arbeitsplatz im Schlafzimmer integrieren
- Ggf. Dachgeschoss und Keller für Wohn- und Stauraum mit einplanen
Ebenfalls wichtig: Kleine Räume geschickt einrichten. Dazu bieten sich Multifunktionsmöbel an sowie ausklappbare/ausfahrbare Einrichtungen. Zum Beispiel kann das Bett tagsüber hochgeklappt werden oder man entscheidet sich gleich für eine Schlafcouch. Stauraum sollte ebenfalls clever geplant werden.

Einbaulösungen sind immer eine ideale Wahl, wenn es darum geht, effizient Stauraum zu schaffen. Besonders kostengünstig kann dafür das Schranksystem Ivar von Ikea genutzt werden. Es ist sehr vielseitig einsetzbar und erweiterbar. Streichen Sie es Ton-in-Ton zur Wandfarbe, tritt es zudem dezent in den Hintergrund. Oder Sie lassen es direkt hinter Fronten oder Vorhängen verschwinden. Ein weiterer Tipp für die Einrichtung kleiner Räume ist das Anbringen von hängenden Regalen. Durch den Effekt der Wandmontage wirken der Raum luftiger und die Wände nicht so zugestellt.
Wer baut kleine Häuser? Anbieter in Deutschland und Österreich
Mit einer Baufirma ist es entspannter und weniger zeitaufwendig, als ein kleines Haus selber von Grund auf zu bauen. Zudem können Sie sicher sein, dass am Ende alles zusammenpasst und reibungslos läuft. Schon im Voraus liegt der Grundriss Ihres kleinen Hauses vor, was praktisch ist, um sich bereits passende Einrichtungsstücke auszusuchen.
Für kleine Häuser unter 100 Quadratmeter bietet so gut wie jede Baufirma passende Objekte an. Darunter befinden sich sowohl kleine Holzhäuser als auch massivgebaute Kleinsthäuser. Bei uns auf der Seite finden Sie eine große Anzahl an Anbietern, die ein kleines Haus bauen und nach Ihren Wünschen anpassen können.
Baufirmen, die kleine Häuser bauen
Kleines Haus bauen: Häufige Fragen

Finden Sie heraus, welches Haus am besten zu Ihnen passt!
In unserem Quiz können Sie wichtige Eckdaten festlegen, verstehen, welches Haus zu Ihnen passt und herausfinden, welche Baupartner es am besten bauen können.
Hausbau-Assistenten starten























































































































































































































