
Satteldachhaus bauen
Schaut man sich in einer typischen Wohnsiedlung um, wird schnell klar, dass das Einfamilienhaus mit Satteldach die vorherrschende Form des Eigenheims darstellt. Und hierfür gibt es überzeugende Gründe: Denn ein Haus mit Satteldach eröffnet unterschiedlichste Gestaltungsmöglichkeiten, während die Konstruktionsweise unkompliziert und simpel ist.
Folglich sind bei einem Satteldach die Kosten aufgrund des einfachen Aufbaus im Vergleich zu anderen Dachformen relativ niedrig. Außerdem erweist sich ein Satteldachhaus dank seiner robusten Bauweise als sehr wetterfest, weil sich die Dachneigung flexibel an die meteorologischen Gegebenheiten anpassen lässt. So schützen Sie Ihr Zuhause effektiv vor Witterungseinflüssen, die für Ihre Region typisch sind.
Welche weiteren Vorteile ein Satteldachhaus aufweist, welche Kosten und Preise mit dieser Dachform einhergehen, welche Neigungswinkel und Variationen es gibt und weitere wissenswerte Fakten über diesen klassischen und zugleich zeitlosen Haustyp haben wir im Folgenden für Sie zusammengestellt.
Empfohlene Satteldachhäuser

Kostenlos Kataloge & Informationen anfordern!
Seien Sie bestens informiert bei Ihrer Traumhauswahl! Fordern Sie Informationen von Baupartnern in Ihrer Nähe an, um bei der Entscheidung gut vorbereitet zu sein.
Kataloge anfordernWas ist ein Haus mit Satteldach?
Das auch Giebeldachhaus genannte Satteldachhaus steht für eine der gängigsten Dachformen im europäischen Raum. Diese besteht aus zwei üblicherweise gleich großen Dachflächen, die gegeneinander geneigt und am höchsten Punkt, dem Dachfirst, verbunden sind. Der Neigungsgrad eines Satteldaches ist hierbei variabel. Getragen wird ein Satteldach durch einen Dachstuhl aus Sparren und Balken, verschiedene Arten der Dachkonstruktion sind dabei möglich.
Die ansprechende schlichte Ästhetik eines Hauses mit Satteldach lässt sich mit diversen Details attraktiv variieren, ob mit untereinander unterschiedlichen Neigungswinkeln und Dachflächen sowie diversen Deckungsarten, Dachfenstern, Dachüberstand, Gauben, einem Dachbalkon oder einer Terrasse oder auch einem zweiten kleineren Satteldach senkrecht integriert im Hauptdach, dem sogenannten Zwerchhaus.
So können Sie diese bewährte Dachart auch durchaus mit einem ausgefallenem Design wie bei einem Architektenhaus mit Satteldach in Bauhausstil kombinieren, oder Sie entscheiden sich für die edle Eleganz einer Stadtvilla mit Satteldach.
Was charakterisiert ein klassisches Satteldachhaus?
Das klassische Haus mit Satteldach ist ein 1,5- bis mehrstöckiges Einfamilienhaus mit typischer Giebeldachform, welches dank seiner dezenten Optik keinen modischen Trends unterworfen ist und daher immer zeitgemäß wirkt. Das Einfamilienhaus mit Satteldach zeichnet sich meist durch ein Voll- sowie ein Dachgeschoss mit charakteristischen Winkeln und Schrägen aus.
Die schlichte gängige Grundform bedingt auch einen der zahlreichen Vorteile dieser Art der Überdachung, denn die schnörkellosen, rechteckigen Flächen eines Satteldachs lassen sich mit minimalem Aufwand immer wieder instand setzen.
Eine individuelle Note erhält diese traditionelle Form des Eigenheims durch Anbauten, beispielsweise bei einem Satteldachhaus mit Erker und Wintergarten, oder durch Gestaltungsspezifika wie bei der Fassade.
Satteldach: Kosten & Preise
Dank der unkomplizierten Dachkonstruktion gehört das Satteldach zu den günstigsten Dachformen und schlägt – je nach Bauregion, Neigungswinkel, Materialien und Eindeckung – mit im Schnitt 170 Euro pro Quadratmeter einschließlich Dachstuhl, Dämmung und Deckung zu Buche. Bei einer Dachfläche von 130 Quadratmetern belaufen sich für Ihr Satteldach die Kosten also durchschnittlich auf 22.100 Euro. Sonderausführungen wie beispielsweise Dachgauben werden zusätzlich berechnet und erhöhen bei Ihrem Satteldach die Kosten.
Ein Satteldachhaus kann im Vergleich zu einem ansonsten baugleichen Objekt mit anderer Überdachung also durchaus günstiger realisiert werden, weshalb Sie bei unseren Anbietern ein schlüsselfertiges Haus mit Satteldach schon ab rund 170.000 Euro reinem Hauspreis finden.
Satteldach: Aufbau
Beim Bau eines Hauses mit Satteldach kommen vorrangig zwei Dachstuhlarten in Fragen: das Pfettendach oder das Sparrendach. Doch worin unterscheiden sich diese beiden Bauweisen?

Neben diesen beiden maßgeblichen Typen des Satteldach-Aufbaus, Sparrendach und Pfettendach, gibt es zudem noch das Kehlbalkendach (nur noch selten gebaut), das Warmdach und das Kaltdach.
Der Unterschied der letzteren beiden besteht darin, dass bei einem Warmdach die Dachkonstruktion des Satteldaches einschalig ist und bei einem Kaltdach zweischalig. Somit liegen bei der einschaligen Konstruktion alle Schichten aufeinander, während bei der zweischaligen Bauform zwischen Dachhaut und Dämmung ein Luftspalt integriert wird.
Symmetrisches & asymmetrisches Satteldachhaus
Auch anhand ihrer Dachflächenwinkel können sich Satteldachhäuser in ihrem Aufbau unterscheiden:
- Symmetrisches Haus mit Satteldach: Der Winkel beider Dachflächen oben am Dachfirst ist identisch.
- Asymmetrisches Haus mit Satteldach: Die Dachflächen haben unterschiedliche Neigungswinkel. Dabei können auch die Sparren unterschiedliche Längen haben, was ein Dach mit zwei unterschiedlich großen Dachflächen und damit ein auffälliges Erscheinungsbild bedingt.
Wählen Sie jetzt ein passendes Satteldachhaus aus
Welche Dachneigung hat ein Satteldach?
Vornehmlich haben Häuser mit Satteldach eine Neigung zwischen 38 und 45 Grad, da so ausreichend Platz für den Ausbau des Dachgeschosses vorhanden ist. Je nach Dachneigung des Satteldaches gelten unterschiedliche Bezeichnungen:
- Bis 30 Grad - Flaches Satteldach
- Bei 45 Grad - Winkeldach oder neudeutsches Dach
- Ab 60 Grad - Altfränkisches oder altfranzösisches Dach (Form eines gleichseitigen Dreiecks)
- Ab 62 Grad - Altdeutsches oder gotisches Dach
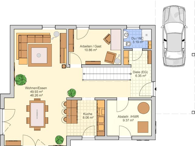
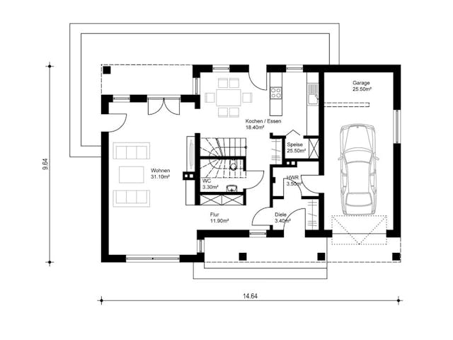
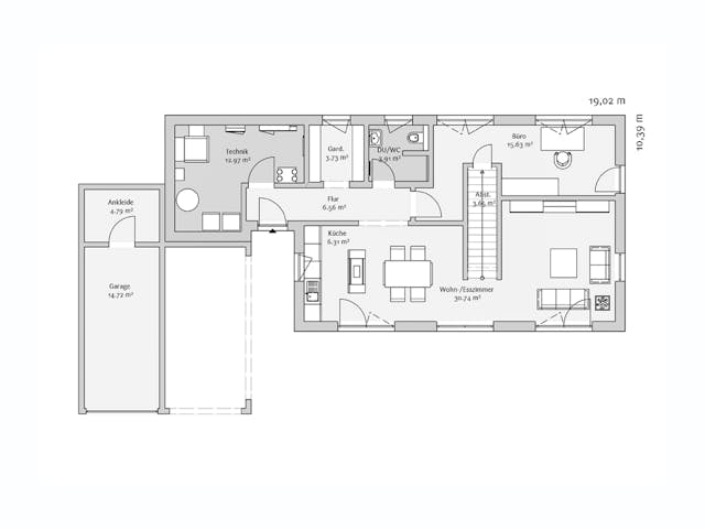
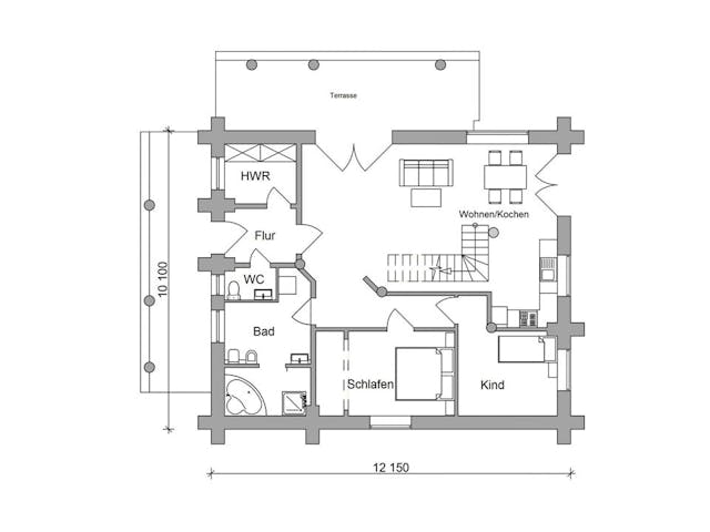
In der Galerie sehen Sie Beispiele für verschiedene Neigungswinkel beim Satteldachhaus.
Der Kniestock beim Haus mit Satteldach
Als Kniestock wird die Wandhöhe im Innenraum vom Fußboden bis zum Beginn der Dachschräge bezeichnet. Bei einer Änderung der Kniestockhöhe verändert sich ebenso der nutzbare Wohnraum des Dachgeschosses in Ihrem Satteldachhaus. Je nachdem, welche Firsthöhe laut Bebauungsplan zulässig ist und wie Ihr Satteldach geneigt ist, sollte die Kniestockhöhe entsprechend angepasst werden. Bei einem Satteldach mit 45 Grad ist – vorbehaltlich lokaler Bauvorschriften – eine Kniestockhöhe zwischen 40 und 80 Zentimetern möglich. Zudem empfiehlt sich zu beachten, dass, je größer die Dachneigung ist, desto größer die Spannweite und desto mehr Holz für die Herstellung benötigt wird, was sich auch auf die Satteldach-Kosten auswirken kann.
Dachneigung Satteldach in windigen & regenreichen Regionen
In Regionen mit stärkeren Winden und häufigem Regen weisen Satteldachhäuser meist einen steileren Neigungsgrad auf, da so das Wasser leicht abfließen kann und die Dachflächen schneller trocknen. Somit wird dem Eindringen von Feuchtigkeit vorgebeugt und Wasserschäden im Dachstuhl können verhindert werden. Üblich ist hier also eine Dachneigung beim Satteldach über 30 Grad.
Dachneigung Satteldach in schneereichen Regionen
In Gebieten mit häufigen und heftigen Schneefällen wird für Häuser mit Satteldach in den meisten Fällen ein flacherer Neigungsgrad gewählt, der ein unkontrolliertes Abrutschen der Schneemassen verhindert. Nichtsdestotrotz sollte man auf ein sehr flaches Dach in solchen Regionen verzichten, da sonst eine größere Gefahr besteht, dass die Überdachung unter großen Schneemassen einbricht. Typisch ist daher der charakteristische alpenländische Stil mit einem Satteldach mit 20 Grad Neigung.
Bevor jedoch die Entscheidung für einen entsprechenden Neigungswinkel getroffen wird, ist der Blick in den Bebauungsplan der Region ratsam. Oftmals wird dort eine gewisse Maximalhöhe für Dachfirste und Traufen vorgeschrieben. Um diese nicht zu überschreiten, bietet sich daher häufig ein flacheres Satteldach an, was gleichzeitig eine effizientere Nutzung des Wohnraums im Dachgeschoss ermöglicht.
Welche Vor- und Nachteile hat ein Haus mit Satteldach?
Satteldachhaus Vorteile
Sehr witterungsbeständig
Einfache Konstruktion
Geringer Wartungsaufwand
Kostengünstig
In den meisten Wohngebieten genehmigt
Satteldachhaus Nachteile
Eingeschränkter Wohnraum durch Dachschrägen
Weniger Tageslicht bei kleinen Dachfenstern
Beliebte Häuser mit Satteldach
Schlüsselfertiges Einfamilienhaus mit Satteldach
Stadtvilla mit Satteldach
Haus mit Garage & Satteldach
Bungalow mit Satteldach
Wie energieeffizient sind Satteldachhäuser?
Beim Hausbau müssen die im Gebäudeenergiegesetz (GEG) genannten Grenzwerte eingehalten werden – selbstverständlich erfüllen alle neugebauten Satteldachhäuser, egal ob Fertighaus oder Massivhaus, diese Anforderungen. Dank intelligenter Konstruktion und hochwertiger Materialien erreicht ein aktuelles Haus mit Satteldach zudem eine exzellente Wärmedämmung und erlaubt die Umsetzung verschiedenster Energiestandards.
Ob KfW-40-Effizienzhaus oder sogar Passiv- oder Ökohaus, unsere Baupartner entwickeln gemeinsam mit Ihnen das passende Energiekonzept für Ihr Satteldachhaus. So profitieren Sie von modernsten Technologien wie Wärmepumpe und Photovoltaik und schonen gleichzeitig mit nachhaltigen Heizsystemen die Umwelt und Ihren Geldbeutel.
Welche Baufirmen bauen Satteldachhäuser?
Satteldachhaus: Häufige Fragen


























































































