
Toskanahaus bauen
Sie fragen sich, welche Merkmale ein Toskanahaus und die mediterrane Villa im Speziellen auszeichnen? Sie wollen erfahren, wie man ein mediterranes Haus innen einrichtet? Lesen Sie im Folgenden alles über mediterrane Häuser und lernen Sie renommierte Baupartner kennen.
Unser Tipp: Wenn Sie sich für den italienischen Häuser-Stil interessieren und als erstes Ihr Finanzvolumen klarstellen möchten, erläutern wir Ihnen auf unserer dazugehörigen Unterseite, wie viel ein Toskanahaus kostet.
Mit einem Toskanahaus Urlaubsfeeling nach Hause holen
Ein Wohngefühl voll Wärme, Urlaubsatmosphäre und südländischer Gelassenheit: ein Toskanahaus steht für mehr als nur Wohnraum. Denn der mediterrane Baustil vermittelt eine ganz besondere geschichtsträchtige Kultur, heitere Lebensart und die Erinnerung an Reisen voller bewegender Erlebnisse und Entspannung.
All das kann mit dem Bau eines mediterranen Hauses in Fertig- oder Massivbauweise für Ihr neues Zuhause in die Realität umgesetzt werden – und Sie genießen im Alltag das stimmungsvolle Mittelmeer-Flair Ihres Eigenheims. Dabei lassen sich architektonische Details, die ursprünglich als Schutz gegen die Hitze dienten, beim mediterranen Haus in unseren Breitengraden leicht als Bollwerk gegen Kälte und schlechte Witterung umfunktionieren. So können Sie ein Haus mediterran mit modernen Energiestandards planen, weshalb ein Toskanahaus demnach selbst in Bergregionen problemlos möglich ist – Südtirol lässt grüßen!
Haus in mediterranem Stil: geprägt durch verschiedene Regionen
Warme Farben, mal pastellig, mal kräftig, mit Dächern in Rot-Orangetönen zeichnen bei italienischen Häusern den Stil aus. Wer ein mediterranes Haus bauen möchte, der hat häufig Bilder von Weinbergen mit sanften Hügeln und dunklen Zypressen vor Augen – kein Wunder, ist doch das Toskanahaus eines der beliebtesten Eigenheime in dieser Architekturrichtung.
Weißverputzte Fassaden als Kontrast zum tiefblauen Meer und gleichfarbigen Tür- und Fensterläden bestimmen dagegen den mediterranen Baustil Griechenlands.
Und wer vom spanischen Festland und den beliebten Inseln träumt, für den ist es besonders reizvoll, eine rustikale Finca zu bauen, die ebenfalls teils hell verputzt und mit viel Naturstein gestaltet ist.
Ein mediterranes Haus vereint entweder die Vorzüge aller Bauweisen Südeuropas oder orientiert sich an den Merkmalen einer spezifischen Region. Als Synonym für mediterrane Häuser wird gerne pars pro toto die Bezeichnung Toskanahaus verwendet.
Fassadengestaltung mediterran
Mediterrane Hausfassaden unterscheiden sich je nach der zugrunde liegenden Ursprungsregion und werden häufig in sonnigen Gelb-, natürlichen Terrakottatönen oder strahlend weiß verputzt. Typisch sind des Weiteren Akzente mit Stein- oder Ziegelwerk, beispielsweise mit Klinkerriemchen eingefasste Rundbögen über dem Eingangsbereich und umlaufenden Vordächern, oder aber auch eine komplette Fassadengestaltung mit mediterranen Natursteinen. Auch durch Material und Farbe abgesetzte Säulen unterstreichen diese Wirkung. Einen nostalgischen Hauch bringen gusseiserne Elemente wie Laternen nachempfundene Außenbeleuchtung oder auch dunkles Holz, beispielsweise zur Gestaltung der Unterseite des Dachüberstands.
In Deutschland und Österreich gewinnt der mediterrane Baustil schon seit längerer Zeit und fortwährend immer mehr Beliebtheit. Ganz gleich, ob das komplette Eigenheim mit sämtlichen mediterranen Haus-Details ausgestattet ist oder ob nur einzelne kleine Elemente das Zuhause schmücken, die gemütlichen und zugleich sehr stilvollen Bauten haben absoluten Urlaubscharakter.
Dies gilt auch dann, wenn Sie Ihr mediterranes Haus innen einrichten: Sichtbare Deckenbalken, grober weißer Putz und das typische warme Farbschema bilden einen charmanten Gegensatz von Rustikalität und Geborgenheit, dunkle aber in der modernen Variante auch hellere Holzmöbel, schmiedeeiserne und Naturstein-Elemente und naturweiße Textilien sorgen für das Extra an Gemütlichkeit.
Was zeichnet ein mediterranes Haus aus?
Der mediterrane Baustil bringt Urlaubsstimmung ins eigene Zuhause und sorgt für eine echte Wohlfühlatmosphäre. Doch was genau macht ein Gebäude eigentlich zu einem mediterranen Haus? Hier eine Übersicht:
Beim Toskanahaus den Bebauungsplan beachten
Bevor Sie sich dazu entscheiden, ein mediterranes Haus zu bauen, sollten Sie einen Blick in den vorliegenden Bebauungsplan Ihrer Bauregion werfen. In einigen Wohngebieten werden bestimmte Haustypen und Baustile vorgeschrieben, wodurch mediterrane Häuser mitunter nicht gestattet sein könnten. Achten Sie auch darauf, ob zum Beispiel eine mediterrane Stadtvilla erlaubt ist. Dieser Haustyp ist mit der beliebteste für ein Toskanahaus.
Toskanahaus mit schlüsselfertiger Übergabe
Mediterranes Haus massiv bauen
Haus mediterran mit modernen Energiestandards
Mediterrane Villa: Mittelmeer-Eleganz
Eine mediterrane Stadtvilla teilt viele der üblichen Elemente des Toskanahauses. Dazu gehören warme Farben von Goldgelb bis Burgunderrot, die kräftig oder in Pastelltönen gehalten sein können, und natürliche Materialien. Das Dach ist normalerweise als Zeltdach ausgeformt, es kommen jedoch auch Walmdächer vor. Häufig weist eine Stadtvilla im mediterranen Stil das charakteristische umlaufende Vordach auf, genau wie ausladende Balkone und Terrassen mit Arkaden, Rundbögen und Säulen. Dekorative Klappläden und Sprossenfenster runden bei einer Villa den mediterranen Eindruck ab.
Mediterrane Villen sind in der Regel quadratisch und zweigeschossig, wobei das zweite Geschoss ebenfalls als Vollgeschoss ausgebildet ist. Dadurch entfallen störende Dachschrägen und es ergibt sich eine großzügige Wohnfläche. Der Grundriss mediterraner Villen ist geradlinig, zeitlose Eleganz ersetzt verspielte Schnörkel. Vorhandene Nischen können als Stauraum genutzt werden, beispielsweise der Raum unter der Treppe. Ein Eingangsbereich mit offenem Übergang zum Wohnbereich ist ebenso typisch wie eine offene Küche in der Villa im mediterranen Stil.
Mediterrane Villa: Alle Angebote
Passender Garten im mediterranen Stil
Egal ob als gemütlicher Bungalow oder luxuriöse Villa, wenn Sie sich dazu entscheiden, ein mediterranes Haus zu bauen, dann bietet es sich an, Ihren Garten im passenden Stil zu entwerfen.
Ein Außenpool rundet bei italienischen Häusern den Stil des Gebäudes perfekt ab. Erfüllen auch Sie sich diesen Traum und betten Sie Ihren Pool in ein Meer aus am Mittelmeer beheimateten Pflanzen ein. Folgende Gewächse wirken besonders authentisch und umhüllen Ihr mediterranes Haus nicht nur mit einem Blütenmeer sondern herrlichen Düften:
- Lavendel
- Oleander
- Bougainvillea
- Zitrusbäume
- Loorbeer
- Weinpflanzen
- Olivenbäume
- Auch mediterrane Kräuter wie Thymian, Oregano, Basilikum und Rosmarin punkten nicht nur mit schöner Optik, sondern sind zugleich köstliche Küchenhelfer
Des Weiteren können Sie den Garten Ihres Toskanahauses durch eine Pergola mit Säulen verschönern und schaffen zusätzliche Schattenplätzchen. Gartenmöbel aus Holz in warmen Tönen oder im romantisch-verspielten Metall-Look fügen sich somit harmonisch in das Gesamtbild ein. Wer es besonders ausgefallen mag, kann sich noch einen Steinofen an die Terrasse seines mediterranen Hauses stellen und seine Pizza traditionell zubereiten.
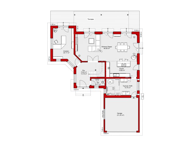
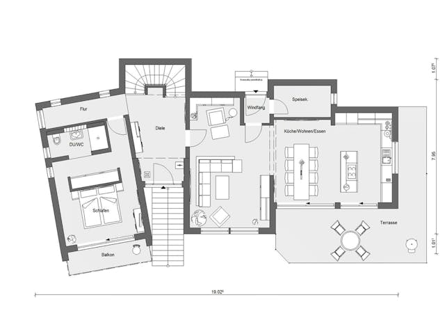
Toskanahaus & mediterraner Baustil: Grundriss
Der Grundriss mediterraner Häuser ist oft quadratisch, hier ergänzt ein Zeltdach oder in den meisten Fällen ein Krüppelwalmdach die typische Form. Durch diese kompakte Bauweise eignet sich ein Massiv- oder Fertighaus im mediterranen Stil auch für kleinere Grundstücke. Wer noch mehr Platz möchte, kann bei vielen Modellen das Dach als Freisitz ausbauen lassen. Zwei Etagen oder Staffelgeschosse bieten reichlich Wohnfläche.
Darüber hinaus können bei mediterranen Villen landestypische Anbauten vielfältig genutzt werden: Der Ausbau als angegliedertes Gartenhaus oder als Arbeitsraum ist möglich. Wer ein mediterranes Haus mit Garage plant, für den sind diese klassischen Nebengebäude ideal. Verziert mit Bögen und Säulen, passen sie sich perfekt an das Wohnhaus an. Mit passenden Pflanzen, Statuen und Ergänzungen wie beispielsweise einem Pool, wird das südliche Flair in heimischer Umgebung perfekt.
Toskanahaus: Grundrisse vergleichen
Anbieter für mediterrane Häuser
Toskanahaus: Häufige Fragen

































































