Haus mit Garage bauen

Gerade am Stadtrand und im ländlichen Raum ist ein eigenes Fahrzeug fast unverzichtbar. Planen Sie direkt Ihren Hausbau mit Garage, so lässt sich der geschlossene Unterstellplatz meist nicht nur kosteneffizienter, sondern auch mit einer besonders harmonischen und einheitlichen Optik umsetzen. Daher entscheiden sich die meisten Baufamilien direkt für ein Haus mit Garage, sofern das Grundstück groß genug ist. Als platz- und kostensparende Alternative kommt aber auch für Viele ein Carport fürs Haus infrage.
Definiert ist eine Garage als eine überdachte, durch Wände umschlossene und abschließbare Abstellmöglichkeit für Fahrzeuge. Die Garage dient zum Schutz des PKWs vor Witterungseinflüssen und Diebstahl. Größere Einstellräume lassen sich außerdem zum Abstellen von Fahrrädern, Gartengeräten und zum Lagern von Werkzeug verwenden. Die zusätzliche Nutzung als Hobbyraum ist ebenfalls möglich.
All das erlaubt ein Carport nicht. Dennoch bietet auch die offene Stellplatzvariante einen gewissen Schutz und kann als günstige Alternative zur Garage ausreichen.
Im Folgenden stellen wir beide Varianten gegenüber und beleuchten weitere wissenswerte Fakten rund um den Hausbau mit Garage, von den Kosten eines Hauses mit Doppelgarage bis hin zum idealen Grundriss eines Hauses mit Garage.

Empfohlene Häuser mit Garage oder Carport

Kostenlos Kataloge & Informationen anfordern!
Seien Sie bestens informiert bei Ihrer Traumhauswahl! Fordern Sie Informationen von Baupartnern in Ihrer Nähe an, um bei der Entscheidung gut vorbereitet zu sein.
Kataloge anfordernWie groß muss bei einem Haus die Garage sein?
Die Größe einer Garage am Haus hängt zunächst von der Anzahl der zu parkenden Autos ab. Eine Einzelgarage sollte min. 3 m breit und 5 m tief sein.
Beim Haus mit Doppelgarage gibt es verschiedene Anordnungsmöglichkeiten:
- Klassische Doppelgarage (2 Autos nebeneinander): min. 6 m breit und 5 m tief
- Langgarage (2 Autos hintereinander): min. 3 m breit und 9 m tief
- Duplexgarage (2 Autos übereinander): min. 3 m breit und 5 m tief
Die angegebenen Größen beziehen sich auf die Gesamtlänge und -höhe (so wie auch bei Herstellern oft angegeben). Um die reine Durchfahrtsbreite und -höhe zu ermitteln, ziehen Sie bei der Breite ca. 50 cm ab und bei der Höhe ca. 30 cm. Die meisten Garagen sind zwischen 2,20 m und 2,50 m hoch. Lediglich die Duplexgarage sollte eine Höhe von 3 bis 3,50 m haben. Stellplätze für Fahrräder und Motorräder sind bei den Mindestmaßen nicht beachtet.
Haus mit Garage planen
Über unsere Häusersuche finden Sie Fertighäuser mit Garage, Massivhäuser und auch Blockhäuser in unterschiedlichen Baustilen und Größen. Dabei wird die Garage Ihres Hauses stets an die Gegebenheiten vor Ort, an den Hausstil und Ihre Bedürfnisse angepasst. Ob moderne Stadtvilla oder Landhaus aus Holz – für jeden Haustyp können optisch passende Garagen gebaut werden.
Weist die Garage Ihres Hauses im hinteren Bereich Lagermöglichkeiten für Werkzeug oder Platz für die Ausübung von Hobbys auf, kann ein Zugang vom Garten oder der Terrasse eingeplant werden. Bei großen Garagen können zudem Fenster sinnvoll sein, welche für Tageslicht sorgen und zum Beispiel das Überwintern von Kübelpflanzen ermöglichen. Vor allem bei der Unterbringung einer Werkstatt in der Garage am Haus ist eine ausreichende Tageslichtzufuhr von Vorteil.
Fertighaus mit Garage
Massivhaus mit Garage
Vorschriften für den Garagenbau
Der Bau einer Garage ist baurechtlich in der Garagenverordnung (M-GarVo) geregelt. In den einzelnen Bundesländern weichen die gesetzlichen Vorschriften gegebenenfalls voneinander ab. Bei der Planung eines Hauses mit Garage müssen folglich alle länderspezifischen und kommunalen Vorgaben berücksichtigt werden, genau wie der Bebauungsplan und Vorschriften zum Brandschutz.
Ab welcher Grundfläche benötigt man eine Baugenehmigung für die Garage am Haus?
In den einzelnen deutschen Bundesländern zählt beim Hausbau eine Garage bei gewissen Bedingungen zu den genehmigungsfreien Bauvorhaben. Meist ist dies etwa bei Unterschreitung einer bestimmten Grundfläche der Fall. Neben der Grundfläche gilt es auch die vorgeschriebene Höhe zu beachten. Genehmigungsfrei sind in der Regel Höhen zwischen 3 und 3,20 m, abhängig vom Bundesland.
Darüber hinaus muss der Grenzabstand zum Nachbarn eingehalten werden, beziehungsweise die Regeln zur Grenzbebauung. Auch hier informieren Sie sich am besten bei der jeweiligen Behörde Ihrer Bauregion, da kommunale Bebauungspläne abweichen können.
| Bundesland | Grundfläche bis max. | Wandhöhe bis max. | Länge je Grundstücksgrenze bis max. | Grenzbebauung insgesamt bis max. |
|---|---|---|---|---|
| Baden-Württemberg | 30 qm | 3 m | 9 m | 15 m |
| Bayern | 50 qm | 3 m | 3 m | 15 m |
| Berlin | bis zu 50 m² | 3 m | 9 m | 15 m |
| Brandenburg | bis zu 50 m² | 3 m | 9 m | 15 m |
| Bremen | bis zu 50 m² | 3 m | 9 m | 18 m |
| Hamburg | bis zu 50 m² | 3 m | 9 m | 15 m |
| Hessen | 50 qm | 3 m | 25 qm Wandfläche | 15 m |
| Mecklenburg-Vorpommern | 30 qm | 3 m | 9 m | 15 m |
| Niedersachsen | 30 qm | 3 m | 9 m | 15 m |
| Nordrhein-Westfalen | 30 qm | 3 m | 9 m | 18 m |
| Rheinland-Pfalz | 50 qm | 3,20 m | 12 m | 18 m |
| Saarland | 36 qm | 3 m | 12 m | 15 m |
| Sachsen | 50 qm | 3 m | 9 m | 15 m |
| Sachsen-Anhalt | 50 qm | 3 m | 9 m | 15 m |
| Schleswig-Holstein | 30 qm | 3 m | 9 m | 18 m |
| Thüringen | 40 qm | 3 m | 9 m | 18 m |
Braucht man eine Baugenehmigung für eine Garage am Haus?
Eine Baugenehmigung für Garagen am Haus ist meist ab einer bestimmten Garagengröße notwendig. Die Grenzwerte sind dabei von Bundesland zu Bundesland unterschiedlich. Selbst wenn Sie keine Baugenehmigung benötigen, müssen Sie allerdings geltende Bestimmungen zum Bau, beispielsweise bezüglich Statik oder Außengestaltung, dennoch einhalten. Tun Sie dies nicht, werden Sie im schlimmsten Fall zum Rückbau Ihrer Garage gezwungen.
Garagentypen
Garagentypen nach Bauweise
Garagentypen nach Größe und Nutzung
Was kostet ein Haus mit Garage?
Wenn Sie ein Haus mit Garage bauen, hängen die Kosten von verschiedenen Faktoren ab. Die Größe, eingesetzten Materialien, Dachform und die Bauweise beeinflussen den Garagen-Preis. Entscheiden Sie sich für eine Fertigteilgarage, liegt der Preis im Normalfall unter dem einer massiv Stein auf Stein gebauten Garage. Da die Bauteile einer Fertiggarage standardisiert vorgefertigt sind, geht der Aufbau schnell von statten. Das spart Kosten und senkt den gesamten Fertiggarage-Preis. Sowohl Holz als auch Beton oder Blech können für eine Fertigteilgarage eingesetzt werden. Gleichzeitig gibt es, was den reinen Hauspreis ab Oberkante Bodenplatte angeht, ebenfalls ein breites preisliches Spektrum, je nach Ausbaustufe, Wohnfläche, Energieeffizienzstandard und qualitativer Ausführung.
Insgesamt sollten Sie mit einem durchschnittlichen Hauspreis von 2.700 Euro pro Quadratmeter rechnen.
Zusätzlich hierzu kommen für die Garage Ihres Hauses, abhängig von der Größe, dem Dach, dem Material und dem Garagentor Fertiggaragen-Preise zwischen 3.000 und knapp 20.000 Euro hinzu. Eine Betonfertiggarage ist dabei meist etwas teurer als eine Holzfertiggarage oder Fertigteilgarage aus Metall. Soll die Garage maßgeschneidert zu Ihrem Haus passen und von Grund auf gebaut werden, fällt der Garagen-Preis in den meisten Fällen höher aus. Hier sollten Sie mit Kosten ab 15.000 Euro rechnen. Um Garagen Kosten gering zu halten, empfiehlt sich die Errichtung aus Holz und die Ausstattung mit einem Flachdach und einem Kipptor.
Garage selber bauen
Möchten Sie eine Garage selber bauen, sollten Sie genügend Zeit einplanen und über ausreichend handwerkliches Können verfügen. Inwiefern dann beim Garage bauen Kosten eingespart werden können, lässt sich pauschal nicht sagen und hängt ebenfalls von vielerlei Faktoren ab. Welche Ausgaben Sie aber in jedem Fall sparen, sind die Lohnkosten für die Garagenbauer.
Was kostet ein Einfamilienhaus mit Garage? Beispielrechnung
Da diese Werte teilweise noch recht abstrakt wirken können, wollen wir in diesem Abschnitt beispielhaft die Baukosten für ein Haus mit Garage durchgehen. Wir gehen hierbei von einem schlüsselfertigen, mittelpreisigen Einfamilienhaus mit Doppelgarage in Fertigbauweise und 150 qm Wohnfläche aus.
Ebenfalls mit budgetieren wir ein Baugrundstück von 600 qm (aktueller deutschlandweiter Durchschnittspreis laut Statistischem Bundesamt: 218 Euro pro qm), Grundstücksnebenkosten von 10 %, z.B. für Notarin und Grunderwerbsteuer, eine Bodenplatte zu 250 Euro pro qm, Baunebenkosten von 20 % der Bausumme, weitere Kosten für die Gestaltung der Außenanlage von 10 % sowie sonstige Posten wie Richtfest und Umzug.
| KOSTENFAKTOR | PREIS |
|---|---|
| Hauspreis | 412.500 Euro |
| Doppelgarage | 18.000 Euro |
| Grundstück | 130.800 Euro |
| Kaufnebenkosten Grundstück | 13.080 Euro |
| Bodenplatte | 25.000 Euro |
| Außenanlage | 41.250 Euro |
| Baunebenkosten | 82.500 Euro |
| Sonstige Kosten | 15.000 Euro |
| = Haus mit Garage – Kosten Gesamt: | 738.130 Euro |
Wählen Sie jetzt ein passendes Haus mit Garage aus
Garagentore und Garagendächer
Das Garagentor lässt sich inzwischen komfortabel per Fernbedienung öffnen und schließen. Vollautomatische Tore sind mittlerweile bei vielen neugebauten Häusern der Standard. Folgende Arten von Garagentoren können bestellt werden:
Das Garagendach wird meist an die Architektur des Hauses angepasst, damit ein einheitliches Gesamtbild entsteht. Folgende Dachtypen für Garagen sind heute beim Bau eines Fertighauses oder Massivhauses üblich:
Zwar selten aber durchaus möglich, ist die Errichtung eines Runddaches auf der Garage. Dies gehört meist zur Standardausstattung hochpreisiger Modelle, da es den Stau von Wasser und Schnee verhindert und das Dach entlastet. Am günstigsten fallen Garagen-Preise aus, wenn ein Flachdach gewählt wird.
Neben den klassischen Dachvarianten kann auch ein begrüntes oder mit Solarplatten versehenes Dach seine visuellen oder auch praktischen Vorteile haben. Die Gestaltungsvielfalt reicht dabei bis zur Nutzung der Garage oder des Carports als Dachterrasse. Hierbei sind aber einige Besonderheiten beim Bau und bei der Konstruktion zu beachten. Zudem erhöhen sich die Garagen- bzw. Carport-Kosten.
Platzierung & Grundriss beim Haus mit Garage
In der Garagenverordnung ist die Platzierung der Garage auf Grundstücken geregelt. Befindet sich die Garage auf der Grundstücksgrenze, ist es je nach Bundesland möglich, dass eine Zustimmung des Nachbarn für den Bau der Garage benötigt wird.
Garage neben dem Haus bauen
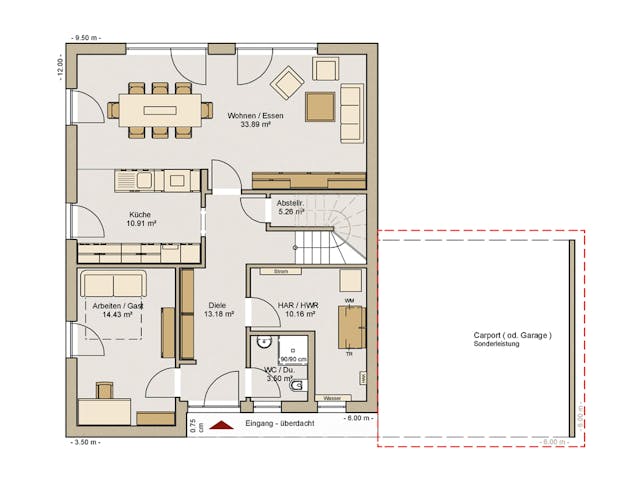
Üblicherweise werden Garagen aus praktischen Gründen so aufgestellt, dass sie sich möglichst nah an der angrenzenden Straße befinden. Allerdings kann es Vorteile haben, die Garage etwas weiter hinten auf dem Grundstück zu platzieren. Denn so entsteht vor der Garage einzusätzlicher Stellplatz für PKWs auf dem Grundstück. Der Stellplatz kann auch mithilfe eines Carports überdacht werden.
Garage im Haus integriert unterbringen
Eine weitere Möglichkeit ist die Integrierung der Garage im bzw. unter dem Haus. Hierbei wird ein Teil des Erdgeschosses oder des Kellers für die Unterbringung des Autos freigehalten. Darüber werden dann meist noch zwei Vollgeschosse ausgeführt, um ausreichend Wohnfläche zu schaffen. Diese Variante bietet sich besonders bei schmalen Grundstücken an und gewährleistet einen direkten Zugang zum Wohnhaus. Bei der Unterbringung der Garage integriert im Haus kann eine Beheizung mit geringem Kostenaufwand realisiert werden. Dies empfiehlt sich vor allem bei größeren Garagen, die auch als Hobbyraum genutzt werden sollen.
Bei der Platzierung der Garage muss auf unebenen Grundstücken auch die Steigung der Auffahrt berücksichtigt werden.
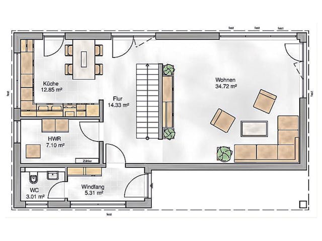
Gestaltung Grundriss Haus mit Garage
Ungeachtet, ob in Ihrem Grundriss die Garage im Haus direkt im Erdgeschoss integriert ist oder an das Haus angebaut wird, sollten Sie den Einstellraum mit einer Verbindungstür neben Vorratsräumen, Küche und Hauswirtschaftsraum platzieren. Schlaf- und Aufenthaltsräume sollten dagegen eher getrennt in der Raumaufteilung berücksichtigt werden, um Störungen durch Lärm zu verhindern.
Grundrisse Haus mit Garage
Garage im Keller bauen
Folgende Voraussetzungen müssen bei einer Integrierung der Garage im Keller eines Hauses gegeben sein:
- Eine Baugenehmigung muss für die Tiefgarage eingeholt werden.
- Es muss ausreichend Platz für ein oder ggf. zwei Autos gegeben sein (für ein Auto braucht es ca. eine Länge von 5,5 m und eine Breite von 3 m).
- Die Garagenzufahrt sollte weder zu flach sein, um nicht zu viel Grundstücksfläche zu verschwenden, noch sollte sie zu steil sein
- Rampenwände müssen gut befestigt sein.
- Ausreichend Budget sollte eingeplant werden: Zufahrt von der Straße und Garagentor der Tiefgarage erhöhen den Preis für den Keller.
Vorteile Garage im Keller
Platzsparende Alternative auf kleinen Grundstücken
Keine weiten Transportwege, z.B. für Lebensmittel, Brennmaterialien und Ähnliches dank Lagerung im angrenzenden Keller
Nachteile Garage im Keller
Erschwerte Entwässerung der Zufahrt
Garagentor wird leicht überschwemmt bei Starkregen
Schlechtes bis kein Herein-/ Herauskommen bei Schnee und Eis
Beliebte Häuser mit Garage
Haus mit Carport: Alternative zur Garage
Was ist ein Carport?
Per Definition ist ein Carport ein überdachter Abstellplatz für ein Fahrzeug, der mindestens an einer Seite offen ist. Carports werden entweder freistehend oder als Wandanbau aus Holz oder Metall gebaut. Auch Varianten aus Beton, Kunststoff oder sogar Glas sind möglich. Dabei zeichnen sie sich durch niedrige Kosten und einfache Konstruktion aus. Häufig werden Carports zusätzlich zu einer Garage als Stellplatz für den Zweitwagen oder Gäste geplant.
Praktische Details zum Carport
Der Carport kann an allen Seiten offen sein, es ist aber auch möglich eine Seite zu schließen, um das Auto besser vor Witterung zu schützen.
Die Integration eines abschließbaren Abstellraumes für Fahrräder oder Mülltonnen ist ebenfalls möglich, so entsteht wertvoller Platz auf dem Grundstück.
Carport Vorteile
Preisgünstiger
Kann nachträglich selbst gebaut werden
Einfache Konstruktion und schneller Aufbau
Schützt vor Hagel, Regen und Schnee von oben
Carport Nachteile
Keine Stauraummöglichkeiten
Nicht verschließbar (kein Diebstahlschutz)
Kein Schutz vor Feuchtigkeit
Was kostet ein Haus mit Carport?
Auch beim Haus mit Carport hängen die Kosten von verschiedenen Faktoren ab. Die verwendeten Materialien spielen bei der Preiskalkulation ebenso eine Rolle wie die Größe. Man unterscheidet grundsätzlich zwischen Einzel- und Doppelcarports.
Der Doppelcarport bietet Platz für zwei PKWs nebeneinander, was sich wiederum gut für Zweifamilienhäuser eignet. Doppelcarports werden gerne auch in Kombination mit Doppelgaragen geplant. Idealerweise wird der Stellplatz für das Fahrzeug bereits beim Kauf des Hauses geplant, nachträgliche Anbauten werden immer teurer.
Was ebenfalls die Carport-Kosten beeinflusst, ist die Errichtung. Wenn Sie einen Carport-Bausatz wählen und ihn somit selbst aufbauen, kommen Sie günstiger weg, als wenn der Carport von einer Firma aufgebaut wird.
Den größten Einfluss auf den Preis haben aber das verwendete Material und das Design. Im Fertighausbau werden Carports meist aus Holz oder Metall gebaut und auf Wunsch optisch angepasst. Bei Massivhäusern werden die Fahrzeugunterbringungen oftmals grundsätzlich an den Baustil des eigentlichen Hauses angelehnt, aber dennoch hauptsächlich aus den Materialien Holz oder Metall errichtet.
Bereits bei der Planung eines Hauses werden üblicherweise alle rechtlichen Fragen geklärt. Deswegen ist es sinnvoll, den Carport gleich bei der Hausplanung zu berücksichtigen. In vielen Gemeinden wird für den Carport eine extra Baugenehmigung benötigt, weil der Bebauungsplan einen solchen nicht vorsieht. Doch auch wenn keine Baugenehmigung erforderlich ist, gelten die öffentlich-rechtlichen Baubestimmungen. Diese sehen einen Mindestabstand zum Nachbargrundstück, eine maximale Gesamtfläche und Höhe und weitere Details vor. Vor der Planung ist es deswegen zwingend ratsam, sich zunächst mit den baurechtlichen Bestimmungen vertraut zu machen.
Empfohlene Baufirmen, die Häuser mit Garage oder Carport bauen

Finden Sie heraus, welches Haus am besten zu Ihnen passt!
In unserem Quiz können Sie wichtige Eckdaten festlegen, verstehen, welches Haus zu Ihnen passt und herausfinden, welche Baupartner es am besten bauen können.
Hausbau-Assistenten startenHausbau mit Garage: Häufige Fragen






















































































