
Fertighaus mit 150 qm bauen

Ob als lichtdurchfluteter trendiger Bungalow oder heimeliges Holzhaus im Landhausstil, Massiv- oder Fertighäuser mit 150 qm bieten dank ihrer mittleren Wohnfläche jede Menge Platz zur individuellen Aufteilung und Designs für jeden Geschmack.
Doch was kostet ein Fertighaus mit 150 qm? Für wen eignen sich entsprechende Häuser mit 150 qm? Was sind die Vorteile eines Massiv- oder Fertighauses bis 150 qm? Und wie können Sie den Grundriss für Ihr Fertighaus mit 150 qm klug planen? Diese und weitere Fragen beantworten wir im Folgenden.

Für wen kommt ein Fertighaus bis 150 qm in Betracht?
Ein Fertighaus mit 140 qm bis 150 qm Wohnraum lässt sich variabel an Ihre Alltagsanforderungen anpassen und kommt daher für verschiedenste Wohnkonstellationen in Frage.
Ob für Paare, die selbstständig tätig sind und deshalb nebst Ankleide und Aufbewahrungsraum zwei geräumige Arbeitszimmer benötigen, Familien mit zwei bis drei Sprösslingen, für die separate Räume vorrangig sind oder als kleineres Mehrgenerationenhaus: Ein Massiv- oder Fertighaus bis 150 qm lässt sich sowohl als entsprechendes Einfamilienhaus als auch als praktisches Zweifamilienhaus mit Platz für zwei kleinere Haushalte oder mit integrierter Einliegerwohnung für eine Person gut bemessen.


Seien Sie bestens informiert bei Ihrer Fertighauswahl! Fordern Sie Informationen von Baupartnern in Ihrer Nähe an, um bei der Entscheidung gut vorbereitet zu sein.
Kataloge anfordernWie hoch sind bei einem Fertighaus mit 150 qm die Kosten?
Bei einem Massiv- oder Fertighaus mit 150 qm hängen die Kosten von unterschiedlichen Faktoren ab, insbesondere von der Ausbaustufe, den technischen Details und der spezifischen Ausstattung. So wird ein bezugsfertiges Objekt dieser Größe mit höchstem Energiestandard, ausgefallener Gestaltung und bodentiefen Fensterfronten sicherlich kostenintensiver als ein funktionales Ausbau-Fertighaus von 150 qm in der Standardausführung Ihres Baupartners ausfallen.
Als Richtwert können Sie aber bei einem Neubau generell von einem Hauspreis von 2.700 Euro pro qm ausgehen. Das heißt, dass sich ein Fertighaus mit 150 qm auf durchschnittlich 405.000 Euro beläuft, zuzüglich der Ausgaben für Keller beziehungsweise Bodenplatte, Grundstück und Materialien für den Innenausbau und der Baunebenkosten, genau wie für die Gestaltung der Außenanlage.
Fertighaus mit 150 qm: Schlüsselfertiger Preis
Wollen Sie noch konkreter wissen, was beispielsweise bei einem Fertighaus mit 150 qm der schlüsselfertige Preis ist, sollten Sie mit mindestens 2.200 bis hin zu über 4.000 Euro pro qm, also insgesamt 330.000 bis über 600.000 Euro je nach Fertigungsgüte, rechnen. Preiswerter erweisen sich Ausbauhäuser und Bausatzhäuser, bei denen Sie Eigenleistung erbringen.
Massiv- & Fertighaus 150 qm: Schlüsselfertige Preise unserer Anbieter
Damit Sie genau Ihre persönlichen Ansprüche und finanziellen Rahmenbedingungen beim Bau Ihres Massiv- oder Fertighauses mit 150 qm Wohnfläche abwägen können, haben wir für Sie ausführliche Artikel zum Thema erstellt.
Was kostet ein Fertighaus mit 150 qm? Beispielrechnung
Um Ihnen einige greifbare Richtwerte für die gesamten Kosten eines Fertighauses mit 150 qm an die Hand zu geben, rechnen wir beispielhaft das Budget für ein entsprechendes Einfamilienhaus durch. Grundlage bildet ein schlüsselfertiges mittelpreisiges Eigenheim zu 2.800 Euro pro Quadratmeter, erbaut als Kubushaus mit zwei Vollgeschossen sowie einer Teilunterkellerung auf 50 qm. In die Rechnung nehmen wir ebenfalls Grundstückskosten von aktuell im Schnitt laut Statistischem Bundesamt 218 Euro pro Quadratmeter baureifes Bauland mit auf, genau wie 20 % der Bausumme an Baunebenkosten, 10 % Ausgaben für die Außenanlage und sonstige Ausgaben wie etwa für den Umzug.
| KOSTENPUNKT | PREIS |
|---|---|
| Fertighaus 150 qm: Preis | 420.000 Euro |
| Grundstück | 101.370 Euro |
| Grundstücksnebenkosten, z.B. Grundbucheintrag, Grunderwerbsteuer | 10.137 Euro |
| Teil-Bodenplatte | 6.250 Euro |
| Teilkeller | 50.000 Euro |
| Außenanlage | 42.000 Euro |
| Baunebenkosten | 84.000 Euro |
| Sonstige Kosten (Umzug, Richtfest u.Ä.) | 15.000 Euro |
| = Kosten Fertighaus 150 qm gesamt | 728.757 Euro |
Mit Eigenleistung beim Fertighaus mit 150 qm Kosten sparen
Weiter oben sind wir schon kurz darauf eingegangen, dass Sie bei einem Massiv- oder Fertighaus bis 150 qm die Kosten je nach Ausbaustufe vermindern können. Je umfassender Ihre Eigenleistung, desto preiswerter ist das dazugehörige Angebot Ihrer Baufirma, da relevante Lohnkosten wegfallen. Vergessen Sie aber nicht die Materialkosten, die im jeweiligen Vertrag ausgeschlossen sind und in Ihrem Budget einen weiteren wichtigen Posten darstellen.
Verfügen Sie über einschlägiges Praxiswissen und hinreichend zeitlichen Puffer, sollten Sie daher den Mit- oder Selbstbau Ihres zukünftigen Zuhauses in Betracht ziehen:
- Ein Ausbauhaus verlangt gewisses handwerkliches Geschick, da Sie hier nach Absprache verschiedenste Aspekte des Innenausbaus übernehmen können, vom Fliesen der Bäder bis hin zur Elektrik.
- Im Bausatzhaus ist noch mehr Handfertigkeit gefragt, denn Sie sind für den kompletten Hausbau schon ab dem Rohbau zuständig und können so noch effizienter beim Bau Ihres Fertighauses mit 150 qm Kosten senken. Ihr Bauunternehmen plant Ihre Immobilie und versorgt Sie in vertraglich vereinbartem Umfang mit Baustoffen, greift Ihnen bei Bedarf aber auch zusätzlich unter die Arme.
- Bei einem Fertighaus mit 150 qm ist der schlüsselfertige Preis wie immer meist der höchste, da Ihr Fertighausanbieter Ihnen aus einer Hand fast alle Arbeiten beim Hausbau abnimmt und Sie damit extrem komfortabel und umstandslos Ihr neues Eigenheim übernehmen.
Haus 150 qm: Kosten als Ausbauhaus
Massiv- & Fertighaus 150 qm: Preise für Bausätze
Welche Vorteile bietet ein Fertighaus mit 150 qm?
- Perfektes Familien-Zuhause: Dank seiner Größe schenkt ein Fertighaus mit 150 qm einer Familie mit zwei Kindern genügend Platz für ein harmonisches Miteinander, Freizeit und Beruf – beachten Sie hierzu auch unsere Tipps zum Grundriss!
- Grundstück: Gerade auf kleineren oder unregelmäßig begrenzten Grundstücken erweist sich der Bau in die Höhe als vorteilhaft. Statt auf ein oder zwei Vollgeschosse kann bei einem Fertighaus mit 150 qm die Wohnfläche auch sinnvoll über zweieinhalb bis drei Etagen verteilt werden. So nutzen Sie Ihr Grundstück optimal aus oder sparen beim Grundstückskauf, der Grunderwerbssteuer und der jährlichen Grundsteuer.
- Anpassungsfähigkeit: Außerdem garantiert die Fläche bei einem Fertighaus mit 150 qm ein gewisses Maß an Flexibilität – vorausschauende Grundrissplanung vorausgesetzt. Ändern sich Ihre Lebensumstände unerwartet, beispielsweise wie in der jüngeren Vergangenheit aufgrund von Corona, und es soll ein Büro fürs Home Office oder ein neues Kinderzimmer eingerichtet werden, so bietet ein Massiv- oder Fertighaus von 150 qm hierfür ausreichend Raum. Diese Anpassbarkeit genau wie die schiere Hausgröße an sich wiederum versprechen einen hohen Wiederverkaufswert. Zudem sind verschiedenste Haustypen und Nutzungsarten möglich, etwa als Stadtvilla, Doppelhaushälfte oder Bungalow mit 150 qm und Doppelgarage.
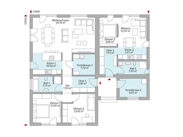
Fertighaus-Bungalow 150 qm
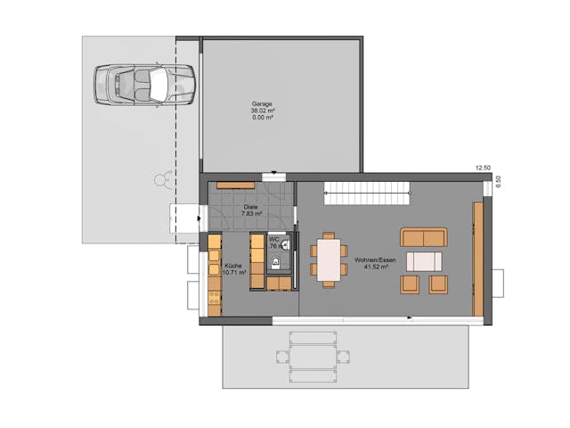
Doppelhaus-Grundriss 150 qm
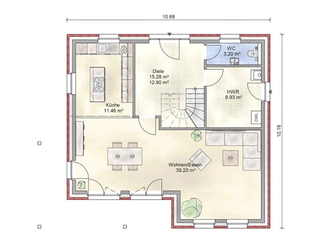
Grundriss Stadtvilla 150 qm
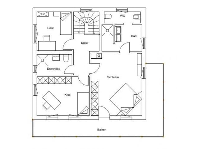
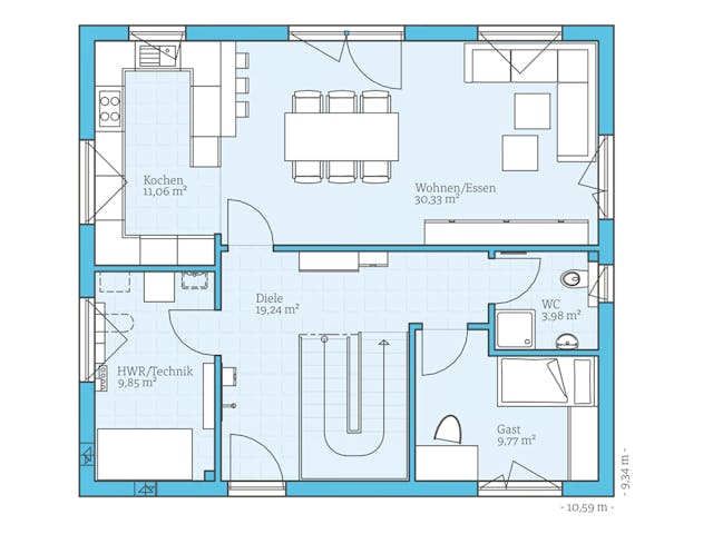
Grundriss-Tipps für Ihr Fertighaus mit 150 qm
Wesentliche Voraussetzung für Ihr Wohnglück auch bei einem Massiv- oder Fertighaus mit 150 qm Wohnfläche ist eine smarte Grundrissplanung. Unbedingt Berücksichtigung finden sollten hierbei nicht nur Ihre jetzige Situation, sondern auch zukünftige Entwicklungen. Ermöglichen Sie zum Beispiel Ihren Kindern in getrennten Zimmern, sich voll auszuleben, teilen die entsprechenden Räume aber sofern möglich mit Trockenbauwänden auf. So können Sie später, wenn Ihr Nachwuchs flügge geworden ist, Ihr Wohnkonzept auf Wunsch recht einfach neu gestalten.
Bei der Grundrisserstellung für Ihr Massiv- oder Fertighaus mit 150 qm spielt zunächst der Bebauungsplan Ihres Grundstücks eine entscheidende Rolle – ist beispielsweise als Dachform kein Flachdach wie von Ihnen gewünscht zugelassen, beeinflussen die zusätzlichen Schrägen die Raumaufteilung im Obergeschoss. Abhilfe verschaffen hier etwa angepasste Einbauschränke.
Als goldene Regel gilt, dass offene Räume wie bei einem kombinierten Küchen-, Ess- und Wohnbereich, Mehrzweckzimmer, minimale Verkehrsflächen und eine schlichte Gestaltung des Grundrisses das Maximum aus dem vorhandenen Wohnraum herausholen, ob bei einem Fertighaus mit 150 qm oder weniger Wohnfläche.
Zusatzbonus: Ihr Baubudget wird im Vergleich zu einem komplexeren Grundriss geschont, da Sie mit einem simplen und offenen Grundriss auf diverse innenliegende Wände, Türen und Ähnliches nicht angewiesen sind.
In unserer Haussuche können Sie Angebote für Fertighäuser mit 150 qm gegenüberstellen, bewährte Grundrisse als Inspiration nutzen und den Haushersteller finden, der Ihre persönlichen Vorstellungen vom Eigenheim ideal umsetzt.
Grundrisse 150 qm
Grundriss 150 qm als Bungalow
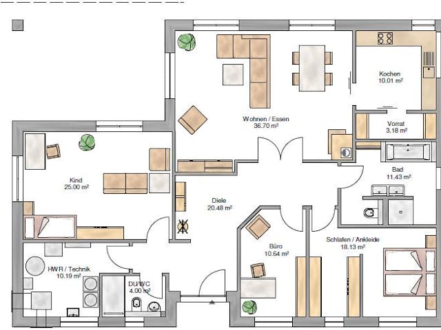
Einfamilienhaus-Grundriss 150 qm
Haus mit 150 qm: Häufige Fragen

















































































