





EVOLUTION 143 V5 von Bien-Zenker
Ab 340.521 €
Bewertungen von Bien-Zenker
4,1
(271)
Wohnfläche
146 m²
Zimmer
5
Ausbaustufe
Schlüsselfertig
Bauweise
Fertighaus
Etagen
1,5
Energiestandard
Effizienzhaus 55
Dachform
Satteldach
Hausart
Einfamilienhaus
Beschreibung
Schickes Einfamilienhaus mit Eingangserker und Garagenanbau mit Balkon
Ob im klassisch-eleganten, im mediterranen oder im avantgardistischen Stil – mit den entsprechenden Design-Paketen macht das EVOLUTION 143 immer eine gute Figur. Die durchdachte Architektur begeistert mit vielen kleinen Details, die neben einer attraktiven Optik viele Vorteile für das Leben in Ihrem neuen EVOLUTION bereithalten. Im Erdgeschoss werden Wohnen, Essen, Kochen und Arbeiten perfekt miteinander kombiniert. Dank einer idealen Raumaufteilung und kurzen Wegen ist alles dort, wo es hingehört, und lädt zum Wohlfühl-Wohnen ein. Die drei Schlafräume und das Wellness-Bad im Obergeschoss dienen als ideale Rückzugsräume aus dem Alltag.
Der Preis bezieht sich auf die Ausbaustufe ZAF als Effizienzhaus 55 inkl. Bodenplatte gemäß aktuell gültiger Bau- und Leistungsbeschreibung. Grundrisse und Abbildungen können Extras zeigen. Flächenangaben nach DIN 277.
Merkmale
- Garage
- Gästezimmer
- Dachterrasse
Sie haben Interesse?
Laden Sie sich jetzt Ihr kostenloses Exposé zu diesem Haus herunter:
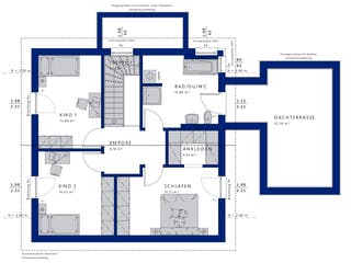
Grundrissfür EVOLUTION 143 V5
Außenmaße
Länge: 9,42 m
Breite: 9,42 m
Grundrisse
Der Grundriss entspricht nicht Ihren Vorstellungen?
Passen Sie den Grundriss an Ihre persönlichen Bedürfnisse an und besprechen Sie Ihren individuellen Plan mit einem Bauberater des Anbieters.
Merkmale
Energiestandard und Förderung
Energiestandard
Effizienzhaus 40 Plus
Effizienzhaus 55
Plusenergiehaus
U-Wert
0,14
Dach
Dachform
Satteldach
Dachneigung
25°
Kniestockhöhe
160 cm
Preisdetails für EVOLUTION 143 V5
Schlüsselfertig ab
340.521 €
ab 1.025,11 €
Dieser Preis ist ein Beispiel für den Anfang, ein Berater kann Ihnen ein detailliertes Angebot erstellen, das Ihren Bedürfnissen entspricht.
Möchten Sie bei Ihrem Projekt Geld sparen?
Durch einen Angebotsvergleich mit Fertighaus.de können Sie bis zu 20 % Ihrer Baukosten sparen.
EVOLUTION 143 V5 - Hilfreiche Fragen & Antworten
Für dieses schlüsselfertige Einfamilienhaus liegt der Preis bei etwa 2.500 Euro pro Quadratmeter. Damit ordnet sich das Modell im mittelpreisigen Segment ein. Da Bien-Zenker jedoch großen Wert auf individuelle Gestaltungsmöglichkeiten legt, können die finalen Kosten je nach Ihren Ausstattungswünschen variieren. Gerne können Sie über uns ein detailliertes Angebot anfordern.
Das EVOLUTION 143 V5 überzeugt durch ein klassisches Satteldach mit einer Neigung von 25 Grad. Eine Besonderheit ist der hohe Kniestock von 1,60 Metern. Dieser sorgt im Obergeschoss für deutlich mehr Stellfläche und Kopffreiheit unter den Schrägen. So lassen sich die drei Schlafräume und das Wellness-Bad optimal möblieren und als komfortable Rückzugsorte nutzen.
Wir empfehlen für dieses Haus ein Grundstück von mindestens 400 m². Die Grundfläche des Gebäudes beträgt knapp 89 m². Hinzu kommen etwa 50 m² für PKW-Stellplätze sowie eine großzügige Gartenfläche von rund 280 m². Diese Planung stellt sicher, dass alle baurechtlichen Abstandsflächen eingehalten werden und Ihnen genügend Freiraum im Außenbereich bleibt.
Nachhaltigkeit ist ein zentraler Pfeiler der Unternehmensphilosophie von Bien-Zenker. Der Anbieter setzt auf umweltfreundliche Fertighaus-Lösungen und bietet Standards wie das Effizienzhaus 40 Plus an. Mit über 115 Jahren Erfahrung und mehr als 80.000 gebauten Häusern verbindet der Hersteller bewährte Tradition mit modernen, ökologischen Konzepten, die durch verschiedene Nachhaltigkeitszertifikate und Auszeichnungen regelmäßig bestätigt werden.
Über den Anbieter Bien-Zenker
Zum Anbieterprofil
Bewertungen
4,1
(271)

Bewertungen
4,1
271 BewertungenGut
Bien-Zenker in Zahlen
Gründungsjahr
1906
Häuser im Angebot
99
Häuser pro Jahr
> 100
Häuser gesamt
> 80.000
Mitarbeiter
> 600
Bewertungen von Bien-Zenker
Sind noch am Anfang
Sind noch am Anfang
17 Feb. 2026Marco L.
Sehr freundliche Mitarbeiterin . Wir konnten ...
Sehr freundliche Mitarbeiterin . Wir konnten schnell einen passenden Termin vereinbaren.
29 Jan. 2026Litke P.
Es waren 6 Unternehmen, die mich kontaktiert ...
Es waren 6 Unternehmen, die mich kontaktiert haben und ich habe derzeit mit 4 Unternehmen Termine gemacht.
21 Jan. 2026Heike S.
Leistungsspektrum
Finanzierungsberatung
Preisgarantie
Bauzeit Garantie
Individuelle Planung
Blower Door Test
Persönliche Beratung für Ihre individuellen Wünsche
Finden Sie jetzt Ihren Ansprechpartner
Bien-Zenker
Auszeichnungen, Zertifikate & Mitgliedschaften














Ähnliche Häuser Für EVOLUTION 143 V5