
Architektenhaus bauen
Bevor Sie sich als zukünftiger Eigenheimbesitzer daran machen, Ihr Traumhaus zu bauen, müssen Sie sich eine wichtige Frage stellen: Soll das zukünftige Eigenheim durch ein klassisches Architektenbüro realisiert werden oder setzt man eher auf einen Hausanbieter mit eigenen Architekten?
In beiden Fällen können Sie bereits bei der Planung mitreden. Bei Häusern in Massivbauweise können Sie sogar noch in der Bauphase Einfluss auf wichtige Details nehmen.
Der Architekt behält wie auch der Hausanbieter für Fertig- oder Massivbauten die Kontrolle über alle Baumaßnahmen vom ersten bis zum letzten Tag. Jedoch werden beim Anbieter erst dann die Kosten für Architektenplanung abgerufen, wenn sie auch anlaufen - im Architektenbüro sind die Planungskosten bereits von Beginn an vergleichsweise hoch. Auch wenn die erste Beratung in der Regel (beim Anbieter immer) kostenlos ist.
Zusätzlicher Vorteil eines Hausanbieters ist, dass die einzelnen Gewerke zumeist unternehmenseigen sind und Materialkosten durch hohe Anzahl gebauter Häuser pro Jahr geringer sind.

Kostenlos Kataloge & Informationen anfordern!
Seien Sie bestens informiert bei Ihrer Traumhauswahl! Fordern Sie Informationen von Baupartnern in Ihrer Nähe an, um bei der Entscheidung gut vorbereitet zu sein.
Kataloge anfordernIhr Experte für Architektenhäuser
Der Ökohaus-Pionier Baufritz setzt bei seinen Häusern auf modernste Technologien und den natürlichen Rohstoff Holz.
Somit freuen sich Bauherren über ein hohes Maß an Energieeffizienz und eine hohe Wohngesundheit.

Ein Architektenhaus für Individualisten
Viele Kunden setzen beim Hausbau auf Individualität und entscheiden sich deshalb für ein Architektenhaus. Bei der Planung eines solchen Hauses sind Ihnen - mal abgesehen vom Baurecht und von der Statik - kaum Grenzen gesetzt. Architektenhäuser bieten Ihnen viele Vorteile. Was jedoch wenige wissen, ist, dass auch Hausanbieter mit eigenen Architekten arbeiten und somit all diese Vorteile mit den eigenen vereinen.
Bereits bei der Planung können Sie Ihre Ideen einbringen. Der Architekt ist dabei der Dienstleister für den Kunden und behält alle Fäden in der Hand - mit einem Hausanbieter ist er zugleich der Koordinator, der verschiedene Garantien gibt - darunter Bauzeit und Leistungsgarantien. Beide übernehmen bei der Planung und Ausführung des Hausbaus sämtliche entscheidenden Aufgaben - ein eigenständiger Architekt berechnet dafür in der Regel jedoch höhere Kosten.
Offene Planungsphase für das Architektenhaus
Natürlich gibt es auch Argumente, die scheinbar gegen Architektenhäuser sprechen. Oft werden längere Planungsphasen und die zusätzlichen Kosten, die ein Architekt für seine Leistungen verlangt, ins Feld geführt. Bei Hausanbietern gibt es dafür viele Beispielhäuser, die bereits vorgeplant und dennoch leicht an Ihre eigenen Ansprüche anpassbar sind.
Meist dauert die Planungsphase beim Hausbau mit Architektur um etwa ein Drittel länger als normal - einfach, weil das Haus selbst nicht nur zu Papier gebracht werden, sondern auch Ihre Zustimmung und Zufriedenheit vorherrschen muss. In vielen Fällen ist die Planung - selbst bei besonderen Wünschen - durch einen Architekten nicht bis in das kleinste Detail notwendig. Auch bei individuell geplanten Häusern verfügen Architekten über zahlreiche bereits umgesetzte Ideen, die als Vorlage dienen können. Es muss also nicht bei Null angefangen werden. Das macht auch bei einem Architektenhaus die Kosten überschaubar.
Flexible Bauphase beim Architektenhaus
Individualität und Umfang Ihrer Wünsche haben bei der Planung und der Umsetzung beim Hausbau mit Architekten einen Einfluss auf die Länge der Bauphase. Während bei einem Hausanbieter der Aufwand für den Bau durch viele bereits realisierte Projekte ziemlich exakt geschätzt werden kann, wird der Bau für Einfamilienhäuser mit spezifischer Architektur von individuellen Wünschen des Kunden geprägt. Zu einer reinen Montagezeit kommen beim Architektenhaus oft auch noch Fristen für die Koordination der Handwerker sowie zum Teil auch Lieferzeiten für außergewöhnliche Baumaterialien, etwa wenn es sich um eine futuristische Architektur handelt.
Damit beim Architektenhaus die Kosten trotzdem überschaubar bleiben - egal, ob vom Anbieter oder Architektenbüro - sollte Sie sich von Beginn an einen Kostenrahmen setzen. Inklusive Honorar für die Leistungen des Architekten wird ein Gesamtbudget festgelegt. Jeder einzelne planerische Schritt oder zusätzliche Wunsch bei der Bauausführung wird anhand seines Einflusses auf das gesamte Budget bewertet.
So können Sie selbst in der Bauphase noch die Kosten steuern und von zu teuren Extrawünschen unter Umständen Abstand nehmen. Im Fertighausbereich ist man nach der Planungsphase nicht mehr so frei und flexibel, jedoch stehen die Kosten bereits vorher auch komplett fest. Bei Hausanbietern für Massivhäuser sind spontane Eingriffe möglich UND es gibt Planungssicherheit - auch hinsichtlich der Kosten.
Wählen Sie jetzt ein passendes Architektenhaus aus
Technische Ausstattung mit individuellem Touch
Vor allem bei den Varianten der technischen Ausstattung punktet ein Architektenhaus. Soll später eine Automatisierung über Smart Home erfolgen oder Solarstrom genutzt werden, können die Voraussetzungen dafür schon bei der Planung geschaffen werden. Die Ausrichtung des Hauses oder die Neigung des Daches bestimmen später die Effektivität bei der Gewinnung von Strom. Ähnliches gilt für Niedrigenergiehäuser oder Wärmepumpen.
Darüber hinaus haben Sie die Freiheit sich für eine bestimmt Konstruktion und Errichtung des Hauses zu entscheiden. Zu den Bauweisen gehören:
- Skelettbauweise (Beispiel: Fachwerkhaus)
- Ständerbauweise (Beispiel: Holzhaus)
- Rahmen- und Tafelbauweise (Beispiel: Fertighaus)
- Elementbauweise (Beispiel: Massivhaus)
- Modulbauweise (Beispiel: Containerhaus)
- Massivbauweise
- Holzmassivbauweise (Beispiel: Blockhaus)
Diese Vorteile sprechen für Architektenhäuser
Wenn Sie sich beim Hausbau für ein Architektenhaus entscheiden, profitieren Sie von einer ganzen Reihe Vorteile. Die wichtigsten Pluspunkte sind:
- Ideen können flexibel umgesetzt werden
- Auch beim Material ist die Auswahl groß
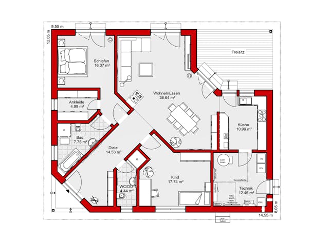
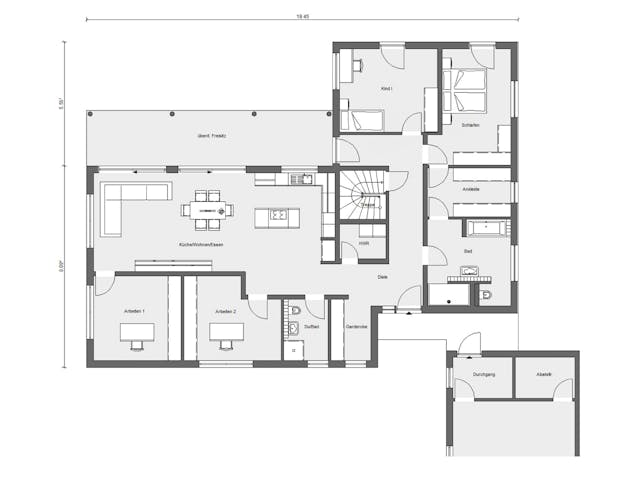
- Besondere Ausstattung (z.B. Sauna, oder Dachatelier) ist kein Problem
- Auch individuelle Energielösungen bringen dem Eigentümer Vorteile
- Durch Detail können Kosten gesenkt werden
Geschmack und Bedürfnisse entscheiden
Am Ende spricht die große Flexibilität für ein Architektenhaus. Bei der Gestaltung gibt es zahlreiche Möglichkeiten: Von einem Kubushaus im Bauhausstil über den skandinavischen Stil oder dem modernem Pultdachhaus bis hin zur luxuriösen Villa im mediterranen Stil: Entscheidend sind Ihr persönlicher Geschmack und Ihr Bedürfnis sowie das Budget, was Sie für den Bau seines Hauses aufbringen können.

Empfohlene Baufirmen die Architektenhäuser bauen
Fazit: Individuelles Wohnen in einem Architektenhaus
Bauherren haben die Möglichkeit Ihr zukünftiges Eigenheim von einem Architekturbüro oder einem Anbieter und dessen Architekten bauen zu lassen. Architektenhäuser sind sehr individuell. Hinsichtlich der Grundrisse unn der Materialien besteht eine sehr große Auswahl, außerdem sind besondere Einbauten, wie eine Sauna oder ein Atelier ohne Probleme umsetzbar. Verwirklichen Sie sich mit einem Architektenhaus Ihren ganz individuellen Traum von einem Eigenheim.
Höchstmaß an Flexibilität
Große Materialauswahl
Besondere Einrichtungen möglich
Individuelle Energielösungen
Enge Zusammenarbeit mit dem Architekten

Finden Sie heraus, welches Haus am besten zu Ihnen passt!
In unserem Quiz können Sie wichtige Eckdaten festlegen, verstehen, welches Haus zu Ihnen passt und herausfinden, welche Baupartner es am besten bauen können.
Hausbau-Assistenten starten


























































