
Zweifamilienhaus-Grundriss: Ideen und Konzeption
Die Planung des Grundrisses eines Zweifamilienhauses hebt sich von der für ein Einfamilienhaus stark ab. Üblicherweise befinden sich hier zwei Wohnungen übereinander, der Grundriss eines Zweifamilienhauses beinhaltet also übereinander pro Wohneinheit eine bis mehrere Etagen. Allerdings besteht ebenfalls die Möglichkeit, Grundrisse für ein Zweifamilienhaus – ähnlich wie im Doppelhaus – nebeneinander zu planen, im Normalfall teilen Sie sich allerdings im Zweifamilienhaus Eingangsbereich und Treppen. Abgesehen davon, dass Sie beide Wohnräume wirklich separat gestalten, können Sie aber im Zweifamilienhaus-Grundriss die Aufteilung so vornehmen, wie es für Sie und für die zweite Wohnpartei ideal ist.
Im Folgenden gehen wir detailliert auf die wichtigsten Aspekte beim Entwurf des Grundrisses für ein Zweifamilienhaus ein und präsentieren Ihnen entsprechende Beispiele in unterschiedlichsten Größen und Ausführungen. Egal ob Sie einen Zweifamilienhaus-Grundriss in modernem, geradlinigen Stil oder als schicke Stadtvilla suchen, im Portfolio unserer geprüften Baufirmen werden Sie fündig – Ihr zukünftiges Zuhause wartet!
2-Familienhaus-Grundriss: Zweifamilienhaus übereinander – Maße & Tipps
Zunächst fragen Sie sich bestimmt, welche Maße der Grundriss Ihres Zweifamilienhauses aufweisen sollte. Beim Zweifamilienhaus-Grundriss gehen Sie von der doppelten Wohnfläche eines typischen freistehenden Einzelobjekts aus, also von 2 x 150 qm. Wenn Sie für Ihr Zweifamilienhaus den Grundriss skizzieren, sollten Sie daher bei einem eingeschossigen Bau 20 x 30 m Wohnfläche einkalkulieren. Einen 600 qm Bungalow wird wohl aber kaum eine Baufamilie bauen, sodass Sie hier wahrscheinlich eher 2 x 100 qm Wohnfläche anpeilen – mit Maßen von insgesamt zum Beispiel 12,5 x 16 m.
Die Grundfläche können Sie minimieren, indem Sie den Grundriss für Ihr Zweifamilienhaus übereinander mit zwei oder drei Etagen planen. So reduzieren Sie beispielsweise auf einem kleinen oder schmalen Grundstück die Grundfläche im Grundriss Ihres Zweifamilienhauses auf 10 x 15 m oder sogar 10 x 8,5 m und nutzen so den zur Verfügung stehenden Baugrund effizient aus.
Allgemein empfiehlt es sich dann bei der konkreten Ausarbeitung des Grundrisses für ein Haus mit 2 Etagen oder mehr, reguläre Richtwerte für Raumgrößen einzuhalten, Sonneneinstrahlung und Himmelsrichtungen zu beachten und auf ein offenes und funktionales Raumkonzept zu setzen. So machen Sie sich die Wohnfläche im Grundriss Ihres Zweifamilienhauses besonders nachhaltig zunutze und können zugleich Kosten sparen, denn jeder umbaute Quadratmeter zählt für den letztendlichen Hauspreis.
Grundriss Zweifamilienhaus: Hinweise zur Planung
Ob Sie Ihren Zweifamilienhaus-Grundriss hochgradig individualisiert durch ein Architektur-Büro designen lassen oder dies eigenhändig mit einer kostenlosen Grundriss-Software übernehmen, an allererster Stelle steht immer der lokale Bebauungsplan. Dort finden Sie obligatorische Vorschriften zu Dachform, Kniestockhöhe, Geschossen sowie Nebengebäuden oder Garagen, die Sie beim Grundriss Ihres Zweifamilienhauses unbedingt beachten müssen. Eventuell existiert eine zusätzliche Gestaltungssatzung Ihrer Gemeinde, welche ebenfalls Niederschlag in Ihrem Zweifamilienhaus-Grundriss finden muss.
Unsere Bauunternehmen greifen auf verlässliche regionale Netzwerke zurück und sind daher stets auf dem aktuellsten Stand, was die örtlichen Gegebenheiten und Verbindungen zu Bauämtern und Behörden angeht. Deshalb können Sie bei unseren Baupartnern immer auf spruchreife Zweifamilienhaus-Grundrisse und eine passgenaue persönliche Anpassung zählen.
Beispiel: Grundriss Haus mit 2 Etagen
Wollen Sie den Grundriss für ein Haus von 200 qm mit 2 Etagen ausarbeiten, stehen Ihnen – solange Sie sich an den Bebauungsplan halten – vielfältige Möglichkeiten offen, von denen wir Ihnen exemplarisch eine als 2-Familienhaus-Grundriss fürs im Zweifamilienhaus übereinander wohnen vorstellen möchten.
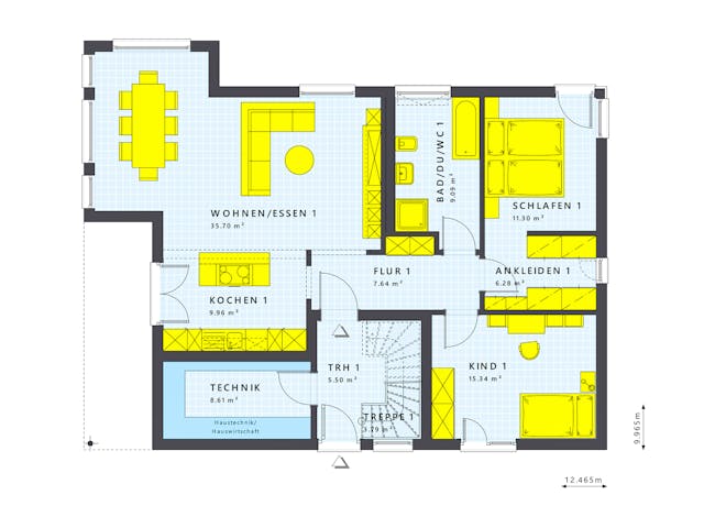
Erdgeschoss/Wohneinheit 1:
- Eingangsbereich und Treppe (gemeinsame Nutzung) 6 qm
- Schlafzimmer 16 qm
- 2 Kinderzimmer à 12 qm
- Wohnen/Essen/Küche 34 qm
- Bad 9 qm
- Diele 4 qm
- Hauswirtschafts-/Technikraum 7 qm
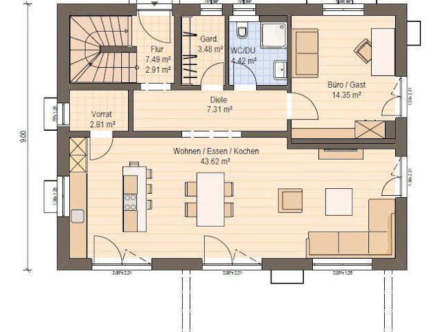
Obergeschoss/Wohneinheit 2:
- Treppe und Flur 10 qm
- Schlafzimmer 16 qm
- 2 Kinderzimmer à 12 qm
- Wohnen/Essen/Küche 34 qm
- Bad 9 qm
- Hauswirtschaftsraum 7 qm (bei einigen ZFHs teilen sich beide Parteien einen Wirtschaftsraum im Erdgeschoss)
Zweifamilienhaus übereinander: Grundriss
Zweifamilienhaus-Grundriss modern
Grundriss Haus mit 2 Etagen & 2 Wohneinheiten
Zweifamilienhaus-Grundriss bis 300 qm
Passende Baufirmen für Zweifamilienhäuser
Grundriss-Kategorien in der Übersicht











































