
Grundriss Einfamilienhaus: Planung und Inspiration
Ein neues Zuhause für die Familie – jedem erfolgreichen Bauprojekt liegt eine kluge Grundrissplanung zugrunde. So stehen Sie zuallererst vor der entscheidenden Frage, wie ein Einfamilienhaus-Grundriss nach Ihren persönlichen Wünschen und Voraussetzungen konkret beschaffen sein soll. Demnach sollten Sie sich zunächst unter anderem klar machen, über wie viele Stockwerke Ihr zukünftiges Eigenheim verfügen wird, welche Raumaufteilung Sie benötigen oder wie Sie beispielsweise den Eingangsbereich gestalten möchten. Denn so schaffen Sie die Grundlage für einen für Ihre Ansprüche bestens geeigneten und zugleich optimal ausgeführten Grundriss für Ihr Einfamilienhaus.
Im Folgenden erläutern wir, worauf Sie bei der Erstellung des perfekten Grundriss fürs EFH achten sollten und wie Sie Herausforderungen bei Planung und Skizze gelassen begegnen. Außerdem stellen wir Ihnen erprobte Grundrisse für Einfamilienhäuser unserer Anbieter in unterschiedlichsten Ausführungen vor und geben hilfreiche Empfehlungen zur flexiblen Anpassung an Ihre Bedürfnisse.
Wie finde ich den richtigen Grundriss für mein Einfamilienhaus?
Zunächst bietet es sich bei der Vorbereitung des Grundrisses eines Einfamilienhauses an, zu klären, welche Größe für Ihr Haus beziehungsweise wie viele Quadratmeter für Ihren Wohnraumbedarf nötig sind. Abhängig von der Personenanzahl Ihrer Familie kann ein Einfamilienhaus-Grundriss eine Fläche von weniger als 100 qm bis zu weit mehr als 200 qm beschreiben.
Je nach dem Budget, das Ihnen für die Preiskategorie und damit auch Wohnfläche Ihres Eigenheims zur Verfügung steht, und den Maßen des Baugrundstücks können Sie sich bei Einfamilienhaus-Grundrissen an üblichen Richtwerten für Raumgrößen orientieren. Eine weitere wichtige Frage bei der Planung des Grundrisses für Ihr Einfamilienhaus ist, wie viele Zimmer Sie sich wünschen, und ob Sie Extras wie einen Keller, Wohnkeller, ausgebauten Dachboden, Wintergarten oder eine Dachterrasse anvisieren.
Vorzugsweise empfiehlt sich generell eine offene, alltagstaugliche und funktionale Raumgestaltung wie bei einem kombinierten Küchen-, Wohn- und Essbereich sowie eine Reduktion nicht voll nutzbarer Flächen wie beispielsweise Fluren oder Nischen. Denn so können Sie die Wohnfläche beim Grundriss Ihres Einfamilienhauses effizient gestalten und gleichzeitig Kosten sparen – genau wie durch durchdachtes Verlegen von Leitungen, wie etwa mit direkt übereinander liegenden Bädern in verschiedenen Etagen.
Darüber hinaus ist es von Vorteil, vielseitig einsetzbare Räume im Grundriss eines Einfamilienhauses zu kennzeichnen – so kann ein Jugendzimmer später einmal als Büro eingerichtet werden. Oder Sie halten sich zum Beispiel durch das Einzeichnen von Rigipswänden beim Grundriss Ihres Einfamilienhauses die Möglichkeit offen, aktuell separate Zimmer später relativ einfach zu erweitern. Ebenfalls relevant ist die passgenaue Orientierung des Einfamilienhaus-Grundrisses nach Sonne und Himmelsrichtungen.
Einfamilienhaus-Grundriss: Hinweise zur Planung
Egal ob Sie Ihren Einfamilienhaus-Grundriss durch ein Bauunternehmen erstellen lassen oder dies selbst mit einem kostenlosen Grundriss-Tool oder ganz klassisch mit Bleistift und Millimeterpapier erledigen, Sie müssen sich stets an den Bebauungsplan Ihrer Wohngegend halten. Dieser regelt neben Merkmalen wie der Dachform und Höhe Ihres Hauses auch, wie viele Geschosse Sie im Grundriss fürs Einfamilienhaus einplanen dürfen, und ob Nebengebäude oder Garagen zulässig sind. Außerdem kann eine ‘Gestaltungssatzung’ der Gemeinde vorliegen, die Vorgaben hinsichtlich der Ausfertigung, der Größe und des Baustils Ihres Neubaus enthält, welche beim Grundriss fürs Einfamilienhaus beachtet werden müssen.

Unsere Hausanbieter sind vor Ort voll vernetzt und kennen sich daher bestens mit lokalen Gegebenheiten aber auch Ansprechpersonen in Bauämtern und Behörden aus, weshalb sie Ihnen stets korrekte Einfamilienhaus-Grundrisse vorlegen und gemeinsam mit Ihnen maßgeschneidert anpassen werden.
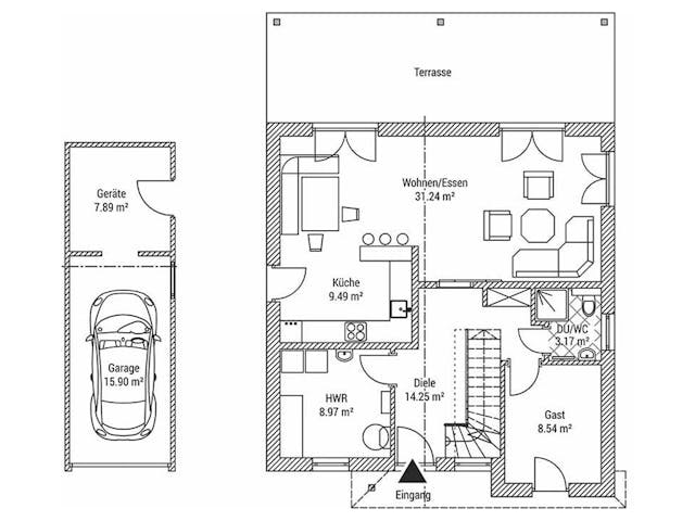
Planungsbeispiel: Einfamilienhaus-Grundriss 8x12 m
Wollen Sie einen Einfamilienhaus-Grundriss mit 8x12 m Außenmaßen austüfteln, haben Sie – unter Einhaltung des Bebauungsplans – zahllose Optionen bei der tatsächlichen Ausarbeitung. Wir möchten Ihnen exemplarisch zwei Versionen aufzeigen.
Einfamilienhaus-Grundriss 8x12 m als Bungalow
Dieses Modell eignet sich beispielsweise für kleine Familien, Paare oder Singles, die die Vorteile ebenerdigen Wohnens im Bungalow – unter anderem noch größere Gestaltungsfreiheit, da tragende Wände für ein oberes Stockwerk wegfallen – mit viel Licht und Rundumblick in den Garten verbinden möchten.
- Eingangsbereich und Diele: 8 qm
- Wohnküche mit Essbereich: 30 qm
- Badezimmer 10 qm
- Schlafzimmer 12 qm
- Kinderzimmer/Büro 10 qm
- Hauswirtschafts- und Technikraum 6 qm
Einfamilienhaus-Grundriss 8x12 m als zweistöckiges Kubushaus
In Form eines mehrgeschossigen Kubushauses lässt sich der Platz bei einem Einfamilienhaus-Grundriss auf 8x12 m aufgrund der Abwesenheit von Schrägen besonders vorteilhaft ausnutzen und ist daher selbst für größere Familien die richtige Wahl.
Erdgeschoss:
- Wohnen/Essen/Küche 45 qm
- Arbeitszimmer 10 qm
- Bad 6 qm
- Hauswirtschafts- und Technikraum 5 qm
- Diele und Treppe 10 qm
Obergeschoss:
- Schlafzimmer 17 qm
- 3 Kinderzimmer à 12 qm
- Bad 10 qm
- WC 4 qm
- Flur und Treppe 10 qm
Einfamilienhaus mit Einliegerwohnung Grundrisse
Grundriss Einfamilienhaus modern
Einfamilienhaus-Grundriss bis 100 qm
Grundriss EFH bis 130 qm
Grundriss Einfamilienhaus bis 140 qm
Einfamilienhaus-Grundriss bis 150 qm
Große Einfamilienhäuser-Grundrisse
Weitere Grundriss-Kategorien
Weitere Informationen aus unserem Ratgeber































































































