



ARCHITEKTENHAUS ESPRIT TRENDLINE von Kern-Haus Chemnitz
Ab 345.900 €
Bewertungen von Kern-Haus Chemnitz
5,0
(1)
Wohnfläche
133 m²
Zimmer
4
Ausbaustufe
Schlüsselfertig
Bauweise
Massivhaus
Energiestandard
Effizienzhaus 55
Dachform
Satteldach
Hausart
Einfamilienhaus
Beschreibung
Beim Esprit Trendline trifft ein moderner Zeitgeist auf eine klassische Hausform. Ins Auge stechen die über die Dachfläche ragenden Giebelwände - sogenannte "Brandgiebel" (Der Begriff rührt von Hausgiebeln her, die insbesondere bei großen städtischen Gebäuden für den notwendigen Brandschutz über das Dach gezogen werden). Eingangs- und Gartenseitig wurde vollständig auf einen Dachüberstand verzichtet, um die markante Form des Hauses zu unterstreichen.
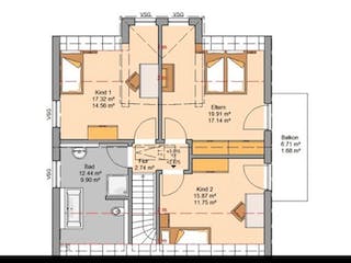
Für eine hohe Wohnqualität sorgt das intelligent gegliederte Erdgeschoss. Die zwei Erker des Hauses schenken dem Wohn- und Esszimmer eine besondere Kontur und Tiefe.
Das Dachgeschoss profitiert von einem Giebel auf der Gartenseite und ermöglicht dort, bodengleiche Fenster zu installieren. Somit werden alle Wohnräume mit viel Tageslicht durchflutet. Das Eltern- und ein Kinderzimmer profitieren darüber hinaus von einem Zugang auf den kleinen Balkon.
Das Familienhaus Esprit Trendline ist für all diejenigen geeignet, die sich ein Familienhaus in klassischer Form, aber in moderner Interpretation wünschen - ein Blickfang in jedem Baugebiet!
Dieses Haus wird nach Ihren individuellen Wünschen geplant und ausgestattet!
Angaben zum Ausbauhauspreis: Die Ab-Preise, die aktuell hinterlegt sind, beziehen sich auf schlüsselfertige Häuser mit dem Energiestandard 55. Die Ausbauhäuser haben aber den Energiestandard 40.
Sie haben Interesse?
Laden Sie sich jetzt Ihr kostenloses Exposé zu diesem Haus herunter:
Grundrissfür ARCHITEKTENHAUS ESPRIT TRENDLINE
Grundrisse
Der Grundriss entspricht nicht Ihren Vorstellungen?
Passen Sie den Grundriss an Ihre persönlichen Bedürfnisse an und besprechen Sie Ihren individuellen Plan mit einem Bauberater des Anbieters.
Merkmale
Energiestandard und Förderung
Energiestandard
Effizienzhaus 55
Dach
Dachform
Satteldach
Preisdetails für ARCHITEKTENHAUS ESPRIT TRENDLINE
Schlüsselfertig ab
345.900 €
Ausbauhaus ab278.900 €
ab 1.041,30 €
Dieser Preis ist ein Beispiel für den Anfang, ein Berater kann Ihnen ein detailliertes Angebot erstellen, das Ihren Bedürfnissen entspricht.
Möchten Sie bei Ihrem Projekt Geld sparen?
Durch einen Angebotsvergleich mit Fertighaus.de können Sie bis zu 20 % Ihrer Baukosten sparen.
ARCHITEKTENHAUS ESPRIT TRENDLINE - Hilfreiche Fragen & Antworten
Bei einer schlüsselfertigen Übergabe liegt der Quadratmeterpreis für dieses Massivhaus bei etwa 2.600 Euro. Damit ordnet sich das Objekt im mittelpreisigen Segment ein. Da wir individuelle Anpassungen ermöglichen, hängen die finalen Kosten von Ihren Sonderwünschen ab. Gerne können Sie über uns ein detailliertes Angebot anfordern, das genau auf Ihre Bedürfnisse zugeschnitten ist.
Das Haus besticht durch seine markante Form ohne Dachüberstände an den Giebelseiten. Ein echtes Highlight sind die sogenannten Brandgiebel, die über die Dachfläche hinausragen. Diese moderne Interpretation des klassischen Satteldachs verleiht dem Gebäude einen einzigartigen Charakter. Große, bodentiefe Fenster im Dachgeschoss sorgen zudem für lichtdurchflutete Wohnräume und eine hohe Lebensqualität für Ihre gesamte Familie.
Für dieses Einfamilienhaus mit 133 m² Wohnfläche empfehlen wir ein Grundstück ab etwa 400 m². Diese Fläche bietet ausreichend Platz für das Gebäude, zwei Stellplätze und einen schönen Gartenanteil. Durch die intelligente Raumaufteilung und die zwei Erker im Erdgeschoss wird die Grundfläche optimal genutzt, sodass Sie auch auf kompakteren Parzellen ein großzügiges Wohngefühl genießen können.
Das Esprit Trendline wird in massiver Bauweise Stein auf Stein errichtet, was für exzellenten Schallschutz und Wertbeständigkeit sorgt. Standardmäßig erfüllt es den Effizienzhaus-Standard 55, als Ausbauhaus sogar den Standard 40. Wir legen großen Wert auf Energieeffizienz, damit Sie langfristig Heizkosten sparen. Die TÜV-geprüfte Qualität während der Bauphase garantiert Ihnen zudem ein sicheres und langlebiges Zuhause.
Über den Anbieter Kern-Haus Chemnitz
Zum Anbieterprofil
Bewertungen
5,0
(1)

Bewertungen
5,0
1 BewertungHervorragend
Kern-Haus Chemnitz in Zahlen
Gründungsjahr
1995
Häuser im Angebot
52
Häuser pro Jahr
10-20
Mitarbeiter
1-10
Leistungsspektrum
Finanzierungsberatung
Preisgarantie
Bauzeit Garantie
Individuelle Planung
Blower Door Test
Persönliche Beratung für Ihre individuellen Wünsche
Finden Sie jetzt Ihren Ansprechpartner
Kern-Haus Chemnitz
Ähnliche Häuser Für ARCHITEKTENHAUS ESPRIT TRENDLINE