Atlanta von ARGISOL-Bausysteme
Ab 68.400 €

Bewertungen von ARGISOL-Bausysteme
4,2
(6)
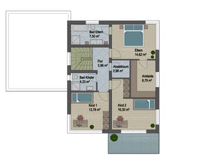
Grundriss für Atlanta
Grundrisse
Der Grundriss entspricht nicht Ihren Vorstellungen?
Passen Sie den Grundriss an Ihre persönlichen Bedürfnisse an und besprechen Sie Ihren individuellen Plan mit einem Bauberater des Anbieters.
Merkmale
Energiestandard und Förderung
Energiestandard
Effizienzhaus 40
Effizienzhaus 40 Plus
Effizienzhaus 55
Effizienzhaus 40 Plus
Ein Effizienzhaus 40 Plus verbraucht im Vergleich zum Referenzhaus 100 > 60 % weniger Energie. Sie müssen für den Hausbau mit Mehrkosten von ~ 13,5 % rechnen, die sich aber mittelfristig auszahlen. Es verfügt im Vergleich zum Effizienzhaus 40 über weitere Komponenten, wie beispielsweise eine Lüftungsanlage mit Wärmerückgewinnung, eine Anlage, mit der auf Basis erneuerbarer Energien Strom erzeugt werden kann und ein Batteriespeichersystem, mit dem überschüssige Energie eingespart werden kann.
Effizienzhaus 40
Seit dem 1. Juli 2010 gibt es neben dem Effizienzhaus 55 und dem Effizienzhaus 70 noch das Effizienzhaus 40. Das Effizienzhaus 40 darf nur 40 Prozent der nach Energieeinsparverordnung 2009 (EnEV) gültigen Höchstwerte hinsichtlich Jahres-Primärenergiebedarf und Transmissionswärmeverlust erreichen. Neben der Einsparung von 60 Prozent beim Jahres-Primärenergiebedarfs sind auch beim Transmissionswärmeverlust 45 Prozent einzusparen. Der maximale Jahresprimärenergiebedarf beträgt 30 kWh/m². Ein KfW-Effizienzhaus 40 Haus ist luftdicht und nutzt regenerative Energien, häufig eine Kombination aus Holzpellets, Solaranlage und Lüftungsanlage mit Wärmerückgewinnung.
Effizienzhaus 55
Ein Effizienzhaus 55 verbraucht im Vergleich zum Referenzhaus 100 45 % weniger Energie. Sie müssen für den Hausbau mit Mehrkosten von ~ 7,5 % rechnen, die sich aber mittelfristig auszahlen. Diese Effizienzklasse gilt heutzutage als Standard für alle neu gebauten Häuser.
Dach
Dachform
Flachdach
Satteldach
Das Satteldach liegt in Form eines Dreiecks auf dem Baukörper und schließt entweder mit seinem First parallel zu den beiden Giebeln ab oder es ragt noch über die Giebel hinaus. Satteldächer werden als Pfettendach oder als Sparrendach ausgebildet. Üblich sind Dachneigungen ab etwa 30˚ (flaches Satteldach) bis über 60˚ (altdeutsches Dach). Weit verbreitet sind Satteldächer mit etwa 38˚ bis 45˚ Neigung. Diese bieten genug Raum für einen Ausbau des Dachgeschosses.
Zeltdach
Seltene Dachform, die nur auf einem quadratischen oder annähernd quadratischen Grundriß errichtet werden kann. Zelt- oder Pyramidendächer findet man vor allem auf Türmen und Kirchtürmen.
Walmdach
Sehr häufig zu sehende Dachform, dem Satteldach verwandt. Im Gegensatz zu diesem schließt der First jedoch nicht mit den beiden Giebelwänden ab, sondern ist beidseitig zurückgebaut, das heißt abgeschrägt sind. Dabei unterscheidet man noch Zwergwalmdach, Krüppelwalmdach und Fußwalmdach. Da bei diesen Varianten nicht die komplette Seite abgewalmt ist, spricht man auch häufig von Vollwalmdach, wenn der Walm so ausgebildet ist, wie auf der Zeichnung. Weitere Bezeichnungen für Walmdach sind Walbendach, Holländisches Dach, Schopfdach oder Haubendach.
Krüppelwalmdach
Besonders auf nord- und niederdeutschen Gehöften gebräuchliche Variante des Walmdachs. Entspricht einem Walmdach mit hochgesetzter Traufhöhe am Giebel. In manchen Gegenden wird es auch als Schopfwalmdach bezeichnet.
Flachdach
Flachdächer sind allgegenwärtig und dominieren im Gewerbebau, im Bereich des privaten Hausbaus werden sie - mit stark abnehmender Tendenz - bei Bungalows angelegt und natürlich bei Garagen und Carports. Bei Flachdächern erfolgt keine Dacheindeckung mit Dachpfannen, vielmehr wird die Dachfläche mit Dachbahnen oder mit Metallblechen regenfest gemacht. Konstruktiv wird beim Flachdach unterschieden zwischen Kaltdach, Warmdach und Umkehrdach. Mit Dachbahnen abgedichtete Flachdächer werden auch heute noch, wenn auch mit stark abnehmender Tendenz, mit Rollkies belegt. Stark steigend, bei Gewerbebauten jedoch oftmals auch baubehördlich vorgeschrieben, ist die Anlage einer Dachbegrünung. Dadurch wird das Flachdach zum Gründach. Gründächer sind eine sinnvolle Alternative gegen die zunehmende Verdichtung des Bodens. Flachdächer sind im übrigen keineswegs eben, sie müssen ein Gefälle von mindestens 3 % aufweisen, damit das Regenwasser über den Dachgully oder die Dachrinnen abfließen kann.
Pultdach
Gefälledach, das wie ein Pultdeckel auf dem Baukörper liegt. Das Pultdach ist die einfachste Dachform überhaupt. Mit nur einen schrägen Dachfläche ist es kostengünstig herzustellen. Im Mittelmeerraum ist das Pultdach die häufigste Dachform. Seit einiger Zeit erfreut es sich auch hierzulande zunehmender Beliebtheit. Die Dachfläche von Pultdächern liegt meist zur Wetterseite hin, um Wind, Regen und Schnee abzuschirmen. An der Sonnenseite lässt das Haus Raum für große Lichtflächen.
Preisdetails für Atlanta
Bausatzhaus ab
68.400 €
ab 205,91 €
Dieser Preis ist ein Beispiel für den Anfang, ein Berater kann Ihnen ein detailliertes Angebot erstellen, das Ihren Bedürfnissen entspricht.
Möchten Sie bei Ihrem Projekt Geld sparen?
Durch einen Angebotsvergleich mit Fertighaus.de können Sie bis zu 20 % Ihrer Baukosten sparen.
Atlanta - Hilfreiche Fragen & Antworten
Das Atlanta wird als Bausatzhaus angeboten. Mit einem Quadratmeterpreis von rund 400 Euro für den Grundbausatz ordnet es sich im günstigen Preissegment ein. Beachten Sie jedoch, dass Materialien wie Beton und Baustahl bauseits zu stellen sind. Über uns können Sie alle Details anfordern, um eine umfassende Kostenübersicht für Ihr individuelles Vorhaben zu erhalten.
Das Atlanta besticht durch sein zeitloses Bauhaus-Design mit einem markanten Flachdach. Diese kubische Architektur ermöglicht zwei volle Stockwerke ohne störende Dachschrägen, was den Nutzwert der 160 m² Wohnfläche deutlich steigert. Große Glasflächen sorgen zudem für lichtdurchflutete Räume. Wir zeigen Ihnen gerne auf, wie dieses moderne Design mit dem hocheffizienten ARGISOL-Bausystem aus Neopor-Schalungssteinen ideal harmoniert.
Für dieses Einfamilienhaus mit einer geschätzten Grundfläche von 80 m² empfehlen wir eine Grundstücksgröße von etwa 400 m². Darin sind 50 m² für Stellplätze sowie eine Gartenfläche von ca. 260 m² bereits eingerechnet. So bleibt trotz der modernen Kubus-Bauweise genügend Freiraum für Ihre Erholung im Grünen und die Einhaltung der gesetzlich vorgeschriebenen Abstandsflächen zu den Nachbargrundstücken.
Das Modell Atlanta ist perfekt für handwerklich versierte Bauherren geeignet, die durch Eigenleistung beim Hausbau massiv Kosten sparen möchten. Als Bausatzhaus konzipiert, richtet es sich primär an Familien, die ein energieeffizientes und modernes Massivhaus im Design-Stil suchen. Wir begleiten Sie bei der Auswahl und stellen sicher, dass Sie alle Informationen erhalten, um Ihr Projekt erfolgreich in Eigenregie umzusetzen.
Über den Anbieter ARGISOL-Bausysteme
Zum Anbieterprofil
Bewertungen
4,2
(6)

Bewertungen
4,2
6 BewertungenHervorragend
ARGISOL-Bausysteme in Zahlen
Gründungsjahr
1986
Häuser im Angebot
21
Häuser pro Jahr
300
Häuser gesamt
11000
Mitarbeiter
14
Bewertungen von ARGISOL-Bausysteme
Es wurde Kontakt über Telefon aufgenommen.
Es wurde Kontakt über Telefon aufgenommen.
06 Aug. 2024Ewald A.
Sehr sachlich und informativ
Sachliche Beratung ohne Druck zum Abschluss eines Vertrags aufzubauen. Interessante Bauweise besonders mit Blick auf Energieeffizienz
13 Apr. 2024Elisabeth M.
Sehr freundliches Auftreten.
Sehr freundliches Auftreten. Aus finanziellen Gründen haben wir unser Bauvorhaben aufgegeben, da es teurer wird als geplant.
05 Aug. 2023Karsten W.
Leistungsspektrum
Finanzierungsberatung
Preisgarantie
Bauzeit Garantie
Individuelle Planung
Blower Door Test
Persönliche Beratung für Ihre individuellen Wünsche
Finden Sie jetzt Ihren Ansprechpartner
ARGISOL-Bausysteme
Ähnliche Häuser Für Atlanta


