


Doppelhaus DH 110 Basis von Baudirekt Architektenhäuser
Preis auf Anfrage
Bewertungen von Baudirekt Architektenhäuser
4,0
(26)
Wohnfläche
109 m²
Zimmer
4
Ausbaustufe
Schlüsselfertig
Bauweise
Massivhaus
Etagen
1,5
Energiestandard
Effizienzhaus 55
Dachform
Satteldach
Hausart
Doppelhaus
Beschreibung
Modernes Wohnen bedeutet auch, Wohnraum effizient und intelligent zu nutzen. Das DH 110 bietet nicht nur die Chance günstig und energieeffizient zu bauen, sondern vor allem auch sein ganz "privates Reich" zu verwirklichen. Bei dem DH 110 treffen Sie auf eine Massiv-Hausidee, die zwei Parteien so vereint, dass ein vollkommen eigenständiges Wohnen problemlos möglich ist.
Sie haben Interesse?
Laden Sie sich jetzt Ihr kostenloses Exposé zu diesem Haus herunter:
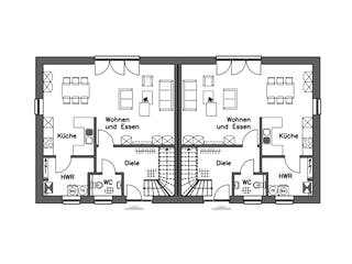
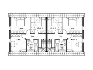
Grundrissfür Doppelhaus DH 110 Basis
Außenmaße
Länge: 16,8 m
Breite: 8,66 m
Grundrisse
Der Grundriss entspricht nicht Ihren Vorstellungen?
Passen Sie den Grundriss an Ihre persönlichen Bedürfnisse an und besprechen Sie Ihren individuellen Plan mit einem Bauberater des Anbieters.
Merkmale
Energiestandard und Förderung
Energiestandard
Effizienzhaus 55
Dach
Dachform
Satteldach
Preisdetails für Doppelhaus DH 110 Basis
Schlüsselfertig ab
Preis auf Anfrage
Dieser Preis ist ein Beispiel für den Anfang, ein Berater kann Ihnen ein detailliertes Angebot erstellen, das Ihren Bedürfnissen entspricht.
Möchten Sie bei Ihrem Projekt Geld sparen?
Durch einen Angebotsvergleich mit Fertighaus.de können Sie bis zu 20 % Ihrer Baukosten sparen.
Doppelhaus DH 110 Basis - Hilfreiche Fragen & Antworten
Da Baudirekt mit einem individuellen Handwerker-Preis-Check arbeitet, hängen die Kosten stark von regionalen Preisen und Ihrer Ausstattungswahl ab. Vergleichbare Massivhäuser dieser Kategorie liegen oft im mittelpreisigen Segment ab etwa 2.600 Euro pro Quadratmeter. Wir unterstützen Sie gerne dabei, ein konkretes Angebot über unser Portal anzufordern, um Planungssicherheit für Ihr Budget zu erhalten.
Dieses Doppelhaus wird in klassischer Massivbauweise „Stein auf Stein“ errichtet. Besonders hervorzuheben ist die innovative climpro-Außenwand von Baudirekt. Sie besteht aus zwei Schichten Porenbeton mit dazwischenliegender Dämmung. Diese Konstruktion sorgt nicht nur für eine hohe Stabilität und Langlebigkeit, sondern garantiert Ihnen zudem ein hervorragendes Raumklima sowie einen sehr guten Schallschutz zwischen den Wohneinheiten.
Für eine Doppelhaushälfte empfehlen wir eine Grundstücksfläche von mindestens 350 bis 400 m². Bei einer geschätzten Grundfläche von etwa 73 m² pro Einheit bleibt so genügend Raum für Garten und Stellplätze. Da die Außenmaße kompakt sind, eignet sich dieser Entwurf ideal für schmale städtische Grundstücke, auf denen Wohnraum besonders effizient und intelligent genutzt werden muss.
Nachhaltigkeit spielt bei diesem Modell eine zentrale Rolle. Das Haus erfüllt bereits im Standard den KfW-Effizienzhaus-Standard 55. Auf Wunsch können wir gemeinsam mit Baudirekt auch eine Umsetzung als Effizienzhaus 40 oder sogar 40+ planen. Durch die massive Bauweise und moderne Heiztechnik sparen Sie langfristig Energiekosten und schützen sich effektiv vor zukünftigen Preissteigerungen bei fossilen Brennstoffen.
Über den Anbieter Baudirekt Architektenhäuser
Zum Anbieterprofil
Bewertungen
4,0
(26)

Bewertungen
4,0
26 BewertungenGut
Baudirekt Architektenhäuser in Zahlen
Gründungsjahr
1995
Häuser im Angebot
64
Häuser pro Jahr
> 100
Mitarbeiter
51-100
Bewertungen von Baudirekt Architektenhäuser
Gute Beratung. Alles sehr transparent. Unsich...
Gute Beratung. Alles sehr transparent. Unsicher, ob Fertigstellungstermin auch eingehalten wird.
04 Apr. 2026Bernd D.
Gute Beratung. Günstiger Preis in guter Qualität.
Gute Beratung.
21 März 2026Bernd D.
Keine Rückmeldung
Erst einen Termin doppelt belegt, dann sollte ein neuer Termin vereinbart werden. Kein weiterer Kontakt
31 Jan. 2026Tom S.
Persönliche Beratung für Ihre individuellen Wünsche
Finden Sie jetzt Ihren Ansprechpartner
Baudirekt Architektenhäuser
Weitere Häuser
Beliebte Häuser von Baudirekt Architektenhäuser
Ähnliche Häuser Für Doppelhaus DH 110 Basis