













Mehrfamilienhaus Valfontana von Bau-Fritz - Mehrfamilienhäuser
Ab 1.290.000 €
Bewertungen von Bau-Fritz - Mehrfamilienhäuser
0
(0)
Wohnfläche
270 m²
Ausbaustufe
Schlüsselfertig
Bauweise
Fertighaus
Etagen
2,5
Energiestandard
Effizienzhaus 40
Dachform
Satteldach
Hausart
Mehrfamilienhaus
Beschreibung
Wie ein solches Haus ein Fertighaus sein kann – das haben sich vermutlich auch die Menschen des beschaulichen Bergdorfs im österreichischen Montafon gefragt. Tatsächlich sind die vier Ferienwohnungen im behaglichen Holzhaus und in bester Lage sehr begehrt. Bewusst hat man sich für das Baumaterial Holz mit dem ganz besonderen Wohngefühl entschieden. Und ein weiteres Argument kam hinzu: Aus der Ferne zu bauen, setzt enormes Vertrauen in den Baupartner voraus. Baufritz war hier erste Wahl und die Holzmodulbauweise die ideale Lösung. Nachhaltig wertvoll wohnen, das ermöglicht man den Gästen. Die grandiose Aussicht auf die monumentalen Bergriesen ist schönste Aussicht auf gesunde Lebensqualität in jedem Alter.
Architektur und Besonderheiten
- Ferien-Landhaus mit 4 Ferienwohnungen mit Terrasse/Balkon
- Ski- und Fahrradraum mmit Servicestation
- Geothermie-Heizung nutzt natürliche Erdwärme
- Weiter Dachüberstand schafft wettergeschützte Freisitze
Baufritz-Inklusivleistungen
- Individuelle Architektur – Jedes Baufritz-Haus ist ein Unikat. Wir fertigen Ihr Haus in unserer Manufaktur. Maßgefertigt für Sie und abgestimmt auf Ihre Wünsche.
- Holz-Alu-Fenster mit hochwertigem Schreinereinbau ohne PU-Bauschäum
- Ganzheitliches Gesundheitskonzept mit ausgezeichnetem Raumklima – Jedes Baufritz-Haus wird mit dem strengsten Siegel für Wohngesundheit zertifiziert: VDB-Zert
- Effektive X-und-E-Elektrosmog-Schutztechnik und abgeschirmte Elektroinstallation
- Hochwertiger und baubiologisch einwandfreier Innenausbau mit selbst entwickelten Baufritz-Innovationen (wie z.B. Innenraumfarben, Parkettkleber etc.) für ein einmalig gesundes Wohnklima
- Hochwertige Ausstattung bereits im Standard: Fußbodenheizung, Echtholzparkett, Vollholztüren, renommierte und namhafte Markenhersteller: Sanitär, Fliesen etc.
- Wärmedämmung „HOIZ": Unser biologischer Naturdämmstoff aus Holzspänen – eigens entwickelt, von natureplus geprüft und IBN-zertifiziert
- Persönliche Ansprechpartner von Anfang bis Einzug
- Ein erfahrener Innenraumplaner, der Sie während der Bemusterung begleitet und Ihnen z.B. bei Fragen zur Badgestaltung oder Lichtplanung mit Rat und Tat zur Seite steht
- Produktion und Montage durch ausgebildete Fachkräfte, die für faire Löhne und unter besten Bedingungen arbeiten
- Festpreisgarantie, Terminsicherheit und transparenter Prozess
Preis schlüsselfertig ab OK Keller/Bodenplatte, ohne Möbel und Küche im Liefergebiet Deutschland, basierend auf Preiskalkulation
Stand 02/2026, inkl. 19 % MwSt.
Sie haben Interesse?
Laden Sie sich jetzt Ihr kostenloses Exposé zu diesem Haus herunter:
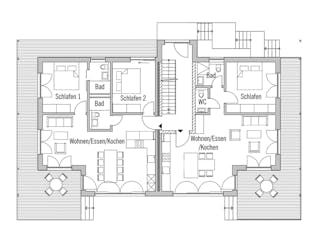
Grundrissfür Mehrfamilienhaus Valfontana
Außenmaße
Länge: 11,28 m
Breite: 17,53 m
Grundrisse
Der Grundriss entspricht nicht Ihren Vorstellungen?
Passen Sie den Grundriss an Ihre persönlichen Bedürfnisse an und besprechen Sie Ihren individuellen Plan mit einem Bauberater des Anbieters.
Merkmale
Energiestandard und Förderung
Energiestandard
Effizienzhaus 40
Dach
Dachform
Satteldach
Dachneigung
22°
Kniestockhöhe
313 cm
Preisdetails für Mehrfamilienhaus Valfontana
Schlüsselfertig ab
1.290.000 €
ab 3.883,44 €
Dieser Preis ist ein Beispiel für den Anfang, ein Berater kann Ihnen ein detailliertes Angebot erstellen, das Ihren Bedürfnissen entspricht.
Möchten Sie bei Ihrem Projekt Geld sparen?
Durch einen Angebotsvergleich mit Fertighaus.de können Sie bis zu 20 % Ihrer Baukosten sparen.
Mehrfamilienhaus Valfontana - Hilfreiche Fragen & Antworten
Der Quadratmeterpreis für dieses luxuriöse Mehrfamilienhaus liegt bei rund 4.800 Euro in der schlüsselfertigen Ausführung. Darin enthalten sind bereits hochwertige ökologische Dämmstoffe sowie ein umfassendes Gesundheitskonzept mit Elektrosmog-Schutz. Wir unterstützen Sie gerne dabei, ein detailliertes Angebot über uns anzufordern, damit Sie alle Inklusivleistungen für Ihr individuelles Bauprojekt im Detail prüfen können.
Das Valfontana besticht durch seinen alpenländischen Stil mit einem weiten Dachüberstand, der wettergeschützte Freisitze für alle vier Wohneinheiten schafft. Besonders praktisch für die Ferienvermietung sind der integrierte Ski- und Fahrradraum inklusive Servicestation. Die Kombination aus traditioneller Optik und moderner Holzmodulbauweise sorgt für ein behagliches Wohngefühl, das bei Feriengästen sehr begehrt ist und Wertbeständigkeit garantiert.
Auf einer Gesamtwohnfläche von 270 m² bietet dieses Objekt Platz für vier separate Ferienwohnungen, die jeweils über eigene Balkone oder Terrassen verfügen. Die Grundrisse sind darauf ausgelegt, maximale Privatsphäre für die Bewohner zu schaffen und gleichzeitig die Aussicht optimal zu nutzen. Dank der flexiblen Modulbauweise lassen sich die Innenräume individuell an Ihre spezifischen Anforderungen und die jeweiligen Grundstücksgegebenheiten anpassen.
Bau-Fritz setzt beim Valfontana konsequent auf eine wohngesunde Holzbauweise, die mit dem strengen VDB-Zertifikat ausgezeichnet ist. Durch die Verwendung von schadstofffreien Materialien und der CO2-neutralen Fertigung leisten Sie einen aktiven Beitrag zum Umweltschutz. Wir schätzen besonders das ganzheitliche Gesundheitskonzept, das durch abgeschirmte Elektroinstallationen und ökologische Naturdämmstoffe ein erstklassiges Raumklima für alle künftigen Bewohner und Gäste sicherstellt.
Über den Anbieter Bau-Fritz - Mehrfamilienhäuser
Zum Anbieterprofil
Bewertungen
0
(0)

Bewertungen
0
0 BewertungenKeine
Bau-Fritz - Mehrfamilienhäuser in Zahlen
Gründungsjahr
1896
Häuser im Angebot
13
Mitarbeiter
580
Leistungsspektrum
Finanzierungsberatung
Preisgarantie
Bauzeit Garantie
Individuelle Planung
Blower Door Test
Persönliche Beratung für Ihre individuellen Wünsche
Finden Sie jetzt Ihren Ansprechpartner
Bau-Fritz - Mehrfamilienhäuser
Weitere Häuser
Beliebte Häuser von Bau-Fritz - Mehrfamilienhäuser
Ähnliche Häuser Für Mehrfamilienhaus Valfontana