




BALANCE 145 V2 von Bien-Zenker
Ab 409.364 €
Bewertungen von Bien-Zenker
4,1
(271)
Wohnfläche
146 m²
Zimmer
5
Ausbaustufe
Schlüsselfertig
Bauweise
Fertighaus
Energiestandard
Effizienzhaus 55
Dachform
Satteldach
Hausart
Einfamilienhaus
Beschreibung
BALANCE Einfamilienhäuser sind wie geschaffen für eine repräsentative Lückenbebauung und machen besonders auf schmalen Grundstücken eine gute Figur. Alle BALANCE Häuser verbinden Modernität, attraktive Architektur und intelligente Grundrisse fürs Wohnen zu zweit oder als Familie und glänzen durch anspruchsvolle, höchst funktionale Lösungen.
Der Preis bezieht sich auf die Ausbaustufe ZAF als Effizienzhaus 55 inkl. Bodenplatte gemäß aktuell gültiger Bau- und Leistungsbeschreibung. Grundrisse und Abbildungen können Extras zeigen. Flächenangaben nach DIN 277.
Sie haben Interesse?
Laden Sie sich jetzt Ihr kostenloses Exposé zu diesem Haus herunter:
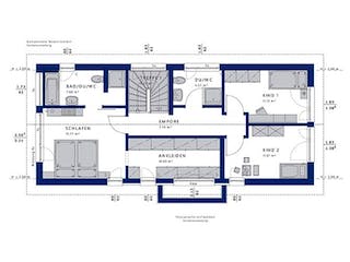
Grundrissfür BALANCE 145 V2
Grundrisse
Der Grundriss entspricht nicht Ihren Vorstellungen?
Passen Sie den Grundriss an Ihre persönlichen Bedürfnisse an und besprechen Sie Ihren individuellen Plan mit einem Bauberater des Anbieters.
Merkmale
Energiestandard und Förderung
Energiestandard
Effizienzhaus 40 Plus
Effizienzhaus 55
Plusenergiehaus
Dach
Dachform
Satteldach
Preisdetails für BALANCE 145 V2
Schlüsselfertig ab
409.364 €
ab 1.232,36 €
Dieser Preis ist ein Beispiel für den Anfang, ein Berater kann Ihnen ein detailliertes Angebot erstellen, das Ihren Bedürfnissen entspricht.
Möchten Sie bei Ihrem Projekt Geld sparen?
Durch einen Angebotsvergleich mit Fertighaus.de können Sie bis zu 20 % Ihrer Baukosten sparen.
BALANCE 145 V2 - Hilfreiche Fragen & Antworten
Für dieses schlüsselfertige Einfamilienhaus liegt der Preis bei etwa 2.800 Euro pro Quadratmeter. Damit ordnet es sich im mittelpreisigen Segment ein. Inbegriffen sind bereits die Bodenplatte und der hocheffiziente Effizienzhaus 40+ Standard. Gerne können Sie über uns ein detailliertes Angebot anfordern, das Ihre individuellen Wünsche und die aktuelle Bau- und Leistungsbeschreibung berücksichtigt.
Das Haus ist als klassisches Satteldachhaus konzipiert und eignet sich durch seine kompakte Form hervorragend für schmale Grundstücke oder Lückenbebauungen. Es kombiniert moderne Optik mit einer hohen Funktionalität. Die Architektur ist darauf ausgelegt, auch auf begrenzter Fläche einen repräsentativen Charakter zu bewahren. Besondere Details zur Fassadengestaltung können flexibel mit den Fachberatern von Bien-Zenker abgestimmt werden.
Wir empfehlen für dieses Bauvorhaben eine Grundstücksgröße von etwa 400 m². Diese Schätzung basiert auf einer Grundfläche von circa 73 m² sowie 50 m² für Stellplätze. So bleibt genügend Raum für einen Garten von rund 250 m², um gesetzliche Abstandsflächen zu wahren. Damit passt das Haus ideal in städtische Baulücken oder auf kompaktere Areale.
Das BALANCE 145 V2 wird als Plusenergiehaus im Standard Effizienzhaus 40+ errichtet. Bien-Zenker setzt auf ressourcenschonende Fertighaus-Bauweise und wurde bereits mehrfach für exzellente Nachhaltigkeit zertifiziert. Der Hersteller legt großen Wert darauf, ökologische Standards mit moderner Haustechnik zu vereinen. So profitieren Sie langfristig von niedrigen Energiekosten und leisten einen wertvollen Beitrag zum Umweltschutz für kommende Generationen.
Über den Anbieter Bien-Zenker
Zum Anbieterprofil
Bewertungen
4,1
(271)

Bewertungen
4,1
271 BewertungenGut
Bien-Zenker in Zahlen
Gründungsjahr
1906
Häuser im Angebot
99
Häuser pro Jahr
> 100
Häuser gesamt
> 80.000
Mitarbeiter
> 600
Bewertungen von Bien-Zenker
Sind noch am Anfang
Sind noch am Anfang
17 Feb. 2026Marco L.
Sehr freundliche Mitarbeiterin . Wir konnten ...
Sehr freundliche Mitarbeiterin . Wir konnten schnell einen passenden Termin vereinbaren.
29 Jan. 2026Litke P.
Es waren 6 Unternehmen, die mich kontaktiert ...
Es waren 6 Unternehmen, die mich kontaktiert haben und ich habe derzeit mit 4 Unternehmen Termine gemacht.
21 Jan. 2026Heike S.
Leistungsspektrum
Finanzierungsberatung
Preisgarantie
Bauzeit Garantie
Individuelle Planung
Blower Door Test
Persönliche Beratung für Ihre individuellen Wünsche
Finden Sie jetzt Ihren Ansprechpartner
Bien-Zenker
Auszeichnungen, Zertifikate & Mitgliedschaften














Ähnliche Häuser Für BALANCE 145 V2