




Dahlie von AVOS Hausbau
Ab 339.000 €
Bewertungen von AVOS Hausbau
4,0
(14)
Wohnfläche
139 m²
Zimmer
8
Ausbaustufe
Schlüsselfertig
Bauweise
Massivhaus
Etagen
3
Energiestandard
Effizienzhaus 55
Dachform
Satteldach
Hausart
Einfamilienhaus
Beschreibung
Großzügiger Wohntraum auf 1,5 Etagen - unser Einfamilienhaus Dahlie. Ideal für die Familie oder Paare. Der Grundriss und das Haus sind jederzeit nach Ihren Wünschen und Bedürfnissen individuell anpassbar.Sie erstellen Ihr Haus zusammen mit uns.
Sie haben Interesse?
Laden Sie sich jetzt Ihr kostenloses Exposé zu diesem Haus herunter:
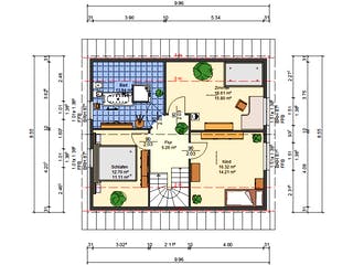
Grundrissfür Dahlie
Grundrisse
Der Grundriss entspricht nicht Ihren Vorstellungen?
Passen Sie den Grundriss an Ihre persönlichen Bedürfnisse an und besprechen Sie Ihren individuellen Plan mit einem Bauberater des Anbieters.
Merkmale
Energiestandard und Förderung
Energiestandard
Effizienzhaus 55
Dach
Dachform
Satteldach
Dachneigung
38°
Preisdetails für Dahlie
Schlüsselfertig ab
339.000 €
Ausbauhaus ab257.150 €
ab 1.020,53 €
Dieser Preis ist ein Beispiel für den Anfang, ein Berater kann Ihnen ein detailliertes Angebot erstellen, das Ihren Bedürfnissen entspricht.
Möchten Sie bei Ihrem Projekt Geld sparen?
Durch einen Angebotsvergleich mit Fertighaus.de können Sie bis zu 20 % Ihrer Baukosten sparen.
Dahlie - Hilfreiche Fragen & Antworten
Das Einfamilienhaus Dahlie bietet ein attraktives Preis-Leistungs-Verhältnis. In der schlüsselfertigen Variante liegt der Quadratmeterpreis bei etwa 2.400 Euro, was wir als günstiges Segment einstufen. Bei der Ausbaustufe „Ausbauhaus“ bewegt sich der Preis um 1.900 Euro pro Quadratmeter. Gerne können Sie über uns ein detailliertes Angebot anfordern, um alle Kostenfaktoren für Ihr individuelles Bauprojekt genau zu kalkulieren.
Für das Haus Dahlie empfehlen wir eine Grundstücksfläche von mindestens 450 m². Diese Kalkulation basiert auf der Wohnfläche von 139 m² sowie zusätzlichen 50 m² für PKW-Stellplätze. So bleibt genügend Raum für einen großzügigen Garten und die Einhaltung der nötigen Abstandsflächen. Wir beraten Sie gerne dabei, ob dieses Modell optimal auf Ihr vorhandenes Bauland in Berlin oder Brandenburg passt.
Die Dahlie überzeugt durch ihr klassisches Satteldach mit einer Neigung von 38 Grad. Diese Bauweise ermöglicht eine optimale Raumausnutzung im Dachgeschoss der 1,5 Etagen. Mit insgesamt acht Zimmern auf 139 m² bietet das Haus eine außergewöhnlich hohe Flexibilität in der Raumaufteilung. Besonders hervorzuheben ist die massive Bauweise, die für exzellenten Schallschutz und ein angenehmes, gesundes Raumklima sorgt.
Ja, die Individualität steht bei diesem Modell im Vordergrund. Gemeinsam mit den Architekten des Herstellers können wir den Grundriss exakt nach Ihren Wünschen gestalten oder anpassen. Ob Sie die acht Zimmer anders anordnen oder spezielle Wünsche für den Wohnbereich haben – fast alles ist möglich. Diese Flexibilität macht das Massivhaus Dahlie zu einer idealen Wahl für anspruchsvolle Familien oder Paare.
Über den Anbieter AVOS Hausbau
Zum Anbieterprofil
Bewertungen
4,0
(14)

Bewertungen
4,0
14 BewertungenGut
AVOS Hausbau in Zahlen
Gründungsjahr
1992
Häuser im Angebot
30
Häuser pro Jahr
75
Häuser gesamt
2215
Mitarbeiter
12
Bewertungen von AVOS Hausbau
Häuser gefallen mir nicht.
Häuser gefallen mir nicht.
17 Apr. 2025Ingmar K.
Leistungsspektrum
Finanzierungsberatung
Preisgarantie
Bauzeit Garantie
Individuelle Planung
Blower Door Test
Persönliche Beratung für Ihre individuellen Wünsche
Finden Sie jetzt Ihren Ansprechpartner
AVOS Hausbau
Ähnliche Häuser Für Dahlie