Lifestyle Doppelhaushälfte 158.1 von Haus der Handwerker
Preis auf Anfrage

Bewertungen von Haus der Handwerker
4,7
(3)
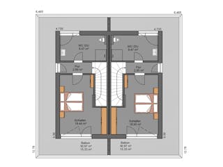
Grundriss für Lifestyle Doppelhaushälfte 158.1
Außenmaße
Länge: 12,29 m
Breite: 6,47 m
Grundrisse
Der Grundriss entspricht nicht Ihren Vorstellungen?
Passen Sie den Grundriss an Ihre persönlichen Bedürfnisse an und besprechen Sie Ihren individuellen Plan mit einem Bauberater des Anbieters.
Merkmale
Energiestandard und Förderung
Energiestandard
Effizienzhaus 40
Effizienzhaus 40 EE
Effizienzhaus 40 NH
Effizienzhaus 40 Plus
Effizienzhaus 55
Plusenergiehaus
Effizienzhaus 40 Plus
Ein Effizienzhaus 40 Plus verbraucht im Vergleich zum Referenzhaus 100 > 60 % weniger Energie. Sie müssen für den Hausbau mit Mehrkosten von ~ 13,5 % rechnen, die sich aber mittelfristig auszahlen. Es verfügt im Vergleich zum Effizienzhaus 40 über weitere Komponenten, wie beispielsweise eine Lüftungsanlage mit Wärmerückgewinnung, eine Anlage, mit der auf Basis erneuerbarer Energien Strom erzeugt werden kann und ein Batteriespeichersystem, mit dem überschüssige Energie eingespart werden kann.
Effizienzhaus 40
Seit dem 1. Juli 2010 gibt es neben dem Effizienzhaus 55 und dem Effizienzhaus 70 noch das Effizienzhaus 40. Das Effizienzhaus 40 darf nur 40 Prozent der nach Energieeinsparverordnung 2009 (EnEV) gültigen Höchstwerte hinsichtlich Jahres-Primärenergiebedarf und Transmissionswärmeverlust erreichen. Neben der Einsparung von 60 Prozent beim Jahres-Primärenergiebedarfs sind auch beim Transmissionswärmeverlust 45 Prozent einzusparen. Der maximale Jahresprimärenergiebedarf beträgt 30 kWh/m². Ein KfW-Effizienzhaus 40 Haus ist luftdicht und nutzt regenerative Energien, häufig eine Kombination aus Holzpellets, Solaranlage und Lüftungsanlage mit Wärmerückgewinnung.
Effizienzhaus 55
Ein Effizienzhaus 55 verbraucht im Vergleich zum Referenzhaus 100 45 % weniger Energie. Sie müssen für den Hausbau mit Mehrkosten von ~ 7,5 % rechnen, die sich aber mittelfristig auszahlen. Diese Effizienzklasse gilt heutzutage als Standard für alle neu gebauten Häuser.
Dach
Dachform
Flachdach
Satteldach
Das Satteldach liegt in Form eines Dreiecks auf dem Baukörper und schließt entweder mit seinem First parallel zu den beiden Giebeln ab oder es ragt noch über die Giebel hinaus. Satteldächer werden als Pfettendach oder als Sparrendach ausgebildet. Üblich sind Dachneigungen ab etwa 30˚ (flaches Satteldach) bis über 60˚ (altdeutsches Dach). Weit verbreitet sind Satteldächer mit etwa 38˚ bis 45˚ Neigung. Diese bieten genug Raum für einen Ausbau des Dachgeschosses.
Zeltdach
Seltene Dachform, die nur auf einem quadratischen oder annähernd quadratischen Grundriß errichtet werden kann. Zelt- oder Pyramidendächer findet man vor allem auf Türmen und Kirchtürmen.
Walmdach
Sehr häufig zu sehende Dachform, dem Satteldach verwandt. Im Gegensatz zu diesem schließt der First jedoch nicht mit den beiden Giebelwänden ab, sondern ist beidseitig zurückgebaut, das heißt abgeschrägt sind. Dabei unterscheidet man noch Zwergwalmdach, Krüppelwalmdach und Fußwalmdach. Da bei diesen Varianten nicht die komplette Seite abgewalmt ist, spricht man auch häufig von Vollwalmdach, wenn der Walm so ausgebildet ist, wie auf der Zeichnung. Weitere Bezeichnungen für Walmdach sind Walbendach, Holländisches Dach, Schopfdach oder Haubendach.
Krüppelwalmdach
Besonders auf nord- und niederdeutschen Gehöften gebräuchliche Variante des Walmdachs. Entspricht einem Walmdach mit hochgesetzter Traufhöhe am Giebel. In manchen Gegenden wird es auch als Schopfwalmdach bezeichnet.
Flachdach
Flachdächer sind allgegenwärtig und dominieren im Gewerbebau, im Bereich des privaten Hausbaus werden sie - mit stark abnehmender Tendenz - bei Bungalows angelegt und natürlich bei Garagen und Carports. Bei Flachdächern erfolgt keine Dacheindeckung mit Dachpfannen, vielmehr wird die Dachfläche mit Dachbahnen oder mit Metallblechen regenfest gemacht. Konstruktiv wird beim Flachdach unterschieden zwischen Kaltdach, Warmdach und Umkehrdach. Mit Dachbahnen abgedichtete Flachdächer werden auch heute noch, wenn auch mit stark abnehmender Tendenz, mit Rollkies belegt. Stark steigend, bei Gewerbebauten jedoch oftmals auch baubehördlich vorgeschrieben, ist die Anlage einer Dachbegrünung. Dadurch wird das Flachdach zum Gründach. Gründächer sind eine sinnvolle Alternative gegen die zunehmende Verdichtung des Bodens. Flachdächer sind im übrigen keineswegs eben, sie müssen ein Gefälle von mindestens 3 % aufweisen, damit das Regenwasser über den Dachgully oder die Dachrinnen abfließen kann.
Pultdach
Gefälledach, das wie ein Pultdeckel auf dem Baukörper liegt. Das Pultdach ist die einfachste Dachform überhaupt. Mit nur einen schrägen Dachfläche ist es kostengünstig herzustellen. Im Mittelmeerraum ist das Pultdach die häufigste Dachform. Seit einiger Zeit erfreut es sich auch hierzulande zunehmender Beliebtheit. Die Dachfläche von Pultdächern liegt meist zur Wetterseite hin, um Wind, Regen und Schnee abzuschirmen. An der Sonnenseite lässt das Haus Raum für große Lichtflächen.
Preisdetails für Lifestyle Doppelhaushälfte 158.1
Schlüsselfertig ab
Preis auf Anfrage
Dieser Preis ist ein Beispiel für den Anfang, ein Berater kann Ihnen ein detailliertes Angebot erstellen, das Ihren Bedürfnissen entspricht.
Möchten Sie bei Ihrem Projekt Geld sparen?
Durch einen Angebotsvergleich mit Fertighaus.de können Sie bis zu 20 % Ihrer Baukosten sparen.
Lifestyle Doppelhaushälfte 158.1 - Hilfreiche Fragen & Antworten
Da Haus der Handwerker jedes Projekt individuell plant, wird der finale Preis auf Anfrage ermittelt. Bei massiven Doppelhäusern in schlüsselfertiger Ausführung sollten Sie mit Kosten rechnen, die sich im gehobenen Segment bewegen. Wir unterstützen Sie gerne dabei, ein konkretes Angebot für Ihre individuellen Planungsvorgaben über unsere Plattform einzuholen.
Für die Lifestyle Doppelhaushälfte 158.1 empfehlen wir ein Grundstück von etwa 400 m². Die Grundfläche beträgt rund 80 m², woraus sich unter Berücksichtigung von 50 m² für Stellplätze und einer großzügigen Gartenfläche von etwa 260 m² dieser Bedarf ergibt. So stellen wir sicher, dass alle Abstandsflächen eingehalten werden und ausreichend Freiraum bleibt.
Die Architektur besticht durch den modernen Bauhaus-Stil mit einem markanten Flachdach. Ein absolutes Highlight ist die dreiseitig nutzbare Dachterrasse, die zusätzlichen Wohnraum im Freien schafft. Große Fensterflächen sorgen zudem für lichtdurchflutete Räume auf allen 2,5 Etagen. Wir schätzen an diesem Entwurf besonders die Kombination aus kubischer Eleganz und hoher Funktionalität.
Dieses Haus wird in traditioneller Massivbauweise Stein auf Stein errichtet, was für hohe Langlebigkeit und Wertstabilität sorgt. Der Anbieter gewährt Ihnen umfassende Sicherheiten wie eine Festpreisgarantie sowie eine Bauzeitgarantie. Eine DEKRA-baubegleitende Immobilienprüfung ist ebenfalls im Paket enthalten. Wir begleiten Sie durch diesen Prozess und sorgen für eine transparente Abwicklung Ihres Bauvorhabens.
Über den Anbieter Haus der Handwerker
Zum Anbieterprofil
Bewertungen
4,7
(3)

Bewertungen
4,7
3 BewertungenHervorragend
Haus der Handwerker in Zahlen
Gründungsjahr
2007
Häuser im Angebot
16
Häuser gesamt
948
Bewertungen von Haus der Handwerker
Schelle und kompetente Kontaktaufnahme. Verzö...
Schelle und kompetente Kontaktaufnahme. Verzögerung ist unsererseits entstanden. Neben dem noch ausstehenden, persönlichen Gespräch sind wir gemeinsam auf der Suche nach einem Grundstück. Bekommen immer wieder Vorschläge seitens dem Anbieter. Fühlen uns aktuell sehr gut betreut. Erste Preisvorstellung nach Sichtung der Unterlagen / Fixierung auf ein Modell ebenfalls erhalten. Detailiertes Angebot denke ich erfolgt nach persönlichem Gespräch vor Ort.
01 Dez. 2025Andreas B.
Freundlicher Kontakt !
Freundlicher Kontakt !
26 Nov. 2025Frank M.
Ein Konstruktives und vielversprechendes Tele...
Ein Konstruktives und vielversprechendes Telefonat geführt. Wenn ein Grundstück gefunden ist kann die Planung beginnen.
09 Aug. 2025Michael P.
Leistungsspektrum
Finanzierungsberatung
Preisgarantie
Bauzeit Garantie
Individuelle Planung
Blower Door Test
Persönliche Beratung für Ihre individuellen Wünsche
Finden Sie jetzt Ihren Ansprechpartner
Haus der Handwerker
Ähnliche Häuser Für Lifestyle Doppelhaushälfte 158.1





