


Bungalow Vita von Kern-Haus
Ab 362.900 €
Bewertungen von Kern-Haus
3,9
(82)
Wohnfläche
124 m²
Zimmer
3
Ausbaustufe
Schlüsselfertig
Bauweise
Massivhaus
Etagen
1
Energiestandard
Effizienzhaus 55 EE
Dachform
Walmdach
Hausart
Einfamilienhaus
Beschreibung
Das beste Lebensgefühl im Bungalow Vita! Barrierefrei wohnen. Extrabreite Türen und lichtdurchflutete Räume bieten in diesem Haus bestes Lebensgefühl in jedem Lebensalter!
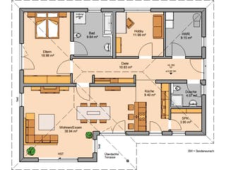
Von der fast 17 Quadratmeter großen Diele sind nahezu alle Räume direkt zu erreichen. Rechts von der Eingangstür befindet sich der Hobbyraum oder das Home-Office, Gästezimmer oder alternativ ein zweites Schlafzimmer. Das Schlafzimmer mit direkt anliegendem Badezimmer lädt zum Entspannen ein und ist bereits mit praktischen und durchdachten Details für das Alter vorbereitet- wie z.B. einer schwellenlosen Dusche. Die Badezimmertür kann flexibel umgebaut werden, sodass das Badezimmer direkt von der Diele aus erreicht werden kann. Der großräumige Wohn-Essbereich lädt zu Familienbesuchen ein oder dient der Entspannung mit einer Tasse Tee auf der Couch oder bei schönem Wetter auf der überdachten Terrasse. Die Küche verfügt über eine direkt angrenzende Speisekammer und einen direkten Zugang auf die überdachte Terrasse.
Kern-Haus steht für 40 Jahre Expertise für das massive, energieeffiziente Bauen und realisiert Architektenhäuser in Ziegel, Bims, Porenbeton oder Stahlbeton (DuoTherm). Darüber hinaus setzt der Massivhaushersteller auf Energieeffizienz bei all seinen Häusern, denn bereits im Standard ist jedes Haus in der höchsten Energieeffizienzklasse A+.
Sie haben Interesse?
Laden Sie sich jetzt Ihr kostenloses Exposé zu diesem Haus herunter:
Grundrissfür Bungalow Vita
Außenmaße
Länge: 11,85 m
Breite: 14,35 m
Grundrisse
Der Grundriss entspricht nicht Ihren Vorstellungen?
Passen Sie den Grundriss an Ihre persönlichen Bedürfnisse an und besprechen Sie Ihren individuellen Plan mit einem Bauberater des Anbieters.
Merkmale
Energiestandard und Förderung
Energiestandard
Effizienzhaus 55 EE
Dach
Dachform
Walmdach
Dachneigung
22.5°
Preisdetails für Bungalow Vita
Schlüsselfertig ab
362.900 €
ab 1.092,48 €
Dieser Preis ist ein Beispiel für den Anfang, ein Berater kann Ihnen ein detailliertes Angebot erstellen, das Ihren Bedürfnissen entspricht.
Möchten Sie bei Ihrem Projekt Geld sparen?
Durch einen Angebotsvergleich mit Fertighaus.de können Sie bis zu 20 % Ihrer Baukosten sparen.
Bungalow Vita - Hilfreiche Fragen & Antworten
Der Bungalow Vita liegt bei einem Quadratmeterpreis von etwa 2.900 Euro und ordnet sich damit im mittelpreisigen Segment ein. In diesem schlüsselfertigen Angebot sind bereits eine moderne Wärmepumpe sowie eine Lüftungsanlage mit Wärmerückgewinnung enthalten. Zudem profitieren Sie von einer Festpreisbindung, die Ihnen finanzielle Planungssicherheit während der gesamten Bauphase über uns garantiert.
Die Architektur dieses Bungalows ist konsequent auf Barrierefreiheit und Komfort ausgelegt. Breite Türen und ein ebenerdiger Grundriss ermöglichen ein angenehmes Lebensgefühl in jedem Alter. Das Walmdach verleiht dem Haus eine klassische Optik, während Details wie die schwellenlose Dusche bereits im Standard für die Zukunft vorsorgen. Gerne präsentieren wir Ihnen weitere individuelle Anpassungsmöglichkeiten.
Für dieses Modell empfehlen wir eine Grundstücksgröße von mindestens 650 Quadratmetern. Da der Bungalow mit einer Grundfläche von etwa 170 Quadratmetern großzügig auf einer Ebene plant, benötigen Sie etwas mehr Fläche als bei mehrgeschossigen Häusern. So bleibt genügend Raum für die überdachte Terrasse, die Stellplätze und einen schönen Garten zur Erholung.
Kern-Haus setzt bei diesem Massivhaus auf höchste Energieeffizienz, sodass der Bungalow standardmäßig die Klasse A+ erreicht. Durch die massive Bauweise und den Einsatz regenerativer Energien wohnen Sie besonders klimafreundlich. Eine effiziente Wohnraumlüftung sorgt zudem dafür, dass bis zu 95 Prozent der Heizwärme erhalten bleiben. Dies schont die Umwelt und hält Ihre Betriebskosten dauerhaft niedrig.
Über den Anbieter Kern-Haus
Zum Anbieterprofil
Bewertungen
3,9
(82)

Bewertungen
3,9
82 BewertungenGut
Kern-Haus in Zahlen
Gründungsjahr
1980
Häuser im Angebot
59
Mitarbeiter
300
Bewertungen von Kern-Haus
Frau Kuss ist sehr nett und engagiert. Sie ke...
Frau Kuss ist sehr nett und engagiert. Sie kennt das Unternehmen und hat eine ausführliche Bedarfsanalyse durchgeführt.
21 März 2026Julia V.
Mail erhalten, leider war ich selbst schlecht...
Mail erhalten, leider war ich selbst schlecht erreichbar.
16 März 2024Florian W.
Email erhalten
Email erhalten
10 März 2024Ana Cecilia S.
Leistungsspektrum
Preisgarantie
Bauzeit Garantie
Individuelle Planung
Blower Door Test
Persönliche Beratung für Ihre individuellen Wünsche
Finden Sie jetzt Ihren Ansprechpartner
Kern-Haus
Auszeichnungen, Zertifikate & Mitgliedschaften





Ähnliche Häuser Für Bungalow Vita