



STADTVILLA SIGNUS von Kern-Haus Chemnitz
Ab 357.900 €
Bewertungen von Kern-Haus Chemnitz
5,0
(1)
Wohnfläche
146 m²
Zimmer
5
Ausbaustufe
Schlüsselfertig
Bauweise
Massivhaus
Energiestandard
Effizienzhaus 55
Dachform
Walmdach
Hausart
Einfamilienhaus
Beschreibung
Der lichtdurchflutete Wohntraum 'Signus' lässt keine Wünsche offen. Auf zwei Vollgeschossen findet die ganze Familie Platz, um sich zu entspannen und frei zu entfalten. Die bodentiefen Fensterelemente machen das Haus zu einem Wohnerlebnis und zeigen die Großzügigkeit dieser zeitlosen Stadtvilla.
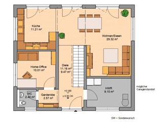
Gleich im Eingangsbereich zeigt die Stadtvilla Signus durch ihre Offenheit was sie zu bieten hat. Eine große Garderobe verstaut die Jacken und Mäntel der Bewohner sowie Besucher. Über einen langen Flur, vorbei an der geradläufigen Treppe, gelangen Sie in den Wohn-/Essbereich des Hauses, an den auch die offene Küche Anschluss findet. Von hier bieten die bodentiefen Fenster einen herrlichen Blick in den Garten. Des Weiteren befindet sich im Erdgeschoss ein Home-Office, das auch als Gäste-Zimmer genutzt werden kann, als auch ein Hauswirtschaftsraum und ein Gäste-WC.
Im Obergeschoss steht das Wohlbefinden jedes einzelnen Familienmitglieds im Vordergrund. Die Räume der Kinder sind großzügig gestaltet und sind ein angenehmer Rückzugsort. Das Elternschlafzimmer verfügt über ein angrenzendes Ankleidezimmer. Im Wellness-Bad kann die ganze Familie nach Herzenslust die Seele baumeln lassen.
Dieses Haus wird nach Ihren individuellen Wünschen geplant und ausgestattet!
Sie haben Interesse?
Laden Sie sich jetzt Ihr kostenloses Exposé zu diesem Haus herunter:
Grundrissfür STADTVILLA SIGNUS
Grundrisse
Der Grundriss entspricht nicht Ihren Vorstellungen?
Passen Sie den Grundriss an Ihre persönlichen Bedürfnisse an und besprechen Sie Ihren individuellen Plan mit einem Bauberater des Anbieters.
Merkmale
Energiestandard und Förderung
Energiestandard
Effizienzhaus 55
Dach
Dachform
Walmdach
Preisdetails für STADTVILLA SIGNUS
Schlüsselfertig ab
357.900 €
ab 1.077,43 €
Dieser Preis ist ein Beispiel für den Anfang, ein Berater kann Ihnen ein detailliertes Angebot erstellen, das Ihren Bedürfnissen entspricht.
Möchten Sie bei Ihrem Projekt Geld sparen?
Durch einen Angebotsvergleich mit Fertighaus.de können Sie bis zu 20 % Ihrer Baukosten sparen.
STADTVILLA SIGNUS - Hilfreiche Fragen & Antworten
Für diese schlüsselfertige Stadtvilla liegt der Preis bei etwa 2.500 Euro pro Quadratmeter. Damit ordnet sich das Objekt im mittleren Preissegment ein. Beachten Sie, dass individuelle Sonderwünsche die Kosten beeinflussen können. Wir unterstützen Sie gerne dabei, ein detailliertes Angebot direkt beim Anbieter über unser Portal anzufordern, um Ihre Planungssicherheit zu erhöhen.
Die Stadtvilla überzeugt durch ein klassisches Walmdach und zwei Vollgeschosse ohne störende Dachschrägen. Dies ermöglicht eine optimale Raumausnutzung im Obergeschoss. Die Fassade ist durch bodentiefe Fensterelemente geprägt, die für lichtdurchflutete Wohnräume sorgen. Wir finden, dass dieser Stil eine zeitlose Eleganz vermittelt und viel Freiraum für Ihre individuelle Gestaltung der Außenansicht lässt.
Wir empfehlen für die Stadtvilla Signus eine Grundstücksgröße von mindestens 400 m². Bei einer geschätzten Grundfläche von 73 m² bietet diese Fläche ausreichend Platz für das Gebäude, etwa 50 m² Stellplatz sowie einen Gartenanteil von rund 250 m². So bleiben die vorgeschriebenen Abstandsflächen gewahrt und Sie behalten genügend privaten Freiraum für Ihre Erholung im Grünen.
Kern-Haus Chemnitz setzt bei diesem Modell auf die bewährte Massivbauweise. Diese Konstruktion bietet hervorragenden Schallschutz und eine hohe Wertbeständigkeit für Generationen. Das Haus eignet sich ideal für Familien mit zwei Kindern, da es fünf Zimmer auf 146 m² bietet. Zudem erfüllt es den Standard Effizienzhaus 55, was Ihnen langfristig attraktive Einsparungen bei den Heizkosten ermöglicht.
Über den Anbieter Kern-Haus Chemnitz
Zum Anbieterprofil
Bewertungen
5,0
(1)

Bewertungen
5,0
1 BewertungHervorragend
Kern-Haus Chemnitz in Zahlen
Gründungsjahr
1995
Häuser im Angebot
52
Häuser pro Jahr
10-20
Mitarbeiter
1-10
Leistungsspektrum
Finanzierungsberatung
Preisgarantie
Bauzeit Garantie
Individuelle Planung
Blower Door Test
Persönliche Beratung für Ihre individuellen Wünsche
Finden Sie jetzt Ihren Ansprechpartner
Kern-Haus Chemnitz
Ähnliche Häuser Für STADTVILLA SIGNUS