









Bauhaus Mundt von MYMassivhaus
Preis auf Anfrage
Bewertungen von MYMassivhaus
5,0
(1)
Wohnfläche
164 m²
Zimmer
5
Ausbaustufe
Schlüsselfertig
Bauweise
Massivhaus
Etagen
2
Energiestandard
Effizienzhaus 55
Dachform
Flachdach
Hausart
Einfamilienhaus
Beschreibung
Entdecken Sie das Bauhaus Mundt – ein Meisterwerk modernen Wohnens, das Gemütlichkeit und zeitgemäßes Design auf rund 164 m² harmonisch vereint.
Architektonisches Highlight:
Die Kombination aus klaren Bauhaus-Linien und einer waagerechten Holzverschalung im Obergeschoss verleiht dem Haus einen natürlichen Charme, der sich nahtlos in die bergische Landschaft einfügt.
Erdgeschoss:
Offener Wohn-/Essbereich: Großzügig gestaltet mit bodentiefen Fenstern, die einen fließenden Übergang zur Terrasse schaffen und für lichtdurchflutete Räume sorgen.
Moderne Küche: Stilvolle, grifflose schwarz-matte Fronten mit integrierten Holzelementen und direktem Zugang zum Hauswirtschaftsraum für höchsten Komfort.
Flexibles Gästezimmer/Homeoffice: Bietet Raum für Besucher oder konzentriertes Arbeiten von zu Hause aus.
Praktisches Gäste-WC: Direkt neben dem Eingangsbereich für zusätzlichen Komfort.
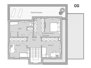
Dachgeschoss:
Zwei gleichgroße Kinderzimmer: Optimal für Familien, die Wert auf Gleichberechtigung und individuellen Raum legen.
Elternschlafzimmer mit Ankleide: Ein privater Rückzugsort mit direktem Zugang zur großzügigen Ankleide.
Luxuriöses Badezimmer: Ausgestattet mit Badewanne und verglaster Duschkabine – Ihre persönliche Wellnessoase.
Großzügige Dachterrasse: Erstreckt sich über die gesamte Hausrückseite und bietet einen atemberaubenden Blick in die Natur – perfekt für entspannte Stunden im Freien.
Energieeffizienz und Technik:
Luft/Wasser-Wärmepumpe, zentrale Lüftungsanlage mit Wärmerückgewinnung, die für ein gesundes Raumklima sorgt und Energieverluste reduziert sowie einer Photovoltaikanlage auf begrüntem Flachdach
Erleben Sie ein Zuhause, das modernes Design mit höchstem Wohnkomfort verbindet. Lassen Sie sich von der gelungenen Symbiose aus Architektur und Natur begeistern und verwirklichen Sie Ihren Traum vom individuellen Wohnen.
Kontaktieren Sie uns für weitere Informationen und lassen Sie sich von diesem einzigartigen Bauhaus inspirieren.
Merkmale
- Gästezimmer
Sie haben Interesse?
Laden Sie sich jetzt Ihr kostenloses Exposé zu diesem Haus herunter:
Grundrissfür Bauhaus Mundt
Grundrisse
Der Grundriss entspricht nicht Ihren Vorstellungen?
Passen Sie den Grundriss an Ihre persönlichen Bedürfnisse an und besprechen Sie Ihren individuellen Plan mit einem Bauberater des Anbieters.
Merkmale
Energiestandard und Förderung
Energiestandard
Effizienzhaus 40
Effizienzhaus 40 EE
Effizienzhaus 40 NH
Effizienzhaus 40 Plus
Effizienzhaus 55
Plusenergiehaus
Dach
Dachform
Flachdach
Preisdetails für Bauhaus Mundt
Schlüsselfertig ab
Preis auf Anfrage
Dieser Preis ist ein Beispiel für den Anfang, ein Berater kann Ihnen ein detailliertes Angebot erstellen, das Ihren Bedürfnissen entspricht.
Möchten Sie bei Ihrem Projekt Geld sparen?
Durch einen Angebotsvergleich mit Fertighaus.de können Sie bis zu 20 % Ihrer Baukosten sparen.
Bauhaus Mundt - Hilfreiche Fragen & Antworten
Da das Bauhaus Mundt individuell geplant wird, variiert der Preis je nach Ausstattung. Bei schlüsselfertigen Massivhäusern dieser Qualität können Sie üblicherweise mit Kosten zwischen 2.500 und 3.000 Euro pro Quadratmeter rechnen. Gerne erstellen wir für Sie eine detaillierte Kalkulation. Fordern Sie die entsprechenden Unterlagen einfach über unser Portal bei uns an.
Das Haus besticht durch den klassischen Bauhaus-Stil mit modernem Flachdach. Ein besonderes Highlight ist die waagerechte Holzverschalung im Obergeschoss. Diese verleiht dem massiven Kubus eine natürliche Optik. In Kombination mit den großen, bodentiefen Glasflächen entsteht so ein sehr einladendes und zeitgemäßes Erscheinungsbild, das sich harmonisch in die Umgebung einfügt.
Für das Bauhaus Mundt mit 164 m² Wohnfläche empfehlen wir eine Grundstücksgröße von mindestens 400 m². Diese Kalkulation basiert auf einer geschätzten Grundfläche von 82 m² sowie 50 m² für Stellplätze. So bleibt genügend Raum für einen Garten von circa 260 m², damit Sie die großzügige Architektur und Dachterrasse entspannt genießen können.
MYMassivhaus setzt beim Modell Mundt auf die bewährte Massivbauweise. Stein auf Stein gebaut, bietet das Haus hervorragenden Schallschutz und eine hohe Wertbeständigkeit. Da keine Häuser von der Stange angeboten werden, lassen sich Grundrisse und Ausstattung flexibel anpassen. So erhalten Sie ein echtes Unikat, das exakt auf Ihre persönlichen Bedürfnisse zugeschnitten ist.
Über den Anbieter MYMassivhaus
Zum Anbieterprofil
Bewertungen
5,0
(1)

Bewertungen
5,0
1 BewertungHervorragend
MYMassivhaus in Zahlen
Häuser im Angebot
17
Häuser pro Jahr
> 100
Mitarbeiter
> 100
Persönliche Beratung für Ihre individuellen Wünsche
Finden Sie jetzt Ihren Ansprechpartner
MYMassivhaus
Ähnliche Häuser Für Bauhaus Mundt