









Haus Junghans von Projektbau Mutter
Preis auf Anfrage
Bewertungen von Projektbau Mutter
0
(0)
Wohnfläche
137 m²
Zimmer
5
Ausbaustufe
Schlüsselfertig
Bauweise
Massivhaus
Etagen
1,5
Energiestandard
Effizienzhaus 55
Dachform
Satteldach
Hausart
Einfamilienhaus
Beschreibung
Das perfekte Einfamilienhaus mit Keller.
Mit der in einem hellen Erdton gehaltenen Fassade mit partieller Holzverkleidung, anthrazitfarbenen Fenstern und Türen, dem reduzierten Dachüberstand und der aus dem Haus herausgezogenen Garage, ist Haus Junghans die moderne Interpretation eines klassischen Satteldachhauses.
Rund 137 m² Wohnfläche bieten ausreichend Platz für eine vierköpfige Familie. Zu Haus Junghans gehören drei Schlafzimmer und zwei Bäder. Drei Kellerräume und ein Technikraum runden das Einfamilienhaus ab.
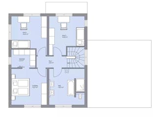
Im Erdgeschoss geht es von der Diele aus rechter Hand direkt in ein Duschbad mit WC. Verschmutzte Kleidung rutscht durch einen Wäscheschacht direkt hinunter zur Waschmaschine. Im weiträumigen offenen Wohnbereich mit Wohnzimmer, Esstisch und Küche sorgen großflächige Fenster für viel Lichteinfall, der bei schönem Wetter auch auf der angeschlossenen Terrasse genossen werden kann.
Eine edle Holztreppe führt hinauf ins Obergeschoss mit jeweils über 14 m² großen Kinderzimmern, dem Elternschlafzimmer mit abtrennbarem Ankleidebereich sowie dem Familienbad mit zwei Waschbecken, begehbarer Dusche, einer Badewanne und ebenfalls einem Wäscheschacht in den Keller.
Preis auf Anfrage
Sie haben Interesse?
Laden Sie sich jetzt Ihr kostenloses Exposé zu diesem Haus herunter:
Grundrissfür Haus Junghans
Außenmaße
Länge: 8,62 m
Breite: 11,62 m
Grundrisse
Der Grundriss entspricht nicht Ihren Vorstellungen?
Passen Sie den Grundriss an Ihre persönlichen Bedürfnisse an und besprechen Sie Ihren individuellen Plan mit einem Bauberater des Anbieters.
Merkmale
Energiestandard und Förderung
Energiestandard
Effizienzhaus 40
Effizienzhaus 55
Dach
Dachform
Satteldach
Dachneigung
25°
Kniestockhöhe
225 cm
Preisdetails für Haus Junghans
Schlüsselfertig ab
Preis auf Anfrage
Dieser Preis ist ein Beispiel für den Anfang, ein Berater kann Ihnen ein detailliertes Angebot erstellen, das Ihren Bedürfnissen entspricht.
Möchten Sie bei Ihrem Projekt Geld sparen?
Durch einen Angebotsvergleich mit Fertighaus.de können Sie bis zu 20 % Ihrer Baukosten sparen.
Haus Junghans - Hilfreiche Fragen & Antworten
Da Projektbau Mutter jedes Massivhaus individuell plant, wird der finale Preis auf Anfrage ermittelt. In der schlüsselfertigen Ausführung können Sie bei dieser Wohnfläche meist mit Kosten im gehobenen Segment rechnen. Gerne können Sie über uns ein detailliertes Angebot anfordern, das Ihre persönlichen Ausstattungswünsche und die aktuelle Marktlage berücksichtigt.
Dieses Modell interpretiert den klassischen Satteldach-Stil modern. Besonders auffällig sind die Fassade in hellen Erdtönen mit Holzverkleidung sowie die anthrazitfarbenen Fenster. Ein Highlight ist der integrierte Wäscheschacht, der Schmutzwäsche direkt vom Bad in den Keller befördert. Die Kombination aus Funktionalität und zeitlosem Design bietet einer vierköpfigen Familie ein stilvolles Zuhause.
Bei einer Grundfläche von etwa 100 m² und der integrierten Garage empfehlen wir ein Grundstück von mindestens 500 m². Darin sind 50 m² für Stellplätze und eine großzügige Gartenfläche von rund 350 m² enthalten. So bleibt genügend Raum für die Terrasse und die vorgeschriebenen Grenzabstände, damit Sie Ihre Privatsphäre im Freien genießen können.
Das Haus Junghans wird in der bewährten Massivbauweise Stein auf Stein erstellt. Projektbau Mutter setzt dabei auf hohe Qualitätsstandards und regionale Fachkompetenz. Da das Unternehmen Mitglied der BAUMEISTER-HAUS-Kooperation ist, profitieren Sie von erstklassigen Materialien. Zudem wird das Gebäude standardmäßig als energieeffizientes Effizienzhaus 40 geplant, was Ihre zukünftigen Energiekosten nachhaltig senkt.
Über den Anbieter Projektbau Mutter
Zum Anbieterprofil
Bewertungen
0
(0)

Bewertungen
0
0 BewertungenKeine
Projektbau Mutter in Zahlen
Gründungsjahr
1978
Häuser im Angebot
5
Häuser pro Jahr
25
Häuser gesamt
1000
Mitarbeiter
8
Leistungsspektrum
Preisgarantie
Bauzeit Garantie
Individuelle Planung
Blower Door Test
Persönliche Beratung für Ihre individuellen Wünsche
Finden Sie jetzt Ihren Ansprechpartner
Projektbau Mutter
Auszeichnungen, Zertifikate & Mitgliedschaften



Ähnliche Häuser Für Haus Junghans