
















SmartSpace Doppelhäuser von SCHWABENHAUS
Ab 308.171 €
Bewertungen von SCHWABENHAUS
4,0
(274)
Wohnfläche
134 m²
Ausbaustufe
Schlüsselfertig
Bauweise
Fertighaus
Etagen
2,5
Energiestandard
Effizienzhaus 40
Dachform
Satteldach
Hausart
Einfamilienhaus
Beschreibung
SmartSpace Doppelhäuser – clever geplant, individuell gestaltet
Mehr Raum. Mehr Flexibilität. Mehr Zuhause.
Mit SmartSpace Doppelhäusern präsentiert Schwabenhaus ein Hausprogramm, das modernes Wohnen auf kompakten Grundstücken neu definiert. Zehn individuell planbare Entwürfe mit Wohnflächen zwischen ca. 111 und 142 Quadratmetern verbinden durchdachte Grundrisse mit zeitgemäßer Architektur – für alle, die Wert auf Qualität, effizientes Bauen und intelligente Raumkonzepte legen.
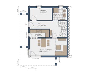
Das Erdgeschoss besticht durch einen offenen Wohn- und Essbereich mit direktem Küchenanschluss, Gäste-WC, Garderobe und Technikraum – ideal für ein harmonisches Miteinander. Im Obergeschoss bieten Schlafzimmer, Badezimmer und flexibel nutzbare Räume viel Platz für Familie, Homeoffice oder Gäste.
SmartSpace Doppelhäuser stehen für clevere Lösungen und Wohlfühlkomfort – und natürlich für die bewährte Schwabenhaus-Qualität, auf die Sie sich verlassen können.
Für wen sind die SmartSpace Doppelhäuser gemacht?
SmartSpace Doppelhäuser sind perfekt für alle, die modernes, funktionales Wohnen mit privater Rückzugsmöglichkeit und Gartenfläche suchen. Für Paare, Familien oder Freunde, die gemeinsam bauen, ohne auf ihre eigene Freiheit verzichten zu wollen. Für Bauherren, die Wert auf flexible Planung, Energieeffizienz und ein gutes Preis-Leistungs-Verhältnis legen. Mit den vielfältigen Entwürfen und der modularen Planung wird aus dem cleveren Doppelhaus schnell Ihr ganz persönliches Zuhause.
Preis-Information: Preise beziehen sich auf das zugrundeliegende Basishaus SmartSpace-D-111 in der Ausbau-Stufe "Fast-Vollendet", Effizienzhaus-55, inkl. Bodenplatte, inkl. All-Inklusive-Leistungspaket, Bilder und Abbildungen können aufpreispflichtige Extras zeigen. Preislisten Stand 08/25
Sie haben Interesse?
Laden Sie sich jetzt Ihr kostenloses Exposé zu diesem Haus herunter:
Merkmale
Energiestandard und Förderung
Energiestandard
Effizienzhaus 40
Dach
Dachform
Satteldach
Preisdetailsfür SmartSpace Doppelhäuser
Schlüsselfertig ab
308.171 €
ab 927,72 €
Dieser Preis ist ein Beispiel für den Anfang, ein Berater kann Ihnen ein detailliertes Angebot erstellen, das Ihren Bedürfnissen entspricht.
Möchten Sie bei Ihrem Projekt Geld sparen?
Durch einen Angebotsvergleich mit Fertighaus.de können Sie bis zu 20 % Ihrer Baukosten sparen.
SmartSpace Doppelhäuser - Hilfreiche Fragen & Antworten
Das SmartSpace Doppelhaus von Schwabenhaus ist preislich im günstigen Segment angesiedelt. Bei einer schlüsselfertigen Ausführung liegt der Preis pro Quadratmeter bei rund 2.300 Euro. In diesem Preis ist bereits ein umfangreiches All-Inclusive-Leistungspaket sowie die Bodenplatte enthalten. Gerne können Sie über uns ein detailliertes Angebot für Ihr individuelles Bauprojekt anfordern.
Das Haus überzeugt durch sein klassisches Satteldach und eine moderne, klare Linienführung. Die Architektur ist speziell auf kompakte Grundstücke ausgelegt, ohne dabei an Wohnqualität einzubüßen. Große Fensterflächen im Erdgeschoss sorgen für eine helle, freundliche Atmosphäre im offenen Wohn- und Essbereich. Zudem ermöglicht die modulare Planung von Schwabenhaus eine hohe Flexibilität bei der Gestaltung.
Für eine Haushälfte mit ca. 134 m² Wohnfläche empfehlen wir eine Grundstücksgröße von mindestens 350 m². Diese Kalkulation berücksichtigt neben der geschätzten Grundfläche des Hauses auch rund 50 m² für Stellplätze sowie eine ausreichende Gartenfläche von etwa 230 m². So bleibt trotz der kompakten Bauweise genügend Raum für Ihre private Erholung im Freien.
Dieses Konzept richtet sich besonders an Paare, junge Familien oder Freunde, die gemeinsam bauen und Kosten teilen möchten. Die Häuser bieten ein hervorragendes Preis-Leistungs-Verhältnis und maximale Effizienz auf kleiner Fläche. Dank des hohen Energiestandards als Effizienzhaus 40 ist das Gebäude zudem ideal für alle, die Wert auf Nachhaltigkeit und niedrige laufende Energiekosten legen.
Über den Anbieter SCHWABENHAUS
Zum Anbieterprofil
Bewertungen
4,0
(274)

Bewertungen
4,0
274 BewertungenGut
SCHWABENHAUS in Zahlen
Gründungsjahr
1966
Häuser im Angebot
44
Häuser pro Jahr
450
Mitarbeiter
400
Bewertungen von SCHWABENHAUS
Danke an Hrn. Simon. Er ist kompetent und fre...
Danke an Hrn. Simon. Er ist kompetent und freundlich!
03 Apr. 2026Dimitri S.
alles Ok
Bis jetzt Material erhalten. Erste Kontakte
02 Apr. 2026Kurt Heinz H.
Besprechungstermin findet demnächst statt.
Besprechungstermin findet demnächst statt.
16 März 2026Kirsten L.
Leistungsspektrum
Finanzierungsberatung
Preisgarantie
Bauzeit Garantie
Individuelle Planung
Blower Door Test
Persönliche Beratung für Ihre individuellen Wünsche
Finden Sie jetzt Ihren Ansprechpartner
SCHWABENHAUS
Auszeichnungen, Zertifikate & Mitgliedschaften


















Ähnliche Häuser Für SmartSpace Doppelhäuser