





Solitaire-E-165 E7 von SCHWABENHAUS
Ab 469.839 €
Bewertungen von SCHWABENHAUS
4,0
(274)
Wohnfläche
164 m²
Zimmer
5
Ausbaustufe
Schlüsselfertig
Bauweise
Fertighaus
Etagen
2
Energiestandard
Effizienzhaus 55
Dachform
Walmdach
Hausart
Einfamilienhaus
Beschreibung
Angaben zum Preis: Ausbaustufe "Fast-Vollendet", Effizienzhaus 55, inkl. Bodenplatte, inkl. All-Inklusive-Leistungspaket. Preis bezieht sich auf Basishaus. Abbildungen und Grundrisse können Extras darstellen. Preislistenstand: 08/2023.
Merkmale
- Erker
- Gästezimmer
- Balkon
Sie haben Interesse?
Laden Sie sich jetzt Ihr kostenloses Exposé zu diesem Haus herunter:
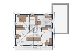
Grundrissfür Solitaire-E-165 E7
Außenmaße
Länge: 10,7 m
Breite: 9,12 m
Grundrisse
Der Grundriss entspricht nicht Ihren Vorstellungen?
Passen Sie den Grundriss an Ihre persönlichen Bedürfnisse an und besprechen Sie Ihren individuellen Plan mit einem Bauberater des Anbieters.
Merkmale
Energiestandard und Förderung
Energiestandard
Effizienzhaus 40
Effizienzhaus 40 Plus
Effizienzhaus 55
Dach
Dachform
Walmdach
Dachneigung
22°
Preisdetails für Solitaire-E-165 E7
Schlüsselfertig ab
469.839 €
Bausatzhaus ab286.580 €
Ausbauhaus ab400.723 €
ab 1.414,41 €
Dieser Preis ist ein Beispiel für den Anfang, ein Berater kann Ihnen ein detailliertes Angebot erstellen, das Ihren Bedürfnissen entspricht.
Möchten Sie bei Ihrem Projekt Geld sparen?
Durch einen Angebotsvergleich mit Fertighaus.de können Sie bis zu 20 % Ihrer Baukosten sparen.
Solitaire-E-165 E7 - Hilfreiche Fragen & Antworten
Bei einer schlüsselfertigen Ausführung liegt der Quadratmeterpreis für diese Stadtvilla bei rund 2.900 Euro. Damit ordnet sich das Haus im mittelpreisigen Segment ein. In diesem Preis sind bereits Leistungen wie die Bodenplatte und ein All-Inklusive-Paket enthalten. Über uns können Sie ein detailliertes Angebot anfordern, um die exakten Kosten für Ihr Bauprojekt zu erfahren.
Dieser Entwurf besticht durch seinen klassischen Stadtvilla-Stil mit einem eleganten Walmdach. Die Dachneigung von 22 Grad verleiht dem Haus eine zeitlose Ästhetik. Durch die zwei Vollgeschosse bietet es viel Stellfläche ohne störende Dachschrägen. Wir schätzen besonders die Flexibilität, da das Design sowohl klassische als auch sehr individuelle Akzente erlaubt, um Ihren persönlichen Geschmack perfekt zu treffen.
Für das Solitaire-E-165 empfehlen wir eine Grundstücksgröße von mindestens 450 m². Bei einer Grundfläche von knapp 98 m² bleibt so genügend Raum für einen Garten und Stellplätze. Wir haben dabei rund 50 m² für Parkmöglichkeiten und etwa 295 m² für die Gartenfläche einkalkuliert. So stellen Sie sicher, dass alle notwendigen Grenzabstände und Freiflächen harmonisch eingehalten werden.
Das Haus wird in nachhaltiger Fertighaus-Bauweise errichtet, was kurze Bauzeiten ermöglicht. Besonders hervorzuheben sind die hohen Energiestandards: Sie haben die Wahl zwischen den Optionen Effizienzhaus 40, 40 Plus oder 55. Dies sorgt für eine exzellente Energiebilanz und langfristige Kosteneinsparungen. Wir begleiten Sie gerne dabei, die passende technische Ausstattung für Ihre individuellen Bedürfnisse und die gewünschte Nachhaltigkeit auszuwählen.
Über den Anbieter SCHWABENHAUS
Zum Anbieterprofil
Bewertungen
4,0
(274)

Bewertungen
4,0
274 BewertungenGut
SCHWABENHAUS in Zahlen
Gründungsjahr
1966
Häuser im Angebot
44
Häuser pro Jahr
450
Mitarbeiter
400
Bewertungen von SCHWABENHAUS
Danke an Hrn. Simon. Er ist kompetent und fre...
Danke an Hrn. Simon. Er ist kompetent und freundlich!
03 Apr. 2026Dimitri S.
alles Ok
Bis jetzt Material erhalten. Erste Kontakte
02 Apr. 2026Kurt Heinz H.
Besprechungstermin findet demnächst statt.
Besprechungstermin findet demnächst statt.
16 März 2026Kirsten L.
Leistungsspektrum
Finanzierungsberatung
Preisgarantie
Bauzeit Garantie
Individuelle Planung
Blower Door Test
Persönliche Beratung für Ihre individuellen Wünsche
Finden Sie jetzt Ihren Ansprechpartner
SCHWABENHAUS
Auszeichnungen, Zertifikate & Mitgliedschaften


















Ähnliche Häuser Für Solitaire-E-165 E7