










Mehrfamilienhaus Münch von Bau-Fritz - Mehrfamilienhäuser
Ab 1.015.000 €
Bewertungen von Bau-Fritz - Mehrfamilienhäuser
0
(0)
Wohnfläche
263 m²
Ausbaustufe
Schlüsselfertig
Bauweise
Fertighaus
Etagen
2
Energiestandard
Effizienzhaus 40
Dachform
Pultdach
Hausart
Mehrfamilienhaus
Beschreibung
Modernes Outfit, offener Treppenaufgang mit Holzverkleidung und 37 cm starke Außenwände – so präsentiert sich das Mehrfamilienhaus Münch in Coburg. Mit ca. 263 Quadratmeter Wohn-/Nutzfläche beherbergt das in Natursilber lasierte Domizil vier Wohnungen. Zwei mit je zwei Zimmern und die anderen beiden mit jeweils drei Zimmern. Bei der streng kubischen Bauweise wurde die Architektur auf das Wesentliche beschränkt. Zukunftsweisend: Der rechteckige Baukörper mit seinem flachen Pultdach wurde mit der Option gebaut, in der Zukunft eine weitere Etage aufzustocken.
Architektur und Besonderheiten
- Mehrfamilienhaus mit 4 Wohnungen à zwei bzw. drei Zimmer
- 2 - 4 Bauherren
- Überdachter, offener Treppenaufgang
- Kubische Bauweise
- Bodentiefe Glastüren als Zugang zur Terrasse oder Balkon
Baufritz-Inklusivleistungen
- Individuelle Architektur – Jedes Baufritz-Haus ist ein Unikat. Wir fertigen Ihr Haus in unserer Manufaktur. Maßgefertigt für Sie und abgestimmt auf Ihre Wünsche.
- Holz-Alu-Fenster mit hochwertigem Schreinereinbau ohne PU-Bauschäum
- Ganzheitliches Gesundheitskonzept mit ausgezeichnetem Raumklima – Jedes Baufritz-Haus wird mit dem strengsten Siegel für Wohngesundheit zertifiziert: VDB-Zert
- Effektive X-und-E-Elektrosmog-Schutztechnik und abgeschirmte Elektroinstallation
- Hochwertiger und baubiologisch einwandfreier Innenausbau mit selbst entwickelten Baufritz-Innovationen (wie z.B. Innenraumfarben, Parkettkleber etc.) für ein einmalig gesundes Wohnklima
- Hochwertige Ausstattung bereits im Standard: Fußbodenheizung, Echtholzparkett, Vollholztüren, renommierte und namhafte Markenhersteller: Sanitär, Fliesen etc.
- Wärmedämmung „HOIZ": Unser biologischer Naturdämmstoff aus Holzspänen – eigens entwickelt, von natureplus geprüft und IBN-zertifiziert
- Persönliche Ansprechpartner von Anfang bis Einzug
- Ein erfahrener Innenraumplaner, der Sie während der Bemusterung begleitet und Ihnen z.B. bei Fragen zur Badgestaltung oder Lichtplanung mit Rat und Tat zur Seite steht
- Produktion und Montage durch ausgebildete Fachkräfte, die für faire Löhne und unter besten Bedingungen arbeiten
- Festpreisgarantie, Terminsicherheit und transparenter Prozess
Preis schlüsselfertig ab OK Keller/Bodenplatte, ohne Möbel und Küche im Liefergebiet Deutschland, basierend auf Preiskalkulation
Stand 02/2026, inkl. 19 % MwSt.
Sie haben Interesse?
Laden Sie sich jetzt Ihr kostenloses Exposé zu diesem Haus herunter:
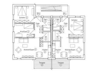
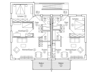
Grundrissfür Mehrfamilienhaus Münch
Außenmaße
Länge: 15,66 m
Breite: 11,91 m
Grundrisse
Der Grundriss entspricht nicht Ihren Vorstellungen?
Passen Sie den Grundriss an Ihre persönlichen Bedürfnisse an und besprechen Sie Ihren individuellen Plan mit einem Bauberater des Anbieters.
Merkmale
Energiestandard und Förderung
Energiestandard
Effizienzhaus 40
Dach
Dachform
Pultdach
Dachneigung
6°
Preisdetails für Mehrfamilienhaus Münch
Schlüsselfertig ab
1.015.000 €
ab 3.055,57 €
Dieser Preis ist ein Beispiel für den Anfang, ein Berater kann Ihnen ein detailliertes Angebot erstellen, das Ihren Bedürfnissen entspricht.
Möchten Sie bei Ihrem Projekt Geld sparen?
Durch einen Angebotsvergleich mit Fertighaus.de können Sie bis zu 20 % Ihrer Baukosten sparen.
Mehrfamilienhaus Münch - Hilfreiche Fragen & Antworten
Das Haus liegt mit einem Quadratmeterpreis von rund 3.900 Euro im gehobenen Segment. In diesem Preis sind bereits exzellente ökologische Standards wie die biologische Naturdämmung und eine Festpreisgarantie enthalten. Da es sich um vier Wohneinheiten handelt, bietet das Objekt eine attraktive Basis für Investoren. Über uns können Sie gerne ein individuelles Angebot anfordern.
Das flache Pultdach unterstreicht die moderne, kubische Optik des Gebäudes. Eine Besonderheit ist die zukunftsorientierte Planung: Die Konstruktion erlaubt es, später eine weitere Etage aufzustocken. So bleiben Sie flexibel, falls Ihr Raumbedarf wächst. Die Kombination aus Natursilber-Lasur und bodentiefen Glastüren verleiht dem Mehrfamilienhaus zudem ein zeitloses, elegantes Erscheinungsbild.
Wir empfehlen für dieses Bauvorhaben ein Grundstück von mindestens 700 m². Dieser Wert berücksichtigt die Grundfläche des Hauses von etwa 187 m², notwendige Pkw-Stellplätze sowie eine angemessene Gartenfläche. Da das Haus vier Wohneinheiten auf zwei Etagen bündelt, nutzen Sie die vorhandene Fläche besonders effizient aus. So schaffen Sie viel Wohnraum auf vergleichsweise kompakter Grundfläche.
Das Mehrfamilienhaus wird nach strengsten baubiologischen Kriterien gefertigt. Zum Einsatz kommen schadstoffgeprüfte Materialien und die spezielle Elektrosmog-Schutztechnik. Jede Wohneinheit erhält das VDB-Zertifikat für Wohngesundheit. Wir legen großen Wert darauf, dass Mieter und Eigentümer in einem schadstofffreien Raumklima leben. Dies sichert langfristig den Werterhalt der Immobilie und das Wohlbefinden aller Bewohner.
Über den Anbieter Bau-Fritz - Mehrfamilienhäuser
Zum Anbieterprofil
Bewertungen
0
(0)

Bewertungen
0
0 BewertungenKeine
Bau-Fritz - Mehrfamilienhäuser in Zahlen
Gründungsjahr
1896
Häuser im Angebot
13
Mitarbeiter
580
Leistungsspektrum
Finanzierungsberatung
Preisgarantie
Bauzeit Garantie
Individuelle Planung
Blower Door Test
Persönliche Beratung für Ihre individuellen Wünsche
Finden Sie jetzt Ihren Ansprechpartner
Bau-Fritz - Mehrfamilienhäuser
Weitere Häuser
Beliebte Häuser von Bau-Fritz - Mehrfamilienhäuser
Ähnliche Häuser Für Mehrfamilienhaus Münch