













Mehrfamilienhaus Peters von Bau-Fritz - Mehrfamilienhäuser
Ab 2.730.000 €
Bewertungen von Bau-Fritz - Mehrfamilienhäuser
0
(0)
Wohnfläche
571 m²
Ausbaustufe
Schlüsselfertig
Bauweise
Fertighaus
Etagen
3
Energiestandard
Effizienzhaus 40
Dachform
Flachdach
Hausart
Mehrfamilienhaus
Beschreibung
Die Idee des Mehrgenerationenhauses hat im Projekt Peters, das in Frankfurt am Main steht, Gestalt angenommen und dabei dieses traditionelle Modell in eine ganz moderne Sprache übersetzt. Das Investoren- und Bauherren-Ehepaar lebt selbst im Penthouse, die Kinder sind ebenfalls mit eingezogen. Die besondere Struktur des Gebäudes bietet Gemeinschafts- und Privaträume gleichermaßen und garantiert durch ihre Wertigkeit ein zukunftssicheres Wohnen, sowohl bezogen auf den finanziellen Aspekt als auch den Komfort im Alter. Diese Realisierung ganz individueller Wünsche findet auch hinsichtlich des besonderen Sicherheitsbedürfnisses Ausdruck, das sich durch die städtische Lage des Objektes ergibt. Um maximalen Schutz zu garantieren, gelangt man über eine Art Aufzug in die Tiefgarage des Objekts: Man fährt mit dem Auto auf eine absenkbare Fläche, die den Zugang zur Tiefgarage ermöglicht, von der aus man abends in das Haus und die Wohnungen gelangen kann, ohne zur Haustüre laufen zu müssen. Investment bedeutet immer auch, individuelle Bedürfnisse bestmöglich umgesetzt zu wissen – das Projekt Peters ist hierfür ein Paradebeispiel.
Architektur und Besonderheiten
- Mehrfamilienhaus mit zwei separaten Häusern und insgesamt drei Wohnungen
- Separater Zugang in alle Wohnungen per Aufzug aus der Tiefgarage
- Komfort-Tiefgarage mmit absenkbarem PKW-Aufzug für maximale Sicherheit
Baufritz-Inklusivleistungen
- Individuelle Architektur – Jedes Baufritz-Haus ist ein Unikat. Wir fertigen Ihr Haus in unserer Manufaktur. Maßgefertigt für Sie und abgestimmt auf Ihre Wünsche.
- Holz-Alu-Fenster mit hochwertigem Schreinereinbau ohne PU-Bauschäum
- Ganzheitliches Gesundheitskonzept mit ausgezeichnetem Raumklima – Jedes Baufritz-Haus wird mit dem strengsten Siegel für Wohngesundheit zertifiziert: VDB-Zert
- Effektive X-und-E-Elektrosmog-Schutztechnik und abgeschirmte Elektroinstallation
- Hochwertiger und baubiologisch einwandfreier Innenausbau mit selbst entwickelten Baufritz-Innovationen (wie z.B. Innenraumfarben, Parkettkleber etc.) für ein einmalig gesundes Wohnklima
- Hochwertige Ausstattung bereits im Standard: Fußbodenheizung, Echtholzparkett, Vollholztüren, renommierte und namhafte Markenhersteller: Sanitär, Fliesen etc.
- Wärmedämmung „HOIZ": Unser biologischer Naturdämmstoff aus Holzspänen – eigens entwickelt, von natureplus geprüft und IBN-zertifiziert
- Persönliche Ansprechpartner von Anfang bis Einzug
- Ein erfahrener Innenraumplaner, der Sie während der Bemusterung begleitet und Ihnen z.B. bei Fragen zur Badgestaltung oder Lichtplanung mit Rat und Tat zur Seite steht
- Produktion und Montage durch ausgebildete Fachkräfte, die für faire Löhne und unter besten Bedingungen arbeiten
- Festpreisgarantie, Terminsicherheit und transparenter Prozess
Preis schlüsselfertig ab OK Keller/Bodenplatte, ohne Möbel und Küche im Liefergebiet Deutschland, basierend auf Preiskalkulation
Stand 02/2026, inkl. 19 % MwSt.
Sie haben Interesse?
Laden Sie sich jetzt Ihr kostenloses Exposé zu diesem Haus herunter:
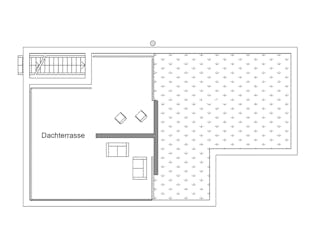
Grundrissfür Mehrfamilienhaus Peters
Außenmaße
Länge: 19,44 m
Breite: 9,2 m
Grundrisse
Der Grundriss entspricht nicht Ihren Vorstellungen?
Passen Sie den Grundriss an Ihre persönlichen Bedürfnisse an und besprechen Sie Ihren individuellen Plan mit einem Bauberater des Anbieters.
Merkmale
Energiestandard und Förderung
Energiestandard
Effizienzhaus 40
Dach
Dachform
Flachdach
Preisdetails für Mehrfamilienhaus Peters
Schlüsselfertig ab
2.730.000 €
ab 8.218,44 €
Dieser Preis ist ein Beispiel für den Anfang, ein Berater kann Ihnen ein detailliertes Angebot erstellen, das Ihren Bedürfnissen entspricht.
Möchten Sie bei Ihrem Projekt Geld sparen?
Durch einen Angebotsvergleich mit Fertighaus.de können Sie bis zu 20 % Ihrer Baukosten sparen.
Mehrfamilienhaus Peters - Hilfreiche Fragen & Antworten
Bei einer schlüsselfertigen Ausführung liegt der Preis für dieses moderne Mehrfamilienhaus bei rund 4.800 Euro pro Quadratmeter. Berücksichtigt man die Aufteilung in drei Wohneinheiten, ordnet sich das Objekt nach unseren Kriterien im sehr günstigen Segment ein. Wir lassen Ihnen gerne detaillierte Informationen zukommen, damit Sie die Kosten für Ihr individuelles Projekt präzise planen können.
Das Gebäude besticht durch seine moderne Cubushaus-Architektur mit Flachdach. Ein echtes Highlight ist die innovative Tiefgaragenlösung mit einem absenkbaren PKW-Aufzug, der maximale Sicherheit im städtischen Raum garantiert. Zudem ermöglicht ein interner Aufzug den barrierefreien Zugang direkt aus der Garage in alle drei Wohneinheiten. Diese hochwertige Ausstattung verbindet exklusiven Komfort mit modernem Design für anspruchsvolle Generationenprojekte.
Mit Außenmaßen von etwa 19,4 mal 9,2 Metern belegt das Haus eine Grundfläche von rund 179 m². Da es sich um ein Mehrfamilienhaus mit drei Einheiten handelt, variiert der Grundstücksbedarf je nach lokaler Bebauungsplanung. Wir empfehlen eine individuelle Beratung, um ausreichend Platz für die Zufahrt zum innovativen PKW-Aufzug der Tiefgarage sowie private Freiflächen für alle Bewohner sicherzustellen.
Bau-Fritz setzt auf ein ganzheitliches Gesundheitskonzept. Das Haus wird in ökologischer Fertigbauweise mit dem zertifizierten Naturdämmstoff "HOIZ" errichtet. Eine spezielle Schutztechnik schirmt Elektrosmog effektiv ab, während schadstofffreie Materialien für ein exzellentes Raumklima sorgen. Wir schätzen diesen Fokus auf Wohngesundheit sehr, da er den Bewohnern ein sicheres Umfeld garantiert und gleichzeitig den langfristigen Wert Ihrer Investition steigert.
Über den Anbieter Bau-Fritz - Mehrfamilienhäuser
Zum Anbieterprofil
Bewertungen
0
(0)

Bewertungen
0
0 BewertungenKeine
Bau-Fritz - Mehrfamilienhäuser in Zahlen
Gründungsjahr
1896
Häuser im Angebot
13
Mitarbeiter
580
Leistungsspektrum
Finanzierungsberatung
Preisgarantie
Bauzeit Garantie
Individuelle Planung
Blower Door Test
Persönliche Beratung für Ihre individuellen Wünsche
Finden Sie jetzt Ihren Ansprechpartner
Bau-Fritz - Mehrfamilienhäuser
Weitere Häuser
Beliebte Häuser von Bau-Fritz - Mehrfamilienhäuser
Ähnliche Häuser Für Mehrfamilienhaus Peters