



Medi 143 von BauService Timm
Preis auf Anfrage
Bewertungen von BauService Timm
0
(0)
Wohnfläche
143 m²
Zimmer
5
Ausbaustufe
Schlüsselfertig
Bauweise
Massivhaus
Etagen
1,5
Energiestandard
Effizienzhaus 55
Dachform
Pultdach
Hausart
Einfamilienhaus
Beschreibung
Sie haben Interesse?
Laden Sie sich jetzt Ihr kostenloses Exposé zu diesem Haus herunter:
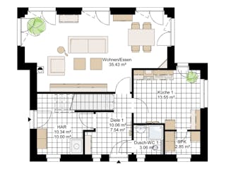
Grundrissfür Medi 143
Außenmaße
Länge: 11,49 m
Breite: 9,36 m
Grundrisse
Der Grundriss entspricht nicht Ihren Vorstellungen?
Passen Sie den Grundriss an Ihre persönlichen Bedürfnisse an und besprechen Sie Ihren individuellen Plan mit einem Bauberater des Anbieters.
Merkmale
Energiestandard und Förderung
Energiestandard
Effizienzhaus 40
Effizienzhaus 40 EE
Effizienzhaus 40 NH
Effizienzhaus 40 Plus
Effizienzhaus 55
Effizienzhaus 55 EE
Effizienzhaus 55 NH
Plusenergiehaus
Dach
Dachform
Pultdach
Dachneigung
16°
Preisdetails für Medi 143
Schlüsselfertig ab
Preis auf Anfrage
Dieser Preis ist ein Beispiel für den Anfang, ein Berater kann Ihnen ein detailliertes Angebot erstellen, das Ihren Bedürfnissen entspricht.
Möchten Sie bei Ihrem Projekt Geld sparen?
Durch einen Angebotsvergleich mit Fertighaus.de können Sie bis zu 20 % Ihrer Baukosten sparen.
Medi 143 - Hilfreiche Fragen & Antworten
Da die Preise für das Medi 143 auf Anfrage bereitgestellt werden, empfehlen wir eine individuelle Kalkulation. BauService Timm bietet Ihnen eine Festpreisgarantie, was für hohe Planungssicherheit sorgt. Die Kosten hängen stark von der gewählten Ausbaustufe und dem Energiestandard ab. Gerne können Sie detaillierte Preisinformationen und ein maßgeschneidertes Angebot direkt über uns anfordern.
Das Medi 143 zeichnet sich durch ein markantes Pultdach mit einer Neigung von 16 Grad aus. Diese Dachform verleiht dem Massivhaus eine sehr moderne Optik und ermöglicht lichtdurchflutete Räume im Obergeschoss. Der klassisch-individuelle Stil erlaubt es Ihnen, die Fassade nach Ihren Wünschen zu gestalten. So verbinden wir zeitgemäße Architektur mit der bewährten Langlebigkeit eines Stein-auf-Stein gebauten Hauses.
Auf einer Wohnfläche von etwa 143 m² bietet das Medi 143 mit fünf Zimmern viel Platz für Ihre Familie. Dank der 1,5 Geschosse wird die Grundfläche optimal ausgenutzt. Für dieses Haus mit den Maßen 11,49 mal 9,36 Meter empfehlen wir ein Grundstück von mindestens 500 m². So bleibt neben dem Gebäude und den Stellplätzen genügend Raum für Ihren persönlichen Garten.
BauService Timm realisiert seit 1998 Massivhäuser mit Fokus auf Qualität und Design. Das Unternehmen baut jährlich etwa 30 bis 40 Häuser und bringt somit viel Erfahrung in Ihr Projekt ein. Besonders vorteilhaft sind die inkludierte Bauzeitgarantie sowie die Möglichkeit zur individuellen Planung. Wir begleiten Sie gerne dabei, dieses bewährte Konzept für Ihr persönliches Bauvorhaben im gewünschten Energiestandard umzusetzen.
Über den Anbieter BauService Timm
Zum Anbieterprofil
Bewertungen
0
(0)

Bewertungen
0
0 BewertungenKeine
BauService Timm in Zahlen
Gründungsjahr
1998
Häuser im Angebot
6
Häuser pro Jahr
30-40
Mitarbeiter
30
Leistungsspektrum
Preisgarantie
Bauzeit Garantie
Individuelle Planung
Blower Door Test
Persönliche Beratung für Ihre individuellen Wünsche
Finden Sie jetzt Ihren Ansprechpartner
BauService Timm
Ähnliche Häuser Für Medi 143