



AVA von Haas Fertigbau
Ab 290.014 €
Bewertungen von Haas Fertigbau
4,0
(44)
Wohnfläche
163 m²
Zimmer
5
Ausbaustufe
Ausbauhaus
Bauweise
Fertighaus
Etagen
1,5
Energiestandard
Effizienzhaus 40 Plus
Dachform
Satteldach
Hausart
Einfamilienhaus
Beschreibung
Das Fertighaus der Marke Haas weist, getreu der Linie neue Wohnkultur und Form, eine minimalistische Gebäudearchitektur mit symmetrischen Linien auf. AVA stellt sich im Außen mit Klarheit und Einfachheit dar, die mit einer modernen Fassade Ausdruck findet. Verleben Sie unvergleichliche Momente mit Ihren Liebsten und lassen Sie Ihre Wohnideen in vielfältiger Weise in Ihr Haus AVA einfließen.
Angaben zum Preis: gelten für die Ausbaustufe “Ausbauhaus“ für die Basisvariante des Hauses (jeweilige Basisvariante einfügen) inkl. Bodenplatte (bei Grundriss mit Technikraum im EG) bzw. Keller (bei Grundriss ohne Technikraum im EG) für Bauort Deutschland; lt. Preisliste 10/2021; Die Bilder von Den Neuen Fünf Von Haas enthalten alle Sonderausstattungen, welche in diesem Preis nicht kalkuliert sind. Zum Ausbauhaus kommt ein Zugschlag von 5800 € dazu.
Voraussetzung für ein KfW-Effizienzhaus 40 Plus sind die Ausführung des Hauses auf Bodenplatte und Hausvariante gem. Haas Hauskatalog sowie passende Grundstückssituation.
Merkmale
- Gästezimmer
Sie haben Interesse?
Laden Sie sich jetzt Ihr kostenloses Exposé zu diesem Haus herunter:
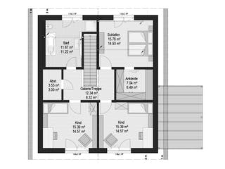
Grundrissfür AVA
Außenmaße
Länge: 10,9 m
Breite: 9,5 m
Grundrisse
Der Grundriss entspricht nicht Ihren Vorstellungen?
Passen Sie den Grundriss an Ihre persönlichen Bedürfnisse an und besprechen Sie Ihren individuellen Plan mit einem Bauberater des Anbieters.
Merkmale
Energiestandard und Förderung
Energiestandard
Effizienzhaus 40
Effizienzhaus 40 Plus
Plusenergiehaus
Dach
Dachform
Satteldach
Dachneigung
22°
Kniestockhöhe
175 cm
Preisdetails für AVA
Ausbauhaus ab
290.014 €
ab 873,06 €
Dieser Preis ist ein Beispiel für den Anfang, ein Berater kann Ihnen ein detailliertes Angebot erstellen, das Ihren Bedürfnissen entspricht.
Möchten Sie bei Ihrem Projekt Geld sparen?
Durch einen Angebotsvergleich mit Fertighaus.de können Sie bis zu 20 % Ihrer Baukosten sparen.
AVA - Hilfreiche Fragen & Antworten
Das Haus AVA von Haas wird in der Ausbaustufe für rund 1.800 Euro pro Quadratmeter angeboten. Damit ordnet es sich im günstigen Preissegment für Ausbauhäuser ein. Dieser Basispreis umfasst bereits die Bodenplatte. Wir unterstützen Sie gerne dabei, über uns ein individuelles Angebot anzufordern, das genau auf Ihre Wünsche und die spezifische Grundstückssituation an Ihrem Bauort zugeschnitten ist.
Die Architektur des AVA besticht durch minimalistische Klarheit und symmetrische Linienführung. Ein Highlight ist das klassische Satteldach mit einer Neigung von 22 Grad. Dank des hohen Kniestocks von 175 Zentimetern gewinnen Sie im Dachgeschoss wertvollen Stellplatz und Bewegungsfreiheit. Das Design verbindet zeitlose Ästhetik mit einem modernen Wohngefühl, das wir für anspruchsvolle Bauherren als besonders gelungen empfinden.
Für dieses Einfamilienhaus mit einer Grundfläche von etwa 104 Quadratmetern empfehlen wir ein Grundstück ab circa 450 Quadratmetern. Wir kalkulieren dabei 50 Quadratmeter für Stellplätze sowie eine Gartenfläche von etwa 300 Quadratmetern ein. So stellen Sie sicher, dass Grenzabstände eingehalten werden und Ihnen genügend privater Freiraum für Erholung im eigenen Garten zur Verfügung steht.
Mit fünf Zimmern auf 163 Quadratmetern ist das AVA ideal für Familien konzipiert. Dank der Holzfertigbauweise und dem Standard als Effizienzhaus 40 wohnen Sie besonders nachhaltig. Haas setzt auf ökologische Rohstoffe, was nicht nur die Umwelt schont, sondern auch ein gesundes Raumklima schafft. So verbinden wir modernes Wohnen mit einem verantwortungsbewussten Umgang mit unseren natürlichen Ressourcen.
Über den Anbieter Haas Fertigbau
Zum Anbieterprofil
Bewertungen
4,0
(44)

Bewertungen
4,0
44 BewertungenGut
Haas Fertigbau in Zahlen
Gründungsjahr
1972
Häuser im Angebot
30
Häuser pro Jahr
700
Häuser gesamt
50.000
Mitarbeiter
> 1200
Bewertungen von Haas Fertigbau
Sehr freundlicher Berater Anton Mundigl
Sehr freundlicher und kompetenter Berater Hr. Mundigl. Er war zum ersten Treffen im Musterhaus in Poing sehr gut vorbereitet und hatte sogar schon ein Angebot parat (aufgrund meiner Angaben im Konfigurator)! Haas war bei uns in der engeren Wahl, aber irgendwann muss man sich (allein schon aus zeitlichen Gründen) für oder gegen eine Firma entscheiden. Daher fällt Haas jetzt bei uns raus. Wir hätten aber gerne mit Herrn Mundigl als Berater weitergemacht, aber andere Fertighausanbieter sagen uns einfach mehr zu.
21 März 2026Hubert S.
Information
Ich befinde mich in der Vorentscheidung was in Zukunft mit dem grundstück werden soll. Informationsmaterial ausreichend und prompt. Besten Dank
20 März 2026Eva T.
gute Beratung
gute Beratung
09 März 2026Florian M.
Leistungsspektrum
Finanzierungsberatung
Preisgarantie
Bauzeit Garantie
Individuelle Planung
Blower Door Test
Persönliche Beratung für Ihre individuellen Wünsche
Finden Sie jetzt Ihren Ansprechpartner
Haas Fertigbau
Auszeichnungen, Zertifikate & Mitgliedschaften
























Ähnliche Häuser Für AVA