



DOPPELHAUS VISEO von Kern-Haus Chemnitz
Ab 354.900 €
Bewertungen von Kern-Haus Chemnitz
5,0
(1)
Wohnfläche
129 m²
Zimmer
4
Ausbaustufe
Schlüsselfertig
Bauweise
Massivhaus
Energiestandard
Effizienzhaus 55
Dachform
Satteldach
Hausart
Einfamilienhaus
Beschreibung
Das Doppelhaus Viseo gleicht einem perfekt durchdachten Raumwunder.
Auf zwei Geschossen erstreckt sich das Haus auf 129 m². Im Erdgeschoss befinden sich ein Duschbad, der Hauswirtschaftsraum und der großzügige Wohn-/ Essbereich mit angrenzender Küche, der durch bodentiefe Fensterelemente wunderbar erhellt wird. Über die gut angeordnete Diele lassen sich alle Räume im Erdgeschoss perfekt erreichen.
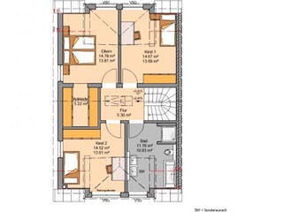
Über die u-förmige Treppe erreicht man das 63 m² große Dachgeschoss. Hier bekommt jedes Familienmitglied seinen eigenen Rückzugsort. Zwei Kinderzimmer, ein geräumiges Elternschlafzimmer mit angrenzender Ankleide und ein großes Familienbad bilden das geräumige Dachgeschoss.
Dieses Haus wird nach Ihren individuellen Wünschen geplant und ausgestattet!
Angaben zum Ausbauhauspreis: Die Ab-Preise, die aktuell hinterlegt sind, beziehen sich auf schlüsselfertige Häuser mit dem Energiestandard 55. Die Ausbauhäuser haben aber den Energiestandard 40.
Sie haben Interesse?
Laden Sie sich jetzt Ihr kostenloses Exposé zu diesem Haus herunter:
Grundrissfür DOPPELHAUS VISEO
Grundrisse
Der Grundriss entspricht nicht Ihren Vorstellungen?
Passen Sie den Grundriss an Ihre persönlichen Bedürfnisse an und besprechen Sie Ihren individuellen Plan mit einem Bauberater des Anbieters.
Merkmale
Energiestandard und Förderung
Energiestandard
Effizienzhaus 55
Dach
Dachform
Satteldach
Preisdetails für DOPPELHAUS VISEO
Schlüsselfertig ab
354.900 €
Ausbauhaus ab316.900 €
ab 1.068,40 €
Dieser Preis ist ein Beispiel für den Anfang, ein Berater kann Ihnen ein detailliertes Angebot erstellen, das Ihren Bedürfnissen entspricht.
Möchten Sie bei Ihrem Projekt Geld sparen?
Durch einen Angebotsvergleich mit Fertighaus.de können Sie bis zu 20 % Ihrer Baukosten sparen.
DOPPELHAUS VISEO - Hilfreiche Fragen & Antworten
Bei der schlüsselfertigen Variante des Doppelhauses Viseo können Sie mit einem Quadratmeterpreis von etwa 2.800 Euro rechnen. Damit ordnet sich dieses moderne Massivhaus preislich im mittleren Segment ein. Bitte beachten Sie, dass individuelle Sonderwünsche die Kosten beeinflussen können. Gerne können Sie über uns ein detailliertes Angebot anfordern, um Planungssicherheit zu erhalten.
Für dieses Doppelhaus empfehlen wir eine Grundstücksgröße von mindestens 350 m². Da die Grundfläche im Erdgeschoss kompakt gehalten ist, bleibt auf einem solchen Areal genügend Platz für einen schönen Garten sowie die notwendigen Pkw-Stellplätze. So genießen Sie trotz der Doppelhaus-Bauweise ausreichend Privatsphäre und Freiraum für Ihre gesamte Familie im Außenbereich.
Die Aufteilung ist äußerst effizient geplant. Im Erdgeschoss finden Sie einen großzügigen, lichtdurchfluteten Wohn- und Essbereich mit offener Küche sowie ein praktisches Gäste-Duschbad. Das Obergeschoss bietet drei Rückzugsorte: zwei Kinderzimmer und ein Elternschlafzimmer mit separater Ankleide. Ein großes Familienbad rundet das Raumangebot ab und macht das Haus ideal für vierköpfige Familien.
Das Haus wird in massiver Bauweise errichtet, was für hervorragende Stabilität und Langlebigkeit sorgt. Die Qualität wird während der Bauphase in fünf Phasen vom TÜV geprüft. Zudem profitieren Sie von einer Festpreisbindung von bis zu 24 Monaten. Wir schätzen an diesem Anbieter besonders die Kombination aus massiver Wertarbeit und der Möglichkeit, den Grundriss individuell anzupassen.
Über den Anbieter Kern-Haus Chemnitz
Zum Anbieterprofil
Bewertungen
5,0
(1)

Bewertungen
5,0
1 BewertungHervorragend
Kern-Haus Chemnitz in Zahlen
Gründungsjahr
1995
Häuser im Angebot
52
Häuser pro Jahr
10-20
Mitarbeiter
1-10
Leistungsspektrum
Finanzierungsberatung
Preisgarantie
Bauzeit Garantie
Individuelle Planung
Blower Door Test
Persönliche Beratung für Ihre individuellen Wünsche
Finden Sie jetzt Ihren Ansprechpartner
Kern-Haus Chemnitz
Ähnliche Häuser Für DOPPELHAUS VISEO