




Stadtvilla Lucca 4 von KLINKER HAUS
Ab 364.900 €
Bewertungen von KLINKER HAUS
4,8
(4)
Wohnfläche
156 m²
Zimmer
5
Ausbaustufe
Schlüsselfertig
Bauweise
Massivhaus
Etagen
2
Energiestandard
Effizienzhaus 55
Dachform
Walmdach
Hausart
Einfamilienhaus
Beschreibung
Stadtvilla Lucca 4 – Zeitlose Eleganz trifft auf moderne Funktionalität
Die Stadtvilla Lucca 4 verbindet eine elegante Architektur mit einer großzügigen Raumaufteilung und bietet viel Platz für das Leben und Wohlfühlen. Das Konzept dieser Villa richtet sich an Familien, die Wert auf klare Strukturen, modernes Design und gleichzeitig praktische Funktionen legen.
Wohnfläche und Raumaufteilung
Der geräumige Wohn- und Essbereich im Erdgeschoss ist das Herzstück der Stadtvilla Lucca 4. Mit einer Fläche von 21,8 m² bietet dieser Raum genügend Platz für gemütliche Familienabende oder das gesellige Zusammensein mit Freunden. Die angrenzende Küche (10,0 m²) ist funktional und modern gestaltet und ermöglicht sowohl gesellige Kochabende als auch alltägliche kulinarische Freuden.
Ein besonderes Highlight des Erdgeschosses ist das Gästezimmer mit 9,6 m², das ebenfalls als Homeoffice oder Rückzugsort genutzt werden kann. Ergänzt wird das Erdgeschoss durch den Hauswirtschaftsraum (7,9 m²) sowie das Gäste-WC mit Dusche (3,9 m²), die praktische und notwendige Funktionen bieten.
Über die zentrale Treppe gelangen Sie in das Obergeschoss, wo sich die privaten Rückzugsorte befinden. Hier finden sich drei lichtdurchflutete Schlafzimmer: Das Elternschlafzimmer misst 11,8 m² und bietet eine ruhige und erholsame Atmosphäre. Zwei weitere Zimmer (15,2 m² und 13,1 m²) sind ideal als Kinder- oder Arbeitszimmer.
Das Obergeschoss wird durch das moderne Badezimmer abgerundet, das mit 9,9 m² großzügig bemessen ist und sowohl Badewanne als auch Dusche bietet – perfekt für entspannende Momente im Alltag.
Ein Zuhause für die Familie
Die Stadtvilla Lucca 4 überzeugt durch ihre harmonische und offene Gestaltung, die optimalen Komfort und Funktionalität bietet. Große Fensterflächen lassen viel Tageslicht in die Räume und schaffen eine angenehme Wohnatmosphäre. Die klaren Raumstrukturen und großzügigen Wohnflächen machen diese Villa zu einem idealen Zuhause für Familien, die Wert auf moderne Architektur und ein durchdachtes Wohnkonzept legen.
Fazit
Die Stadtvilla Lucca 4 bietet mit ihrem stilvollen und modernen Design sowie der großzügigen Raumaufteilung ein perfektes Zuhause für Familien. Hier wird Wohnkomfort großgeschrieben – ein Ort, an dem sich die ganze Familie wohlfühlen kann. Funktionalität und stilvolle Architektur werden hier in perfekter Harmonie vereint.
Sie haben Interesse?
Laden Sie sich jetzt Ihr kostenloses Exposé zu diesem Haus herunter:
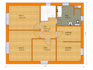
Grundrissfür Stadtvilla Lucca 4
Außenmaße
Länge: 11,5 m
Breite: 9 m
Grundrisse
Der Grundriss entspricht nicht Ihren Vorstellungen?
Passen Sie den Grundriss an Ihre persönlichen Bedürfnisse an und besprechen Sie Ihren individuellen Plan mit einem Bauberater des Anbieters.
Merkmale
Energiestandard und Förderung
Energiestandard
Effizienzhaus 40
Effizienzhaus 55
Dach
Dachform
Walmdach
Dachneigung
22°
Preisdetails für Stadtvilla Lucca 4
Schlüsselfertig ab
364.900 €
ab 1.098,50 €
Dieser Preis ist ein Beispiel für den Anfang, ein Berater kann Ihnen ein detailliertes Angebot erstellen, das Ihren Bedürfnissen entspricht.
Möchten Sie bei Ihrem Projekt Geld sparen?
Durch einen Angebotsvergleich mit Fertighaus.de können Sie bis zu 20 % Ihrer Baukosten sparen.
Stadtvilla Lucca 4 - Hilfreiche Fragen & Antworten
Mit einem Quadratmeterpreis von rund 2.300 Euro ordnet sich die Stadtvilla Lucca 4 im günstigen Preissegment für schlüsselfertige Massivhäuser ein. Dieser Preis umfasst bereits die professionelle Umsetzung durch den Baupartner. Gerne können Sie über uns ein detailliertes Angebot anfordern, um zu erfahren, welche spezifischen Inklusivleistungen in dieser Kalkulation für Ihr individuelles Bauvorhaben enthalten sind.
Für dieses Modell empfehlen wir eine Grundstücksgröße von etwa 450 m². Da die Stadtvilla eine Grundfläche von zirka 104 m² beansprucht, bleibt bei dieser Planung genügend Raum für Stellplätze sowie eine großzügige Gartenfläche. Wir unterstützen Sie gerne dabei, wie sich das Haus optimal auf Ihrem vorhandenen oder geplanten Baugrundstück in der Region Berlin-Brandenburg positionieren lässt.
Die Architektur besticht durch ein klassisches Walmdach mit einer Neigung von 22 Grad, was dem Gebäude eine zeitlose Eleganz verleiht. Dank der zwei Vollgeschosse entstehen keine störenden Dachschrägen, wodurch Sie die Wohnfläche von 156 m² uneingeschränkt nutzen können. Große Fensterfronten sorgen zudem für lichtdurchflutete Räume und unterstreichen das moderne, offene Wohnkonzept dieser massiv gebauten Stadtvilla.
Die Stadtvilla Lucca 4 wird in traditioneller Massivbauweise „Stein auf Stein“ errichtet. Diese Methode garantiert eine hohe Langlebigkeit sowie einen hervorragenden Schallschutz für Ihre gesamte Familie. Da der Anbieter großen Wert auf Individualität legt, können wir gemeinsam mit Ihnen spezifische Anpassungen am Grundriss planen. So entsteht ein robustes Eigenheim, das exakt Ihren persönlichen Vorstellungen und Bedürfnissen entspricht.
Über den Anbieter KLINKER HAUS
Zum Anbieterprofil
Bewertungen
4,8
(4)

Bewertungen
4,8
4 BewertungenHervorragend
KLINKER HAUS in Zahlen
Gründungsjahr
1998
Häuser im Angebot
27
Häuser pro Jahr
20-30
Mitarbeiter
12
Bewertungen von KLINKER HAUS
Wir sind in der Planungsphase, das BV ist nic...
Wir sind in der Planungsphase, das BV ist nicht vor 2026 geplant.
10 Feb. 2024Andy S.
Woher wissen, was es später kostet.
Wir sind über Umwege bei Klinkerhaus gelandet und sind bis heute mehr als glücklich, mit Ihnen gebaut zu haben. Damals waren wir erst bei einer namenhaften Franchise-Baufirma, da wir sonst (so dachten wir) nicht an die Grundstücke ran gekommen wären. Wir haben nach Unterschrift schnell mitbekommen, wie dort der Hase läuft. Es warteten auf uns; versteckte Kosten, keine Transparenz, sittenwidrige Verträge und vieles Schlechte mehr. Es war wie ein Fass ohne Boden. Man sagte uns am Ende, als wir uns trennten, dass unsere Ansprüche für den Ihre Haustypen viel zu hoch und individuell waren und man hätte uns niemals als Kunden unter Vertrag nehmen dürfen. Haben sie aber, da der Vertrieb so geldgierig ist, dass weitestgehend alles mitgenommen wird. Dank unserm Finanzierer sind wir dann bei Klinkerhaus gelandet. Hier haben wir vor Unterschrift bereits alles prüfen und besprechen können und hier wurde uns bewusst, wieviel Zeit man sich nehmen sollte am Anfang um alle Wünsche abzufragen und uns somit ein konkretes und korrektes Angebot nach unseren Vorstellungen machen zu können. Da hieß es nicht,: und nun hätten wir gern noch 10T Euro dafür und 7T Euro hierfür, wie zuvor. Auch haben den Ihre Häuser von vornherein gleich eine bessere Qualität, höheren Standard und Ausstattung etc. Und der Haken kommt nicht; Am Ende kostetet es sogar weniger als der erste Bauvertrag und unsere Bausachverständigen waren auch mehr als happy. Wir auch, wir hatten keine überraschten Kosten mehr, ein Budget über und konnten somit zügig mit der Außenanlage starten. Daraus entstand Haus und Garten mit Herz.
02 Feb. 2024Saskia W.
Interessantes Gespräch, viele Infos erhalten,...
Interessantes Gespräch, viele Infos erhalten, sind in der Vorplanungsphase. Bei Bedarf melden wir uns dort.
29 Jan. 2024Andy S.
Leistungsspektrum
Preisgarantie
Bauzeit Garantie
Individuelle Planung
Blower Door Test
Persönliche Beratung für Ihre individuellen Wünsche
Finden Sie jetzt Ihren Ansprechpartner
KLINKER HAUS
Ähnliche Häuser Für Stadtvilla Lucca 4