








Musterhaus Mülheim-Kärlich von OKAL Haus
Ab 519.900 €
Bewertungen von OKAL Haus
4,6
(18)
Wohnfläche
115 m²
Zimmer
10,5
Ausbaustufe
Schlüsselfertig
Bauweise
Fertighaus
Etagen
2
Energiestandard
Effizienzhaus 55
Dachform
Satteldach
Hausart
Einfamilienhaus
Beschreibung
Viel Raum – viel Licht: Argumente, die überzeugen!
Hinter der klassischen Fassade steckt ein überzeugendes Licht- und Raumkonzept! Übereckverglasungen im Erdgeschoss sowie Kniestock- und Dachflächenfenster im Obergeschoss verleihen dem Satteldachhaus einen optimalen Lichtfluss.
Doch auch die Raumaufteilung überzeugt. Das weitläufige Wohnzimmer ist nur durch eine Wandscheibe vom Koch-Ess-Bereich abgetrennt. Und auch im Dachgeschoss mit Galerie spürt man Raumfreiheit: das Elternzimmer mit eigenem Bad und Ankleide wird durch die Kinderzimmer, ein Duschbad und praktischen Abstellraum ergänzt. Der clevere Anbau im Erdgeschoss bietet zusätzlichen Raum für Büro oder Gäste.
Merkmale
- Garage
- Gästezimmer
Sie haben Interesse?
Laden Sie sich jetzt Ihr kostenloses Exposé zu diesem Haus herunter:
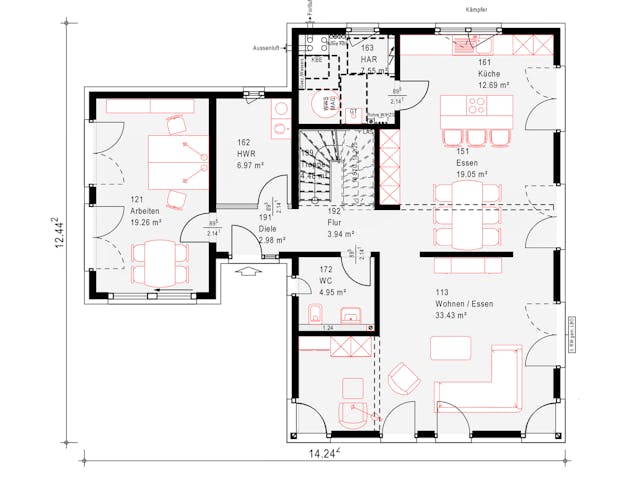
Grundrissfür Musterhaus Mülheim-Kärlich
Außenmaße
Länge: 14,24 m
Breite: 12,44 m
Grundrisse
Der Grundriss entspricht nicht Ihren Vorstellungen?
Passen Sie den Grundriss an Ihre persönlichen Bedürfnisse an und besprechen Sie Ihren individuellen Plan mit einem Bauberater des Anbieters.
Merkmale
Energiestandard und Förderung
Energiestandard
Effizienzhaus 40
Effizienzhaus 40 Plus
Effizienzhaus 55
Plusenergiehaus
U-Wert
0,12
Dach
Dachform
Satteldach
Dachneigung
22°
Kniestockhöhe
180 cm
Preisdetails für Musterhaus Mülheim-Kärlich
Schlüsselfertig ab
519.900 €
ab 1.565,12 €
Dieser Preis ist ein Beispiel für den Anfang, ein Berater kann Ihnen ein detailliertes Angebot erstellen, das Ihren Bedürfnissen entspricht.
Möchten Sie bei Ihrem Projekt Geld sparen?
Durch einen Angebotsvergleich mit Fertighaus.de können Sie bis zu 20 % Ihrer Baukosten sparen.
Musterhaus Mülheim-Kärlich - Hilfreiche Fragen & Antworten
Dieses exklusive Einfamilienhaus liegt preislich bei etwa 4.500 Euro pro Quadratmeter und ist damit im luxuriösen Segment angesiedelt. Der schlüsselfertige Preis umfasst eine hochwertige Ausstattung sowie modernste Energiestandards. Da individuelle Anpassungen den Endpreis beeinflussen können, empfehlen wir Ihnen, über uns ein detailliertes Angebot anzufordern, um eine präzise Kalkulation für Ihr Bauvorhaben zu erhalten.
Das Haus kombiniert klassische Architektur mit modernen Elementen. Besonders hervorzuheben sind die großzügigen Übereckverglasungen im Erdgeschoss, die für einen optimalen Lichtfluss sorgen. Dank eines hohen Kniestocks von 1,80 Metern bietet das Obergeschoss unter dem Satteldach fast uneingeschränkte Raumfreiheit. Das durchdachte Lichtkonzept schafft eine helle, einladende Atmosphäre in allen Wohnbereichen, was den modernen Wohnkomfort unterstreicht.
Für das Musterhaus Mülheim-Kärlich empfehlen wir eine Grundstücksgröße von mindestens 350 m². Diese Fläche bietet ausreichend Platz für die Grundfläche des Hauses, notwendige Pkw-Stellplätze sowie eine schöne Gartenfläche. Da die Raumaufteilung mit 115,3 m² Wohnfläche sehr kompakt und effizient gestaltet ist, lässt sich dieses Hausmodell auch hervorragend auf kleineren, städtischen Baugrundstücken realisieren.
Nachhaltigkeit steht bei diesem Objekt im Fokus. Der Anbieter OKAL zertifiziert seine Häuser nach den strengen Kriterien der Deutschen Gesellschaft für Nachhaltiges Bauen, oft in Gold oder Platin. Zum Einsatz kommen umweltverträgliche Materialien wie Holz aus nachhaltiger Forstwirtschaft. Zudem sorgen modernste Dämmung und effiziente Heiztechnologien dafür, dass verschiedene Energiestandards wie das Effizienzhaus 40 problemlos erreicht werden können.
Über den Anbieter OKAL Haus
Zum Anbieterprofil
Bewertungen
4,6
(18)

Bewertungen
4,6
18 BewertungenHervorragend
OKAL Haus in Zahlen
Gründungsjahr
1928
Häuser im Angebot
74
Häuser gesamt
> 90.000
Mitarbeiter
160
Bewertungen von OKAL Haus
Grundstückssuche
Es muss ein Grundstück gefunden werden.
04 Apr. 2026Marina W.
Starker Start in unser Bauprojekt
Beratung, Fachkenntnis, Flexibilität und Geduld – einfach super! Wir hoffen, dass es beim Hausbau genauso weitergeht!
21 Feb. 2026Ronny L.
Gute Beratung Leider hat sich das Projekt er...
Gute Beratung Leider hat sich das Projekt erledigt
14 Feb. 2026Georg M.
Leistungsspektrum
Finanzierungsberatung
Preisgarantie
Bauzeit Garantie
Individuelle Planung
Blower Door Test
Persönliche Beratung für Ihre individuellen Wünsche
Finden Sie jetzt Ihren Ansprechpartner
OKAL Haus
Auszeichnungen, Zertifikate & Mitgliedschaften






Ähnliche Häuser Für Musterhaus Mülheim-Kärlich