




Vitalhaus Oberpframmern von Regnauer Hausbau
Ab 618.925 €
Bewertungen von Regnauer Hausbau
5,0
(1)
Wohnfläche
170 m²
Zimmer
5
Ausbaustufe
Schlüsselfertig
Bauweise
Fertighaus
Energiestandard
Effizienzhaus 40 Plus
Dachform
Satteldach
Hausart
Einfamilienhaus
Beschreibung
Transparenz im schlichten Design - Hell und großzügig sollte das neue Eigenheim werden, so der Wunsch des Bauherrenpaars. Schon der erste Eindruck überzeugt durch die schlichte, zeitlose Fassadengestaltung: Über dem weiß verputzten Erdgeschoss setzen die Rhombusleisten aus Lärchenholz einen warmen Akzent und korrespondieren mit den klaren Linien der beiden Balkone. Eine klare Linienführung zeigt sich auch bei der Anordnung der Fenster und dem zentralen Glaselement an der Südseite des Hauses. Jeweils zwei Fenstertüren im Erd- und im Obergeschoss lassen an der Westseite Tageslicht bis in den späten Abend herein. Im Nordbereich wird ganz auf Fenster verzichtet. Das Satteldach des in Massivholz-Riegel-Konstruktion und mit Regnauer Vitalwand erstellten Hauses wurde mit Tondachziegeln eingedeckt.
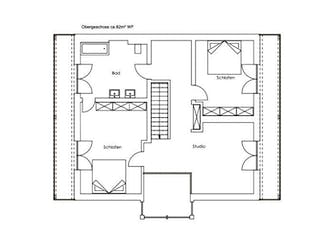
Viel Licht im Haus - Der Zugang zum Erdgeschoss erfolgt von der nördlich angrenzenden Garage. Gegenüberliegend öffnet sich dann der großzügig gestaltete, 46 Quadratmeter große Wohn-, Koch und Essbereich als Lebensmittelpunkt im Haus und gibt den Blick frei auf den Garten. Als raffiniertes Detail verleiht der Luftraum im Wohnbereich zusätzliche Weite und einen lichtdurchfluteten Raum. Rollos sorgen nach Wunsch für eine optimale Beschattung. Für Besucher steht ein Gästezimmer zur Verfügung, das dank der ebenerdigen Türe viel Tageslicht erhält. Die Restfläche im rund 92 Quadratmeter umfassenden Erdgeschoss teilen sich eine geräumige Diele und ein Duschbad sowie die an die Küche angrenzende Speisekammer und ein praktischer Hauswirtschaftsraum. Weitläufig präsentiert sich auch das Obergeschoss mit rund 76 Quadratmetern: Zwei Schlafzimmer, von denen eines direkt mit dem Badezimmer verbunden ist, nehmen hier den Großteil der Fläche ein. Raum für individuelle Gestaltung und Nutzung lässt das offen mit der Diele verbundene Studio.
Wohnen im Alter - Der Wunsch, bis ins hohe Alter in den eigenen vier Wänden zu wohnen und sich selbst versorgen zu können, steht mit an erster Stelle, wenn sich die Deutschen Gedanken über ihre Lebensplanung machen. Leider verhindern die baulichen Voraussetzungen häufig die Umsetzung dieses Wunsches oder lassen sich nur mit hohen Kosten realisieren. Beim Haus Oberpframmern setzte sich das Bauherrenpaar bereits beim Bau mit dem Thema Älterwerden auseinander. Mittels einer durchdachten Raumaufteilung genügt bei Bedarf das Erdgeschoss als alleinige Wohnfläche. Das derzeitige Gästezimmer lässt sich in ein ausreichend großes Schlafzimmer umwandeln, ein Duschbad ist bereits vorhanden. Mit den zwei Schlafzimmern und dem Bad sowie dem Studio im Obergeschoss bleibt immer noch genug Platz für Besuche von Kindern und Enkeln.
Gut kalkuliert – Beruflich sind die Bauherren beide als Selbständige tätig und legten besonderen Wert auf eine solide und transparente Planung in allen Bereichen. Mit seinem Konzept des schlüsselfertigen Bauens zum Fixtermin und Festpreis erwies sich das Seebrucker Unternehmen während der gesamten Planungs- und Bauphase als kompetenter und zuverlässiger Partner. Dem neuen Lebensabschnitt im neuen Haus steht nun nichts mehr entgegen.
Ausführung gemäß aktueller Regnauer Bauleistungs- und Ausstattungsbeschreibung. Weitere Informationen auf www.regnauer.de. Abbildungen können Sonderausstattung zeigen. Wir legen großen Wert darauf, Ihr Vitalhaus ganz nach Ihren persönlichen Wünschen zu gestalten. Gemäß Ihren Wünschen und Ihrer Grundstückssituation ergibt sich dann ein exakter Festpreis für Ihr Traumhaus. Daher beziehen sich die Preise auf eine Vitalausstattung ohne spezifische Sonderausstattung.
Voraussetzung zur Erlangung der Bundesförderung für Effiziente Gebäude ist die Einhaltung der diesbezüglichen Förderrichtlinien. So wird hierfür unter anderem die Ausführung einer förderfähigen Haustechnik sowie die entsprechende Ausführung der bauherrenseitigen Leistungen (z.B. Keller und -ausbau) vorausgesetzt. Die Förderrichtlinien sind auch Änderungen unterworfen, sodass die Förderfähigkeit jeweils im Einzelfall geprüft und objektspezifisch durch das Förderinstitut bestätigt werden muss. Auch können einzelne Programme ausgesetzt oder verändert werden. Die Regnauer Hausbau GmbH & Co KG kann keine Finanzierungs- oder Förderberatung durchführen.
Sie haben Interesse?
Laden Sie sich jetzt Ihr kostenloses Exposé zu diesem Haus herunter:
Grundrissfür Vitalhaus Oberpframmern
Grundrisse
Der Grundriss entspricht nicht Ihren Vorstellungen?
Passen Sie den Grundriss an Ihre persönlichen Bedürfnisse an und besprechen Sie Ihren individuellen Plan mit einem Bauberater des Anbieters.
Merkmale
Energiestandard und Förderung
Energiestandard
Effizienzhaus 40
Effizienzhaus 40 Plus
Dach
Dachform
Satteldach
Preisdetails für Vitalhaus Oberpframmern
Schlüsselfertig ab
618.925 €
ab 1.863,22 €
Dieser Preis ist ein Beispiel für den Anfang, ein Berater kann Ihnen ein detailliertes Angebot erstellen, das Ihren Bedürfnissen entspricht.
Möchten Sie bei Ihrem Projekt Geld sparen?
Durch einen Angebotsvergleich mit Fertighaus.de können Sie bis zu 20 % Ihrer Baukosten sparen.
Vitalhaus Oberpframmern - Hilfreiche Fragen & Antworten
Für dieses schlüsselfertige Einfamilienhaus von Regnauer Hausbau liegt der Preis bei etwa 3.600 € pro Quadratmeter. Damit ordnen wir das Objekt in das gehobene Preissegment ein. In diesem Preis ist eine hochwertige Vitalausstattung bereits enthalten. Fordern Sie gerne über uns weitere Details an, um eine präzise Kalkulation für Ihr persönliches Bauprojekt zu erhalten.
Das Haus besticht durch ein klassisches Satteldach und eine elegante Fassade aus weißem Putz sowie Rhombusleisten aus Lärchenholz. Besonders hervorzuheben ist der großzügige Luftraum im Wohnbereich, der für ein offenes, lichtdurchflutetes Ambiente sorgt. Große Fensterfronten an der Süd- und Westseite lassen zudem viel Tageslicht herein, während die Nordseite für maximale Privatsphäre weitgehend geschlossen bleibt.
Wir empfehlen für das Vitalhaus Oberpframmern eine Grundstücksgröße von mindestens 450 m². Da die Grundfläche des Hauses etwa 92 m² beträgt, bleibt bei dieser Größe genügend Raum für einen Garten von rund 280 m² sowie Stellplätze. So lassen sich die notwendigen Abstandsflächen bequem einhalten und Sie genießen ausreichend privaten Freiraum rund um Ihr neues Eigenheim.
Dieses Haus eignet sich hervorragend für Bauherren, die vorausschauend planen. Durch die durchdachte Raumaufteilung kann das Erdgeschoss im Alter als komplette Wohneinheit genutzt werden. Das heutige Gästezimmer fungiert dann als Schlafzimmer. Dank der ökologischen Holzbauweise von Regnauer profitieren Sie zudem von einem gesunden Wohlfühlklima, das durch die innovative Vitalwand des Herstellers konsequent unterstützt wird.
Über den Anbieter Regnauer Hausbau
Zum Anbieterprofil
Bewertungen
5,0
(1)

Bewertungen
5,0
1 BewertungHervorragend
Regnauer Hausbau in Zahlen
Gründungsjahr
1929
Häuser im Angebot
26
Häuser pro Jahr
ca. 100
Häuser gesamt
über 3.000
Mitarbeiter
250
Bewertungen von Regnauer Hausbau
Wir waren den Sommer über im Allgäu und haben...
Wir waren den Sommer über im Allgäu und haben dort diese wunderschönen Häuser bestaunen können! In unserer Phantasie wünschen wir uns auch schon länger solch ein tolles Haus.
07 Dez. 2025Elphi W.
Leistungsspektrum
Finanzierungsberatung
Preisgarantie
Bauzeit Garantie
Individuelle Planung
Blower Door Test
Persönliche Beratung für Ihre individuellen Wünsche
Finden Sie jetzt Ihren Ansprechpartner
Regnauer Hausbau
Auszeichnungen, Zertifikate & Mitgliedschaften






Ähnliche Häuser Für Vitalhaus Oberpframmern