





SUNSHINE 165 V2 von Living Fertighaus
Ab 426.931 €
Bewertungen von Living Fertighaus
4,1
(225)
Wohnfläche
164 m²
Zimmer
5
Ausbaustufe
Schlüsselfertig
Bauweise
Fertighaus
Etagen
1,5
Energiestandard
Effizienzhaus 55
Dachform
Satteldach
Hausart
Einfamilienhaus
Beschreibung
Traumhaus mit Übereck-Panoramaerker und Doppelcarport „Modern Art”
Das elegante Einfamilienhaus SUNSHINE 165 ermöglicht dir mit vielen vorgedachten Detaillösungen eine ganz individuelle architektonische Gestaltung, um deine persönlichen Wünsche und Ideen perfekt umzusetzen. Im Erdgeschoss bietet der Wohn- und Essbereich mit angrenzender Küche viel Platz zum Kochen, gemeinsam Essen, Feste feiern und auch mal die Beine hochlegen. Das zusätzliche Zimmer kannst du ganz nach Bedarf als Hobbyraum, Bibliothek oder Arbeits- und Gästezimmer nutzen. Im Obergeschoss haben die Empore und das integrierte Schlafzimmer einen besonderen Charme und machen dein Leben im SUNSHINE 165 noch ein Stückchen schöner.
Der Preis bezieht sich auf den Standard-Leistungsumfang in der Ausbaustufe Ausbauhaus-Plus als Effizienzhaus 55 I-KON Standard inkl. Bodenplatte, Zuhause-Paket und Küche gemäß gültiger Bau- und Leistungsbeschreibung Stand 02/2026 und Preisliste 02/2026. Grundrisse und Abbildungen können Extras zeigen. Flächenangaben nach DIN 277.
Merkmale
- Erker
- Carport
- Gästezimmer
Sie haben Interesse?
Laden Sie sich jetzt Ihr kostenloses Exposé zu diesem Haus herunter:
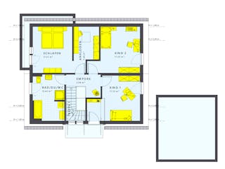
Grundrissfür SUNSHINE 165 V2
Außenmaße
Länge: 9,34 m
Breite: 10,59 m
Grundrisse
Der Grundriss entspricht nicht Ihren Vorstellungen?
Passen Sie den Grundriss an Ihre persönlichen Bedürfnisse an und besprechen Sie Ihren individuellen Plan mit einem Bauberater des Anbieters.
Merkmale
Energiestandard und Förderung
Energiestandard
Effizienzhaus 55
U-Wert
0,17
Dach
Dachform
Satteldach
Dachneigung
38°
Kniestockhöhe
100 cm
Preisdetails für SUNSHINE 165 V2
Schlüsselfertig ab
426.931 €
ab 1.285,24 €
Dieser Preis ist ein Beispiel für den Anfang, ein Berater kann Ihnen ein detailliertes Angebot erstellen, das Ihren Bedürfnissen entspricht.
Möchten Sie bei Ihrem Projekt Geld sparen?
Durch einen Angebotsvergleich mit Fertighaus.de können Sie bis zu 20 % Ihrer Baukosten sparen.
SUNSHINE 165 V2 - Hilfreiche Fragen & Antworten
Das SUNSHINE 165 V2 liegt schlüsselfertig bei einem Quadratmeterpreis von etwa 2.200 Euro. Damit ordnet es sich in das sehr günstige Preissegment ein. Besonders attraktiv ist die Festpreisgarantie von 18 Monaten, die Ihnen hohe finanzielle Sicherheit bietet. Gerne können Sie über uns ein detailliertes und unverbindliches Angebot für Ihr individuelles Bauvorhaben anfordern.
Dieses Modell besticht durch seinen eleganten Übereck-Panoramaerker, der viel Licht in den Wohnbereich lässt. Das klassische Satteldach mit einem Kniestock von 100 cm schafft im Obergeschoss gemütlichen Wohnraum. Zudem ermöglicht die flexible Planung ein zusätzliches Zimmer im Erdgeschoss, das wir Ihnen als Büro oder Gästezimmer empfehlen. Die moderne Optik wird durch klare Linien unterstrichen.
Wir empfehlen für dieses Einfamilienhaus eine Grundstücksfläche von mindestens 450 m². Bei einer Grundfläche von knapp 99 m² bleibt so genügend Platz für einen Garten und Stellplätze. Die Außenmaße von rund 9 mal 10 Metern machen das Haus auch für kompakte Grundstücke interessant. So genießen Sie trotz moderater Grundstückskosten ein großzügiges Wohngefühl auf zwei Ebenen.
Living Fertighaus setzt auf eine nachhaltige Holzfertigbauweise mit Materialien, die auf Wohngesundheit geprüft sind. Das Haus erfüllt den Effizienzhaus 55 Standard und schont somit die Umwelt sowie Ihren Geldbeutel. Das verwendete Holz stammt aus nachhaltiger Forstwirtschaft. Wir schätzen besonders die Zertifizierung im Gold-Standard der DGNB, die die hohe ökologische Qualität dieses modernen Eigenheims offiziell bestätigt.
Über den Anbieter Living Fertighaus
Zum Anbieterprofil
Bewertungen
4,1
(225)

Bewertungen
4,1
225 BewertungenGut
Living Fertighaus in Zahlen
Gründungsjahr
2015
Häuser im Angebot
95
Häuser pro Jahr
> 100
Mitarbeiter
1-10
Bewertungen von Living Fertighaus
Kontakt erfolgte gleich auf mehreren Kanälen....
Kontakt erfolgte gleich auf mehreren Kanälen. Der Vertrieb war sehr schnell. Die Fachperson aber was etwas verhalten in ihrer Ansprache. Wir werden voraussichtlich keinen Termin machen - zu viel Auswahl macht keinen Sinn.
15 Jan. 2026Yvonne G.
Erstberatung erfolgt
Erstberatung erfolgt, Angebot noch offen, noch viele Fragen offen
23 Sep. 2025Frank D.
Versprechen und keine Reaktion mehr
Erstkontakt sehr vielversprechend. Freundliches und aufgeschlossenes Gespräch. Danach leere Versprechen ein Angebot zu erstellen und Infomaterial bereitzustellen. Berater telefonisch nicht mehr erreichbar. Auch via Mail keine Antwort mehr erhalten. Rückmeldungen leider Fehlanzeige. Schade! Schade, weil wir uns mit Living einen vertrauenswürdigen Partner zum Hausbau an die Seite holen wollten,
06 Feb. 2025Dominique G.
Leistungsspektrum
Finanzierungsberatung
Preisgarantie
Bauzeit Garantie
Individuelle Planung
Blower Door Test
Persönliche Beratung für Ihre individuellen Wünsche
Finden Sie jetzt Ihren Ansprechpartner
Living Fertighaus
Ähnliche Häuser Für SUNSHINE 165 V2