


Zweifamilienhaus R_163 von VARIODOMO Bausysteme
Ab 462.300 €
Bewertungen von VARIODOMO Bausysteme
4,0
(3)
Wohnfläche
163 m²
Zimmer
6
Ausbaustufe
Schlüsselfertig
Bauweise
Massivhaus
Etagen
2
Energiestandard
Effizienzhaus 55
Dachform
Satteldach
Hausart
Zweifamilienhaus
Beschreibung
Dieser Haustyp ist durch seine großzügige Auslegung für zwei Familien möglich. Im Obergeschoß kann bei Bedarf eine zweite Wohnung eingerichtet werden. Selbstverständlich erlaubt die Konzeption auch die komplette Nutzung für nur eine Familie.
Angaben zum Preis: je Wohneinheit 231.150 €
Sie haben Interesse?
Laden Sie sich jetzt Ihr kostenloses Exposé zu diesem Haus herunter:
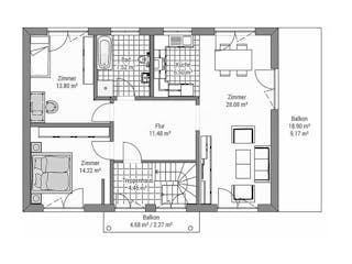
Grundrissfür Zweifamilienhaus R_163
Außenmaße
Länge: 12,5 m
Breite: 9 m
Grundrisse
Der Grundriss entspricht nicht Ihren Vorstellungen?
Passen Sie den Grundriss an Ihre persönlichen Bedürfnisse an und besprechen Sie Ihren individuellen Plan mit einem Bauberater des Anbieters.
Merkmale
Energiestandard und Förderung
Energiestandard
Effizienzhaus 55
Dach
Dachform
Satteldach
Dachneigung
35°
Preisdetails für Zweifamilienhaus R_163
Schlüsselfertig ab
462.300 €
ab 1.391,72 €
Dieser Preis ist ein Beispiel für den Anfang, ein Berater kann Ihnen ein detailliertes Angebot erstellen, das Ihren Bedürfnissen entspricht.
Möchten Sie bei Ihrem Projekt Geld sparen?
Durch einen Angebotsvergleich mit Fertighaus.de können Sie bis zu 20 % Ihrer Baukosten sparen.
Zweifamilienhaus R_163 - Hilfreiche Fragen & Antworten
Das Haus liegt mit einem Quadratmeterpreis von rund 2.800 Euro im mittelpreisigen Segment für schlüsselfertige Massivhäuser. Da es für zwei Familien konzipiert ist, teilen sich die Kosten effizient auf. Gerne erstellen wir für Sie eine detaillierte Kostenübersicht, die Ihre individuellen Wünsche und die aktuelle Marktlage in Ihrer Region berücksichtigt.
Wir empfehlen für dieses Bauvorhaben eine Grundstücksfläche von mindestens 500 m². Die Grundfläche des Hauses beträgt etwa 113 m². Zuzüglich Stellplätzen von 50 m² und einer großzügigen Gartenfläche von rund 325 m² bietet dies ausreichend Platz für beide Wohneinheiten. So wahren Sie die nötigen Abstände und behalten eine hohe Lebensqualität im Freien.
Das klassische Satteldachhaus besticht durch seine hohe Flexibilität. Es ist primär als Zweifamilienhaus geplant, wobei das Obergeschoss als separate Wohnung genutzt werden kann. Alternativ lässt sich das Gebäude problemlos als großzügiges Einfamilienhaus für eine große Familie bewohnen. Die massive Bauweise sorgt dabei für hervorragenden Schallschutz zwischen den Etagen, was besonders bei zwei Parteien wichtig ist.
VARIODOMO setzt bei diesem Modell auf die bewährte Massivbauweise Stein auf Stein. Das wärmespeichernde Mauerwerk sorgt für ein angenehmes Raumklima und eine hohe Wertbeständigkeit. In Kombination mit einer modernen Luft-Wasser-Wärmepumpe ist das Haus energetisch zeitgemäß aufgestellt. Wir begleiten Sie durch den gesamten Prozess, von der ersten Planung durch den Architekten bis zur schlüsselfertigen Übergabe.
Über den Anbieter VARIODOMO Bausysteme
Zum Anbieterprofil
Bewertungen
4,0
(3)

Bewertungen
4,0
3 BewertungenGut
VARIODOMO Bausysteme in Zahlen
Gründungsjahr
1990
Häuser im Angebot
10
Häuser gesamt
750
Mitarbeiter
6
Bewertungen von VARIODOMO Bausysteme
Gute Kundenorientierung
Mail – und Telefonkontakt. Es wurde auf meine Wünsche eingegangen.
26 Juli 2025Beate B.
Nett aber zu lange gebraucht
Hat sehr lange gedauert. Dann einfach eine Menge Post zugeschickt. Auf Anrufe dann nicht reagiert. 1 Monat später angerufen worden und das Gespräch gehabt. Dabei sehr freundlich, aber wir hatten bereits einen anderen Partner gewählt.
02 Dez. 2023Ina R.
Sehr kompetent, vertrauenswürdig
Sehr kompetent gut vorbereitet
12 Nov. 2023Joachim B.
Leistungsspektrum
Finanzierungsberatung
Preisgarantie
Bauzeit Garantie
Individuelle Planung
Blower Door Test
Persönliche Beratung für Ihre individuellen Wünsche
Finden Sie jetzt Ihren Ansprechpartner
VARIODOMO Bausysteme
Weitere Häuser
Ähnliche Häuser Für Zweifamilienhaus R_163