
Haus mit Homeoffice planen: Büro Ideen für Ihr Zuhause

Planen Sie ein Haus mit Homeoffice, sollten Sie auf einige wichtige Dinge achten. Ob Sie ein Haus mit Büroanbau planen oder das heimische Büro im Grundriss Ihres eigentlich geplanten Hauses integrieren, hängt von unterschiedlichen Faktoren ab. In jedem Fall sollte Ihr Arbeitsplatz ruhig gelegen und durch eine Tür vom Wohnbereich abtrennbar sein. Gute Lichtverhältnisse für morgendliches Sonnenlicht ohne Blendeffekte sind essentiell.
Wie groß Ihr Büro sein sollte und ob es über einen eigenen Eingang verfügt, hängt davon ab, ob Sie Kunden empfangen oder ob Sie remote arbeiten und keinen Kundenverkehr haben.Hier zeigen wir Ihnen die besten Büro Ideen für Ihr Zuhause.
Welche Faktoren beeinflussen die Homeoffice-Planung?
Prinzipiell sollten Sie vier Kriterien beherzigen, wenn Sie Ihre Büro Ideen im eigenen Zuhause umsetzen wollen. Ehe wir ins Detail gehen, möchten wir Ihnen diese Faktoren erläutern:
- Technische Voraussetzungen
Stabiles Internet und Strom müssen in der heutigen Zeit sowohl im eigentlichen Wohnhaus, als auch in einem Haus mit Büroanbau gewährleistet sein. Arbeiten Sie im Internet oder in der Telekommunikation, sind diese Grundlagen essenziell. An zweiter Stelle steht die physische Arbeitsumgebung. - Physische Arbeitsumgebung
Ein ergonomischer, heller und ausreichend großer Arbeitsbereich ist im Büro Grundriss in den eigenen vier Wänden zu beherzigen – vor allem Tageslicht macht hier den großen Unterschied. - Persönliche Organisation
Wenn Sie von Zuhause aus arbeiten, sollte Ihr Tag gut organisiert und zwischen Arbeitszeit und Freizeit getrennt sein. - Trennung vom Familienbereich
Während Ihrer Arbeitszeit ist es wichtig, dass Sie nicht gestört werden. Hier spielt die Trennung vom gemeinschaftlich genutzten Familienbereich eine wichtige Rolle. Andernfalls ist es kaum möglich, dass Sie sich auf Ihre Arbeit konzentrieren und ohne jegliche Einschränkungen im Business produktiv sein können.
Wie groß sollte ein Arbeitszimmer im Haus sein?
Das Idealmaß eines eigenen Arbeitszimmers im Haus beträgt zwischen 10 und 15 Quadratmeter. Die Arbeitsstättenverordnung schreibt eine Mindestfläche von acht Quadratmetern im Büro Grundriss vor, auch wenn es sich um einen heimischen Arbeitsplatz handelt.
Arbeiten Sie zu zweit daheim oder empfangen Sie Kunden und Geschäftspartner, sollten Sie die Bürofläche immer größer planen. Hier wäre auch ein separater Eingang sinnvoll, vor allem, wenn es um Kundenverkehr geht.
Kalkulieren Sie ausreichend Stauraum und Bewegungsraum in den Anbau oder in das Arbeitszimmer in Ihrem Haus ein. Aber auch hier kommt es ganz darauf an, welche und wie viele Arbeitsutensilien Sie benötigen. In einem Büro für Steuerberater:innen braucht es in der Regel ausreichend Stauraum für Aktenordner, während Grafikdesigner:innen wenig Stauraum, aber dafür einen großen Schreibtisch mit mindestens zwei Monitoren benötigen.
Grundrissidee für das Büro im eigenen Haus
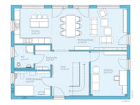
Arbeiten zwei Personen regelmäßig von Zuhause aus, erweisen sich zwei abgetrennte Büros als effektive Lösung. Der folgende Grundriss zeigt, wie Sie zwei Arbeitszimmer im Erdgeschoss integrieren können. Während das eine Büro knapp 10 Quadratmeter umfasst, verfügt das zweite Homeoffice über 15 Quadratmeter. Beide gehen direkt von der Diele im Eingangsbereich ab. Ein kleines WC liegt unmittelbar daneben.

Grundriss des Einfamilienhauses CONCEPT-M 155 Leipzigvon Bien-Zenker
Wie ist ein Büro im eigenen Haus effektiv eingerichtet?
Ein ergonomischer Schreibtisch und ein ergonomischer Bürostuhl gehören zur Grundausstattung eines Arbeitszimmers. Ihr Stuhl ist höhenverstellbar und verfügt über eine Rückenlehne, die Sie ebenfalls verstellen können. Sehr beliebt sind heute höhenverstellbare Schreibtische, die Sie im Idealfall auch als Stehtisch nutzen können.
Dazu kommen Regale zur Aufbewahrung und eine optimale Beleuchtung für sonnenarme Zeiten. Ihre Arbeitsleuchte sollte schwenkbar sein und sich so auf die jeweiligen Lichtverhältnisse und auf Ihre Bedürfnisse anpassen lassen. Noch wichtiger ist die Tageslichtversorgung im Home Office. Ein Fenster sollte sich unmittelbar zum Schreibtisch befinden.
Eine gute und lückenlose Internetverbindung sollte schon beim Hausbau im Fokus stehen, weil sie im Endeffekt für Ihr Business essentiell ist. Achten Sie hierbei auch auf Ihre Wohlfühlphase, die Ihnen individuelle Gestaltungsmöglichkeiten und Freiheiten für die Freizeit bietet.
Wann ist ein Haus mit Büroanbau sinnvoll?
Arbeiten Sie ausschließlich oder mindestens 50 Prozent von Zuhause aus, ist eine Immobilie mit Büroanbau oder mit heimischem Arbeitszimmer sinnvoll – sofern Ihnen ausreichend Grundstücksfläche zur Verfügung steht. Nur so können Sie Ihr Business vom Privatleben trennen und nach Feierabend abschalten, indem Sie die Bürotür hinter sich schließen. Haben Sie ein Gewerbe mit Kundenverkehr und ist es wichtig, dass Sie ungestört arbeiten und sich für diesen Zeitraum von der Familie entfernen können, ist ein zweiter Eingang und somit ein eigenständiger Büroanbau sinnvoll.
Grundrissidee für ein Haus mit Büroanbau
Der folgende Grundriss zeigt, wie ein Büroanbau an das Einfamilienhaus gesetzt werden kann. Links vom Eingang führt die Garderobe zum Anbau, der ebenfalls über einen kleinen Flur und Abstellraum verfügt. Dahinter erstreckt sich das Arbeitszimmer mit Schiebefenstern zum Garten. Zudem hat der Büroanbau eine separate Eingangstür, was vor allem bei Kundenbesuch vorteilhaft ist. Somit kann der Arbeitsplatz komplett vom Wohnhaus abgetrennt werden.

Grundriss des Einfamilienhauses MH Gießen - MAXIMvon FingerHaus
Ein weiterer Grund für einen Anbau kann Platzmangel im eigentlichen Wohnhaus darstellen. Heutzutage gibt es clevere Konstruktionen für kleine Anbauten. Oft handelt es sich dabei um fertige Module, die ohne großen Bauaufwand auf Ihrem Grundstück platziert werden können. Dabei muss der Büroanbau nicht zwingend an das Wohnhaus grenzen, sondern kann separat im Garten stehen – Stichwort: Bürocontainer.
Ganz gleich, wo und wie Sie Ihr Home Office im Haus einrichten: Ein eigener Arbeitsplatz ist immer besser als der Laptop auf dem Sofa, von dem aus Sie Ihr Business erledigen.
Weitere Grundrissbeispiele für Arbeitszimmer im Haus
Wichtigste Fragen zum Thema Homeoffice im Eigenheim










