

























Neunkhausen von Fingerhut Haus
Ab 445.985 €
Bewertungen von Fingerhut Haus
4,2
(101)
Wohnfläche
133 m²
Zimmer
4,5
Ausbaustufe
Schlüsselfertig
Bauweise
Fertighaus
Etagen
1,5
Energiestandard
Effizienzhaus 55
Dachform
Satteldach
Hausart
Einfamilienhaus
Beschreibung
Willkommen zuhause
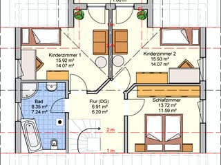
Unten wohnen, oben schlafen - Dieser Hausentwurf ist gemacht für mehrköpfige Familien. Im Erdgeschoss steht das 'Wohnen' im Vordergrund, im Dachgeschoss finden sich die Schlafzimmer. Das Erdgeschoss ist so konzipiert, sodass alle Räume schnell erreichen werden können. Durch den Flur gelangen die Bewohner in den offenen Wohn- und Essbereich. Die Küche ist vom Flur und vom Esszimmer aus begehbar. Perfekt für Homeoffice geeignet ist dieser Hausentwurf ebenfalls, denn in einem ruhig abgetrennten Bereich befinden sich im Erdgeschoss ein Büro und ein Gäste-WC. Insgesamt wurden im Dachgeschoss zwei Kinderzimmer und das elterliche Schlafzimmer eingeplant, die allen Bewohnern eine Rückzugsmöglichkeit bieten. Der dritte Giebel sorgt für zusätzlichen Platz und mehr Lichteinfall in den beiden Kinderzimmern. Der Balkon ist ebenfalls von beiden Kinderzimmern aus begehbar. Ein großes Badezimmer ist ebenfalls im Dachgeschoss untergebracht.
Angaben zum Preis:
Die gezeigten Abbildungen zeigen zum Teil Sonderleistungen gegen Mehrpreis. Preis der entsprechenden Ausbaustufe inkl. Fingerhut-Bodenplatte und 19 % MwSt. gemäß der Fingerhut-Bau- und Leistungsbeschreibung 1012, Preisliste P05/25.
Merkmale
- Gästezimmer
Sie haben Interesse?
Laden Sie sich jetzt Ihr kostenloses Exposé zu diesem Haus herunter:
Grundrissfür Neunkhausen
Grundrisse
Der Grundriss entspricht nicht Ihren Vorstellungen?
Passen Sie den Grundriss an Ihre persönlichen Bedürfnisse an und besprechen Sie Ihren individuellen Plan mit einem Bauberater des Anbieters.
Merkmale
Energiestandard und Förderung
Energiestandard
Effizienzhaus 40
Effizienzhaus 40 Plus
Effizienzhaus 55
Plusenergiehaus
U-Wert
0,14
Dach
Dachform
Satteldach
Dachneigung
42°
Preisdetails für Neunkhausen
Schlüsselfertig ab
445.985 €
Ausbauhaus ab263.242 €
ab 1.342,60 €
Dieser Preis ist ein Beispiel für den Anfang, ein Berater kann Ihnen ein detailliertes Angebot erstellen, das Ihren Bedürfnissen entspricht.
Möchten Sie bei Ihrem Projekt Geld sparen?
Durch einen Angebotsvergleich mit Fertighaus.de können Sie bis zu 20 % Ihrer Baukosten sparen.
Neunkhausen - Hilfreiche Fragen & Antworten
Für die schlüsselfertige Variante des Modells Neunkhausen sollten Sie mit etwa 3.300 Euro pro Quadratmeter rechnen. Damit ordnet sich das Objekt im gehobenen Preissegment ein. Der Preis umfasst bereits die Bodenplatte und die gesetzliche Mehrwertsteuer. Gerne lassen wir Ihnen über unser Portal detaillierte Unterlagen zukommen, die alle enthaltenen Inklusivleistungen genau aufschlüsseln.
Das Haus besticht durch einen klassischen Satteldach-Stil, der durch einen dritten Giebel ergänzt wird. Dieser Zwerchgiebel sorgt im Dachgeschoss für deutlich mehr Stehfläche und einen hellen Lichteinfall in den Kinderzimmern. Ein besonderes Highlight ist zudem der Balkon, der von beiden Kinderzimmern aus zugänglich ist und den Wohnkomfort im Obergeschoss spürbar steigert.
Auf 133 Quadratmetern bietet das Haus ein durchdachtes Konzept für Familien. Das Erdgeschoss fokussiert sich auf das gemeinsame Wohnen mit offenem Essbereich und einem separaten Büro für das Homeoffice. Im Dachgeschoss befinden sich die privaten Rückzugsorte: zwei Kinderzimmer, das Elternschlafzimmer sowie ein großzügiges Familienbad. Die Aufteilung trennt Wohn- und Schlafbereiche somit ideal voneinander.
Fingerhut Haus setzt beim Modell Neunkhausen auf eine ökologische Holzfertigbauweise. Es werden ausschließlich geprüfte, heimische Hölzer sowie Dämmstoffe ohne chemische Bindemittel verwendet. Dank verschiedener Energieeffizienz-Standards, wie dem Effizienzhaus 40, profitieren Sie von einem exzellenten Raumklima und niedrigen Energiekosten. Wir unterstützen Sie dabei, die passende energetische Ausstattung für Ihre Bedürfnisse zu wählen.
Über den Anbieter Fingerhut Haus
Zum Anbieterprofil
Bewertungen
4,2
(101)

Bewertungen
4,2
101 BewertungenHervorragend
Fingerhut Haus in Zahlen
Gründungsjahr
1903
Häuser im Angebot
100
Mitarbeiter
145
Bewertungen von Fingerhut Haus
Der erste Kontakt mit dem Berater scheint ok ...
Der erste Kontakt mit dem Berater scheint ok zu sein.
01 Mai 2026Dr. Michael N.
Tolle Qualität, Transparenz. Werden jedoch d...
Tolle Qualität, Transparenz. Werden jedoch das alte Haus nicht abreißen lassen sondern Sanieren. Das spart viel Geld.
15 März 2026Martina W.
Sehr nette und kompetente Beratung.
Sehr nette und kompetente Beratung.
01 Feb. 2026Torsten D.
Leistungsspektrum
Finanzierungsberatung
Preisgarantie
Bauzeit Garantie
Individuelle Planung
Blower Door Test
Persönliche Beratung für Ihre individuellen Wünsche
Finden Sie jetzt Ihren Ansprechpartner
Fingerhut Haus
Ähnliche Häuser Für Neunkhausen