Calvus 633 von Heinz von Heiden Zentrale
Ab 345.267 €

Bewertungen von Heinz von Heiden Zentrale
4,1
(503)
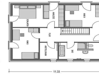
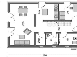
Grundriss für Calvus 633
Außenmaße
Länge: 11,33 m
Breite: 9,08 m
Grundrisse
Der Grundriss entspricht nicht Ihren Vorstellungen?
Passen Sie den Grundriss an Ihre persönlichen Bedürfnisse an und besprechen Sie Ihren individuellen Plan mit einem Bauberater des Anbieters.
Merkmale
Energiestandard und Förderung
Energiestandard
Effizienzhaus 55
Effizienzhaus 40 Plus
Ein Effizienzhaus 40 Plus verbraucht im Vergleich zum Referenzhaus 100 > 60 % weniger Energie. Sie müssen für den Hausbau mit Mehrkosten von ~ 13,5 % rechnen, die sich aber mittelfristig auszahlen. Es verfügt im Vergleich zum Effizienzhaus 40 über weitere Komponenten, wie beispielsweise eine Lüftungsanlage mit Wärmerückgewinnung, eine Anlage, mit der auf Basis erneuerbarer Energien Strom erzeugt werden kann und ein Batteriespeichersystem, mit dem überschüssige Energie eingespart werden kann.
Effizienzhaus 40
Seit dem 1. Juli 2010 gibt es neben dem Effizienzhaus 55 und dem Effizienzhaus 70 noch das Effizienzhaus 40. Das Effizienzhaus 40 darf nur 40 Prozent der nach Energieeinsparverordnung 2009 (EnEV) gültigen Höchstwerte hinsichtlich Jahres-Primärenergiebedarf und Transmissionswärmeverlust erreichen. Neben der Einsparung von 60 Prozent beim Jahres-Primärenergiebedarfs sind auch beim Transmissionswärmeverlust 45 Prozent einzusparen. Der maximale Jahresprimärenergiebedarf beträgt 30 kWh/m². Ein KfW-Effizienzhaus 40 Haus ist luftdicht und nutzt regenerative Energien, häufig eine Kombination aus Holzpellets, Solaranlage und Lüftungsanlage mit Wärmerückgewinnung.
Effizienzhaus 55
Ein Effizienzhaus 55 verbraucht im Vergleich zum Referenzhaus 100 45 % weniger Energie. Sie müssen für den Hausbau mit Mehrkosten von ~ 7,5 % rechnen, die sich aber mittelfristig auszahlen. Diese Effizienzklasse gilt heutzutage als Standard für alle neu gebauten Häuser.
Dach
Dachform
Satteldach
Dachneigung
25°
Satteldach
Das Satteldach liegt in Form eines Dreiecks auf dem Baukörper und schließt entweder mit seinem First parallel zu den beiden Giebeln ab oder es ragt noch über die Giebel hinaus. Satteldächer werden als Pfettendach oder als Sparrendach ausgebildet. Üblich sind Dachneigungen ab etwa 30˚ (flaches Satteldach) bis über 60˚ (altdeutsches Dach). Weit verbreitet sind Satteldächer mit etwa 38˚ bis 45˚ Neigung. Diese bieten genug Raum für einen Ausbau des Dachgeschosses.
Zeltdach
Seltene Dachform, die nur auf einem quadratischen oder annähernd quadratischen Grundriß errichtet werden kann. Zelt- oder Pyramidendächer findet man vor allem auf Türmen und Kirchtürmen.
Walmdach
Sehr häufig zu sehende Dachform, dem Satteldach verwandt. Im Gegensatz zu diesem schließt der First jedoch nicht mit den beiden Giebelwänden ab, sondern ist beidseitig zurückgebaut, das heißt abgeschrägt sind. Dabei unterscheidet man noch Zwergwalmdach, Krüppelwalmdach und Fußwalmdach. Da bei diesen Varianten nicht die komplette Seite abgewalmt ist, spricht man auch häufig von Vollwalmdach, wenn der Walm so ausgebildet ist, wie auf der Zeichnung. Weitere Bezeichnungen für Walmdach sind Walbendach, Holländisches Dach, Schopfdach oder Haubendach.
Krüppelwalmdach
Besonders auf nord- und niederdeutschen Gehöften gebräuchliche Variante des Walmdachs. Entspricht einem Walmdach mit hochgesetzter Traufhöhe am Giebel. In manchen Gegenden wird es auch als Schopfwalmdach bezeichnet.
Flachdach
Flachdächer sind allgegenwärtig und dominieren im Gewerbebau, im Bereich des privaten Hausbaus werden sie - mit stark abnehmender Tendenz - bei Bungalows angelegt und natürlich bei Garagen und Carports. Bei Flachdächern erfolgt keine Dacheindeckung mit Dachpfannen, vielmehr wird die Dachfläche mit Dachbahnen oder mit Metallblechen regenfest gemacht. Konstruktiv wird beim Flachdach unterschieden zwischen Kaltdach, Warmdach und Umkehrdach. Mit Dachbahnen abgedichtete Flachdächer werden auch heute noch, wenn auch mit stark abnehmender Tendenz, mit Rollkies belegt. Stark steigend, bei Gewerbebauten jedoch oftmals auch baubehördlich vorgeschrieben, ist die Anlage einer Dachbegrünung. Dadurch wird das Flachdach zum Gründach. Gründächer sind eine sinnvolle Alternative gegen die zunehmende Verdichtung des Bodens. Flachdächer sind im übrigen keineswegs eben, sie müssen ein Gefälle von mindestens 3 % aufweisen, damit das Regenwasser über den Dachgully oder die Dachrinnen abfließen kann.
Pultdach
Gefälledach, das wie ein Pultdeckel auf dem Baukörper liegt. Das Pultdach ist die einfachste Dachform überhaupt. Mit nur einen schrägen Dachfläche ist es kostengünstig herzustellen. Im Mittelmeerraum ist das Pultdach die häufigste Dachform. Seit einiger Zeit erfreut es sich auch hierzulande zunehmender Beliebtheit. Die Dachfläche von Pultdächern liegt meist zur Wetterseite hin, um Wind, Regen und Schnee abzuschirmen. An der Sonnenseite lässt das Haus Raum für große Lichtflächen.
Preisdetails für Calvus 633
Schlüsselfertig ab
345.267 €
ab 1.039,40 €
Dieser Preis ist ein Beispiel für den Anfang, ein Berater kann Ihnen ein detailliertes Angebot erstellen, das Ihren Bedürfnissen entspricht.
Möchten Sie bei Ihrem Projekt Geld sparen?
Durch einen Angebotsvergleich mit Fertighaus.de können Sie bis zu 20 % Ihrer Baukosten sparen.
Calvus 633 - Hilfreiche Fragen & Antworten
Der Quadratmeterpreis für das schlüsselfertige Calvus 633 liegt bei rund 2.200 Euro. Damit zählt dieses Massivhaus zum sehr günstigen Preissegment auf unserer Plattform. Bitte beachten Sie, dass die Kosten je nach gewünschter Ausstattung variieren können. Über uns können Sie jederzeit detaillierte Informationen anfordern, um eine präzise Kalkulation für Ihr individuelles Traumhaus in den Händen zu halten.
Das Calvus 633 ist ein klassisches Einfamilienhaus mit zwei Vollgeschossen und einem Satteldach bei 25 Grad Neigung. Besonders hervorzuheben ist die offene Grundrissgestaltung, die bereits im Eingangsbereich eine Sichtachse bis in den Garten ermöglicht. Sie haben zudem die Wahl zwischen einer modernen Putzfassade oder klassischen Verblendern, um das äußere Erscheinungsbild ganz nach Ihren persönlichen Wünschen zu gestalten.
Für dieses Haus mit einer Grundfläche von etwa 103 m² empfehlen wir eine Grundstücksfläche ab circa 450 m². Diese Kalkulation beinhaltet bereits rund 50 m² für Stellplätze sowie eine Gartenfläche von etwa 300 m². So stellen wir sicher, dass Sie neben dem Baukörper ausreichend Freiraum für Erholung genießen und alle notwendigen Grenzabstände auf Ihrem Grundstück problemlos einhalten können.
Ja, bei diesem Modell profitieren Sie von einer 15-monatigen Festpreisgarantie durch den erfahrenen Massivhausanbieter. Dies bietet Ihnen eine verlässliche Kalkulationsbasis ohne finanzielle Überraschungen während der Bauzeit. Wir schätzen zudem die besondere Sicherheit, die durch die Option der Zahlung erst bei Hausübergabe geboten wird. Dies unterstreicht die finanzielle Stärke des Unternehmens und entlastet Ihr Baubudget bis zum Einzug spürbar.
Über den Anbieter Heinz von Heiden Zentrale
Zum Anbieterprofil
Bewertungen
4,1
(503)

Bewertungen
4,1
503 BewertungenGut
Heinz von Heiden Zentrale in Zahlen
Gründungsjahr
1931
Häuser im Angebot
54
Häuser pro Jahr
1400
Häuser gesamt
> 53.000
Mitarbeiter
350
Bewertungen von Heinz von Heiden Zentrale
Sehr freundlich-Positiver Erstkontakt
Bisher nur telefonischer Kontakt
05 März 2026Andreas K.
Gutes Preis Leistungsverhältnis.
Wir haben schon ein Haus mit Heinz von Heisen gebaut und waren zufrieden. Preis und Leistung haben gestimmt.
20 Feb. 2026Michael F.
Ich habe ein sehr informatives Beratungsgespr...
Ich habe ein sehr informatives Beratungsgespräch mit Herrn Schönig führen dürfen und wir sind die Möglichkeiten der Bebauung für ein potentielles Grundstück durchgegangen. Nächste Schritte wurden besprochen. Alles in allem bin ich sehr zufrieden mit der kompetenten Beratung.
18 Jan. 2026Torsten D.
Leistungsspektrum
Preisgarantie
Bauzeit Garantie
Individuelle Planung
Blower Door Test
Persönliche Beratung für Ihre individuellen Wünsche
Finden Sie jetzt Ihren Ansprechpartner
Heinz von Heiden Zentrale
Auszeichnungen, Zertifikate & Mitgliedschaften
Weitere Häuser
Ähnliche Häuser Für Calvus 633








