Musterhaus Berlin-Mahlsdorf - SH 155 S VAR. B von ScanHaus Marlow
Preis auf Anfrage

Bewertungen von ScanHaus Marlow
4,2
(105)
Merkmale
Energiestandard und Förderung
Energiestandard
Effizienzhaus 55
Effizienzhaus 40 Plus
Ein Effizienzhaus 40 Plus verbraucht im Vergleich zum Referenzhaus 100 > 60 % weniger Energie. Sie müssen für den Hausbau mit Mehrkosten von ~ 13,5 % rechnen, die sich aber mittelfristig auszahlen. Es verfügt im Vergleich zum Effizienzhaus 40 über weitere Komponenten, wie beispielsweise eine Lüftungsanlage mit Wärmerückgewinnung, eine Anlage, mit der auf Basis erneuerbarer Energien Strom erzeugt werden kann und ein Batteriespeichersystem, mit dem überschüssige Energie eingespart werden kann.
Effizienzhaus 40
Seit dem 1. Juli 2010 gibt es neben dem Effizienzhaus 55 und dem Effizienzhaus 70 noch das Effizienzhaus 40. Das Effizienzhaus 40 darf nur 40 Prozent der nach Energieeinsparverordnung 2009 (EnEV) gültigen Höchstwerte hinsichtlich Jahres-Primärenergiebedarf und Transmissionswärmeverlust erreichen. Neben der Einsparung von 60 Prozent beim Jahres-Primärenergiebedarfs sind auch beim Transmissionswärmeverlust 45 Prozent einzusparen. Der maximale Jahresprimärenergiebedarf beträgt 30 kWh/m². Ein KfW-Effizienzhaus 40 Haus ist luftdicht und nutzt regenerative Energien, häufig eine Kombination aus Holzpellets, Solaranlage und Lüftungsanlage mit Wärmerückgewinnung.
Effizienzhaus 55
Ein Effizienzhaus 55 verbraucht im Vergleich zum Referenzhaus 100 45 % weniger Energie. Sie müssen für den Hausbau mit Mehrkosten von ~ 7,5 % rechnen, die sich aber mittelfristig auszahlen. Diese Effizienzklasse gilt heutzutage als Standard für alle neu gebauten Häuser.
Preisdetails für Musterhaus Berlin-Mahlsdorf - SH 155 S VAR. B
Schlüsselfertig ab
Preis auf Anfrage
Dieser Preis ist ein Beispiel für den Anfang, ein Berater kann Ihnen ein detailliertes Angebot erstellen, das Ihren Bedürfnissen entspricht.
Möchten Sie bei Ihrem Projekt Geld sparen?
Durch einen Angebotsvergleich mit Fertighaus.de können Sie bis zu 20 % Ihrer Baukosten sparen.
Musterhaus Berlin-Mahlsdorf - SH 155 S VAR. B - Hilfreiche Fragen & Antworten
Da der Preis für das SH 155 S individuell auf Anfrage erfolgt, können wir keinen exakten Quadratmeterpreis nennen. Üblicherweise liegen schlüsselfertige Stadtvillen dieser Größe im mittleren Preissegment. Ein großer Vorteil bei ScanHaus Marlow ist die 18-monatige Festpreisgarantie. Fordern Sie gerne über uns ein individuelles Angebot an, um detaillierte Kosten für Ihr Bauvorhaben zu erhalten.
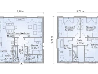
Bei diesem Modell handelt es sich um eine klassische Stadtvilla mit zwei Vollgeschossen. Dieser Baustil bietet Ihnen maximalen Wohnkomfort ohne Dachschrägen im Obergeschoss. Die Architektur wirkt modern und zeitlos zugleich. Wir beraten Sie gerne zu individuellen Gestaltungsmöglichkeiten wie Erkern oder Gauben, um das Haus perfekt an Ihre persönlichen Vorstellungen und ästhetischen Wünsche anzupassen.
Für dieses Einfamilienhaus mit 151 m² Wohnfläche empfehlen wir eine Grundstücksgröße von mindestens 400 m². Wir kalkulieren dabei rund 50 m² für Stellplätze und etwa 260 m² für Gartenflächen ein. So bleibt ausreichend Platz für Erholung im Freien, während das Gebäude harmonisch auf dem Land platziert wird. Gerne unterstützen wir Sie bei der weiteren Planung der Außenanlagen.
ScanHaus Marlow bietet Ihnen Sicherheit durch das Prinzip „Erst bauen, dann zahlen“. Sie begleichen die Gesamtsumme erst nach der schlüsselfertigen Übergabe Ihres Heims. Es sind keine Abschlags- oder Teilzahlungen während der Bauphase nötig. Dieses Modell sorgt für maximale finanzielle Planungssicherheit und schont Ihr Budget bis zum tatsächlichen Einzug. Wir finden dieses Angebot für angehende Bauherren sehr vorteilhaft.
Über den Anbieter ScanHaus Marlow
Zum Anbieterprofil
Bewertungen
4,2
(105)

Bewertungen
4,2
105 BewertungenHervorragend
ScanHaus Marlow in Zahlen
Gründungsjahr
1992
Häuser im Angebot
43
Häuser pro Jahr
ca. 650
Mitarbeiter
ca. 500
Bewertungen von ScanHaus Marlow
Wir bauen.
Alles gut
17 Jan. 2026Andreas J.
War sehr freundlich
War sehr freundlich
19 Dez. 2025Horst E.
Sehr nettes Telefonat. Sehr gute Beratung im ...
Sehr nettes Telefonat. Sehr gute Beratung im Musterhaus Potsdam. Sehr gute Unterlagen für eine Voranfrage mit dem Bauamt. Leider lässt der Bebauungsplan es nicht zu und es gibt auch keine Ausnahmen, schade der Traum ist geplatzt.
18 Nov. 2023Martina B.
Leistungsspektrum
Finanzierungsberatung
Preisgarantie
Bauzeit Garantie
Individuelle Planung
Blower Door Test
Persönliche Beratung für Ihre individuellen Wünsche
Finden Sie jetzt Ihren Ansprechpartner
ScanHaus Marlow
Auszeichnungen, Zertifikate & Mitgliedschaften
Ähnliche Häuser Für Musterhaus Berlin-Mahlsdorf - SH 155 S VAR. B








