






Musterhaus Neubrandenburg von ScanHaus Marlow
Preis auf Anfrage
Bewertungen von ScanHaus Marlow
4,2
(105)
Wohnfläche
134 m²
Ausbaustufe
Schlüsselfertig
Bauweise
Fertighaus
Energiestandard
Effizienzhaus 55
Hausart
Einfamilienhaus
Beschreibung
In Neubrandenburg haben Sie die Möglichkeit unseren 1,5-Geschosser den SH 136 zu besichtigen.
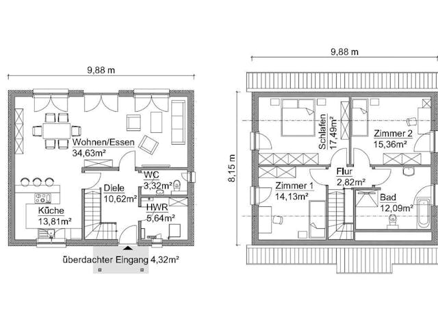
Das SH 136 punktet insbesondere durch seine vielen bodentiefen Fensterelemente, welche den offenen Koch-, Ess- und Wohnbereich hell und freundlich gestalten. Ein Schlafzimmer, zwei weitere Zimmer, ein Vollbad, Gäste-WC und Hauswirtschaftsraum sowie ein überdachter Hauseingang vervollständigen den Grundriss.
Sie haben Interesse?
Laden Sie sich jetzt Ihr kostenloses Exposé zu diesem Haus herunter:
Merkmale
Energiestandard und Förderung
Energiestandard
Effizienzhaus 55
Preisdetailsfür Musterhaus Neubrandenburg
Schlüsselfertig ab
Preis auf Anfrage
Dieser Preis ist ein Beispiel für den Anfang, ein Berater kann Ihnen ein detailliertes Angebot erstellen, das Ihren Bedürfnissen entspricht.
Möchten Sie bei Ihrem Projekt Geld sparen?
Durch einen Angebotsvergleich mit Fertighaus.de können Sie bis zu 20 % Ihrer Baukosten sparen.
Musterhaus Neubrandenburg - Hilfreiche Fragen & Antworten
Da ScanHaus Marlow erst nach Fertigstellung die Zahlung verlangt, bietet das Modell SH 136 hohe Sicherheit. Der genaue Preis ist auf Anfrage verfügbar. Vergleichbare Häuser in dieser Größe liegen oft in einem attraktiven preislichen Rahmen. Wir unterstützen Sie gerne dabei, ein konkretes Angebot für Ihre individuellen Wünsche und die Region über uns einzuholen.
Dieses 1,5-geschossige Einfamilienhaus überzeugt durch seine moderne, lichtdurchflutete Gestaltung. Besonders die vielen bodentiefen Fensterelemente im offenen Wohn- und Essbereich schaffen eine freundliche Atmosphäre. Ein überdachter Hauseingang sorgt zudem für Komfort bei jedem Wetter. Wir finden, dass diese Kombination aus Funktionalität und Ästhetik ideal für moderne Familien ist, die viel Wert auf Helligkeit legen.
Das Haus nutzt seine Fläche von 134 m² äußerst effizient aus. Im Erdgeschoss befindet sich der großzügige Koch- und Wohnbereich sowie ein Gäste-WC und der Hauswirtschaftsraum. Das Dachgeschoss beherbergt ein Schlafzimmer, zwei weitere Zimmer und ein Vollbad. Wir beraten Sie gerne dazu, wie dieser Grundriss optimal auf Ihre persönlichen Bedürfnisse und Ihre spezifische Lebenssituation angepasst werden kann.
Bei diesem Anbieter profitieren Sie vom Prinzip „Erst bauen, dann zahlen“. Das bedeutet für Sie maximale Sicherheit, da Sie die Gesamtsumme erst nach der Fertigstellung begleichen. Zudem gewährt das Unternehmen eine 18-monatige Festpreisgarantie ab Vertragsunterzeichnung. Wir schätzen diese Transparenz sehr, da sie Ihnen eine verlässliche Planung ohne finanzielle Risiken während der gesamten Bauphase ermöglicht.
Über den Anbieter ScanHaus Marlow
Zum Anbieterprofil
Bewertungen
4,2
(105)

Bewertungen
4,2
105 BewertungenHervorragend
ScanHaus Marlow in Zahlen
Gründungsjahr
1992
Häuser im Angebot
43
Häuser pro Jahr
ca. 650
Mitarbeiter
ca. 500
Bewertungen von ScanHaus Marlow
Wir bauen.
Alles gut
17 Jan. 2026Andreas J.
War sehr freundlich
War sehr freundlich
19 Dez. 2025Horst E.
Sehr nettes Telefonat. Sehr gute Beratung im ...
Sehr nettes Telefonat. Sehr gute Beratung im Musterhaus Potsdam. Sehr gute Unterlagen für eine Voranfrage mit dem Bauamt. Leider lässt der Bebauungsplan es nicht zu und es gibt auch keine Ausnahmen, schade der Traum ist geplatzt.
18 Nov. 2023Martina B.
Leistungsspektrum
Finanzierungsberatung
Preisgarantie
Bauzeit Garantie
Individuelle Planung
Blower Door Test
Persönliche Beratung für Ihre individuellen Wünsche
Finden Sie jetzt Ihren Ansprechpartner
ScanHaus Marlow
Auszeichnungen, Zertifikate & Mitgliedschaften




Ähnliche Häuser Für Musterhaus Neubrandenburg