
Modernes Haus: Grundriss & Planung

Worauf kommt es an, wenn Sie für moderne Häuser Grundrisse zeichnen oder vom Experten entwickeln lassen? Fakt ist, dass ein modernes Haus über Grundrisse verfügt, die offen sind und viel Tageslicht in jeden Raum lassen. Vor allem im Bezug auf die Küche, den Essbereich und das Wohnzimmer unterscheiden sich die Flächenpläne zwischen einem konventionellen und einem modernen Haus.

Das sollten Sie wissen
Das zeichnet einen modernen Grundriss eines Hauses aus
Grundrisse, die modern und zeitgemäß geplant werden, sind frei von unnötigen Türen und die Grundfläche einschränkenden Wänden. Hinzu kommt die familientaugliche Planung, die bestenfalls mit barrierefreien Übergängen geplant wird. Die Vermeidung von Nischen und Schrägen ist ebenfalls ein Merkmal für moderne Grundrisse. Das Konzept beruht auf einer Fläche, die voll nutzbar und frei von vermeidbaren Einschränkungen ist.
Sehr wichtig ist der offene Wohn-Essbereich mit direktem Übergang in die große Familienküche. Ein modernes Haus hat Grundrisse, die für Offenheit und das gemeinschaftliche Gefühl sowie für die Privatsphäre aller Bewohner stehen.
- In eingeschossigen Immobilien gibt es auf der Ebene einige Türen, die das jeweilige Schlafzimmer mit eigenem Bad von den Gemeinschaftsräumen abtrennen und die bestenfalls alle über den Flur erreichbar sind.
- Im zweigeschossige Haus, für das Sie einen modernen Grundriss planen, können Sie die Schlafräume mit Bädern in der oberen Etage einplanen. Große Fensterfronten und Lichteinlässe im Dach runden das Konzept für ein Haus, dessen Grundrisse modern sind, ab.
Im Endeffekt können Sie Ihrer eigenen Phantasie viel Raum geben, wenn Sie für Ihr modernes Haus den Grundriss planen und überlegen, worauf Sie und Ihre Familie besonderen Wert legen. Es gibt wenige Konventionen, dafür eine ganze Menge Individualität und die Möglichkeit, eigene Ideen in Präzision umzusetzen.
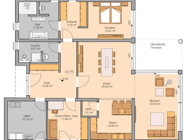
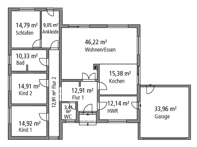
Moderne Grundrisse: Bungalow
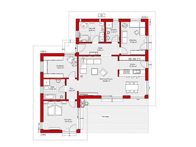
Moderne Grundrisse: Einfamilienhaus
Was sollte ich bei einem modernen Haus-Grundriss beachten?
Ehe Sie für ein modernes Haus die Grundrisse planen, sollten Sie den örtlichen Bebauungsplan genauestens studieren. Wie können Sie das Haus errichten, ohne dass Sie auf eine Terrasse auf der Südseite und Schlafzimmer, die sich bestenfalls im Norden befinden, verzichten? Bedenken Sie auch, dass Sie bei einem offenen Grundriss einen adäquaten Abzug in der Küche benötigen und vermeiden sollten, dass die Kochdämpfe über das Esszimmer in den Wohnbereich ziehen. Fakt ist, dass moderne Häuser über Grundrisse verfügen, die funktional und flexibel geplant werden. Ihre Familiensituation ändert sich? Dann passt sich Ihr Haus der neuen Situation an - nicht umgekehrt. Wenn Sie über keine oder nur wenig Erfahrung verfügen, sollten Sie Ihr modernes Haus im Grundriss von einem Experten planen und auf Papier bringen lassen.
Besonderheiten von Haus-Grundrissen in moderner Ausführung
Das Hauptaugenmerk beim modernen Wohnen richtet sich auf das Tageslicht. Große Fenster und Glasfronten machen einen wichtigen Bestandteil der Fassade aus und entscheiden darüber, wie wohl Sie sich in Ihrem neuen Zuhause fühlen. Wenig Stauräume, kurze Lauf- und Leitungswege sowie die präzise Ausarbeitung jedes einzelnen Raumes macht den Unterschied. Während ältere Häuser im Grundriss oftmals für das heutige Familienleben unpraktisch sind, können Sie für moderne Häuser Grundrisse so planen, dass sich Ihre Immobilie an Ihren Bedürfnissen orientiert. Wichtig ist die harmonische Übereinstimmung zwischen gemeinschaftlichen Räumen und Privatsphäre. Auch im offenen Wohnkonzept dürfen Sie nicht vergessen, wie wichtig gerade für Ihre Kinder und auch für Sie als Eltern ein separater, nur Ihnen gehörender Bereich mit einer verschließbaren Tür ist.
Anbieter mit innovativem Grundriss fürs moderne Haus
Weitere Links zum Thema Grundrisse































