
Bungalow mit Einliegerwohnung

Welche Baufirmen bieten Bungalows mit Einliegerwohnung (kurz: ELW) an? Was sollte man bei der Grundrissplanung berücksichtigen? Und worauf ist bei einer Vermietung der ELW zu achten? Auf dieser Seite klären wir Sie zu den wichtigsten Vorkehrungen auf und stellen Ihnen clever geplante Bungalows mit Einliegerwohnung vor.
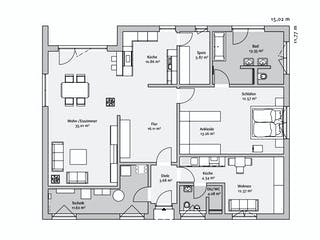
Unter einem Bungalow mit Einliegerwohnung versteht man heute eine vollständige, separate Wohnung innerhalb eines eingeschossigen Einfamilienhauses. Vollständig bedeutet mit allen notwendigen Anschlüssen wie Strom, Gas und Wasser, fest installierter Kochmöglichkeit sowie eigenem Badezimmer. Die Wohnung ist also innerhalb des Bungalows in sich abgeschlossen. Der Vorteil: Die Privatsphäre wird für alle Parteien gewahrt, gleichzeitig ist räumliche Nähe gegeben.

Wie gestaltet man einen Grundriss für einen Bungalow mit Einliegerwohnung?
Wenn Sie den Grundriss für Ihren Bungalow mit Einliegerwohnung planen, sollten zunächst die folgenden Voraussetzungen erfüllt sein:
- Strikte Abgrenzung der ELW von der Hauptwohnung
- Separates Bad und eigene Küche in der ELW
- Erhöhter Schallschutz zwischen den Wohnungen
Da die Einliegerwohnung die Funktion einer untergeordneten Wohnung hat, ist ein direkt nutzbarer Wohnungszugang vom Freien aus nicht vorgeschrieben. Oft erfolgt der Zugang zur Einliegerwohnung von einem gemeinsamen Windfang oder dem Flur der Hauptwohnung. Nichtsdestotrotz ist ein separater Hauseingang für die Einliegerwohnung empfehlenswert, um die Privatsphäre zu erhöhen.
Die Nähe zum Garten sowie die Integration der Terrasse in den erweiterten Wohnraum machen den Bungalow für alle Generationen in der Familie reizvoll. Daher sollte die Terrasse auch von beiden Wohneinheiten direkt erreichbar sein.
Bungalow mit Einliegerwohnung Grundriss-Inspirationen
2-Generationen Bungalow: praktisch zu jeder Zeit
Bei der Planung Ihres Bungalows sollten Sie in Erwägung ziehen, eine Einliegerwohnung zu realisieren. Die zusätzlichen Kosten dafür sind vergleichsweise gering. Der Bungalow mit einer zusätzlichen Wohneinheit kann sich auszahlen - in mehrfacher Hinsicht.
Ein Fertighaus Bungalow mit Einliegerwohnung ist bestens geeignet um zwei Generationen auf einer Ebene unterzubringen. Dabei gibt es zwei mögliche Varianten:
- ELW für die junge Generation: Sind die Kinder schon herangewachsen, aber noch nicht ausgezogen, so haben sie in der Einliegerwohnung ihre eigene Privatsphäre. Damit ist es ihnen möglich, langsam unabhängig von den Eltern zu werden ohne das Haus der Eltern ganz zu verlassen.
- ELW für die ältere Generation: Der Bungalow ist eingeschossig, eine barrierefreie Ausführung ist problemlos möglich und besonders geeignet für Senioren und körperlich eingeschränkte Personen.
Spezielle Bauformen von Winkelbungalows minimieren die Anzahl von aneinandergrenzenden Räumen. So ist sichergestellt, dass Jung und Alt nahe beieinander wohnen können, ohne sich gegenseitig zu stören.
Eine Einliegerwohnung bietet sich ebenso für ein Au-pair-Mädchen oder für Pflegepersonal an. Die Betreuung für Kinder oder Pflegebedürftige ist so immer in unmittelbarer Nähe und kann bei Bedarf sofort helfen.
Bungalow mit Einliegerwohnung vermieten: Worauf ist zu achten?
Falls Sie ein separates Bad und eine eigene Küche einbauen, ist eine Vermietung der Einliegerwohnung möglich. Die Mieteinnahmen können Sie dabei zur Finanzierung Ihres Hausbaus nutzen. Vor einer Vermietung sollten Sie jedoch klären, ob Ihr Bungalow aufgrund der Einliegerwohnung zum Zweifamilienhaus wird oder nicht. Steuerrechtlich ist diese Unterscheidung wichtig. Für Einliegerwohnungen können Herstellung und Unterhaltskosten gegebenenfalls abgesetzt werden.
Sie sollten auch beachten, dass sich die Grundsteuerwert ändert, falls die Einliegerwohnung als Zu- oder Anbau realisiert wird. Die Nutzung als Ferienwohnung ist denkbar, falls Sie in einer touristisch attraktiven Region wohnen.




























