
Kleines Fertighaus bauen

Auch bei überschaubarem Budget rückt der Traum von den eigenen vier Wänden in greifbare Nähe, wenn Sie sich für kleine Fertighäuser entscheiden. Doch wie viel kostet ein kleines Fertighaus? Wie viel Grundstücksfläche genügt bei einem Fertighaus in kleiner Ausführung? Und wie nutzt man den knappen Wohnraum bestmöglich aus?
Erfahren Sie alles, was Sie vor dem Bau eines kleinen Fertighauses wissen sollten. Wir unterstützen Sie außerdem dabei, einen geeigneten Anbieter zu finden. Dank unserer Haussuche können Sie durch sämtliche kleinen Fertighäuser stöbern, bis Sie Ihr Lieblingsobjekt gefunden haben.

Kleine Fertighäuser: Preise & Kosten
Bei einem kleinen Fertighaus sind Kosten und Preise nicht pauschal definierbar. Denn bei einem Fertighaus – ob klein oder geräumig – hängt der Preis immer von der Hausgröße und der Ausstattung ab, aber vor allem auch von der Ausbaustufe und Energieeffizienz. Am kostspieligsten ist dabei die schlüsselfertige Variante, da Sie hierbei auch den geringsten Aufwand haben.
Ganz allgemein liegt im mittleren Qualitätsbereich der durchschnittliche Quadratmeterpreis für ein kleines Fertighaus in schlüsselfertiger Ausführung zwischen 2.500 und 3.000 Euro. Bauen Sie also beispielsweise ein entsprechendes Fertighaus mit 80 qm, sind Hauspreise zwischen 200.000 und 240.000 Euro zu erwarten.
Kostengünstiger wird es mit einem Ausbau- oder Bausatzhaus. Für entsprechende kleine Fertighäuser beginnen Preise teilweise schon bei 1.800 Euro beziehungsweise bei 1.100 Euro den Quadratmeter, hinzurechnen müssen Sie allerdings noch zum Beispiel bestimmte Technik- und Materialkosten, und natürlich Ihre eigene, nicht zu unterschätzende Arbeitszeit.
Generell beziffern Quadratmeterpreise normalerweise bloß das Bauwerk oberhalb der Bodenplatte. Deshalb sollten Sie Ausgaben für Keller oder Fundament, die Baunebenkosten, den Kaufpreis für das Grundstück und Ähnliches mit kalkulieren.
Kleines Fertighaus bis 100.000 €: Ist das möglich?
Seriöse Angebote für ein kleines Fertighaus bis 100.000 Euro ab Oberkante Bodenplatte beschränken sich bei schlüsselfertiger Übergabe auf den Bereich von Tiny Houses und Minihäusern mit im Durchschnitt etwa 40 qm Wohnfläche. Führen Sie den Innenausbau eines entsprechenden Ausbauhauses selbst durch, dann finden sich in diesem Preisrahmen beispielsweise schon Bungalows als kleine Fertighäuser mit rund 80 qm.
Für ausführlichere Informationen zum Thema, was ein Fertighaus mit kleiner, mittlerer oder ausgedehnter Wohnfläche kostet, besuchen Sie die folgenden Seiten.
Was kostet ein kleines Fertighaus aus Holz? Beispielrechnung
Um Ihnen alle Baukosten und Preise für kleine Fertigholzhäuser beispielhaft darzulegen, ziehen wir als Grundlage ein eingeschossiges kleines Fertighaus aus Holz mit 80 qm und einem schlüsselfertigen Preis in der preiswerten Standardausführung des Anbieters von 2.300 Euro pro Quadratmeter heran. Für das 480 qm große Baugrundstück, angenommen in Rheinland-Pfalz, setzen wir den vom Statistischen Bundesamt für das letzte Jahr mitgeteilten Durchschnittswert für baureifes Wohnbauland an (179 Euro pro qm). Zusätzlich berechnen wir einen Wohnkeller mit bodentiefen Fenstern zu einer Seite hin dank Hanglage, zu 1.800 Euro pro Quadratmeter.
| KOSTENFAKTOR | PREIS |
|---|---|
| Kleines Fertighaus: Preis | 184.000 Euro |
| Grundstück | 85.920 Euro |
| Keller | 144.000 Euro |
| Außenanlage | 18.400 Euro |
| Baunebenkosten | 36.800 Euro |
| Sonstiges | 10.000 Euro |
| = Kosten kleines Fertighaus aus Holz gesamt: | 479.120 Euro |
Kleines Fertighaus schlüsselfertig: Was muss ich beachten?
Ein kleines Fertighaus in schlüsselfertiger Ausführung repräsentiert den bequemsten Weg in Ihr zukünftiges heimeliges Zuhause, da Sie bei dieser Ausbaustufe in den Genuss eines umfassenden Full-Service seitens des Hausherstellers kommen. So profitieren Sie von besonderer Planungssicherheit, was bei Ihrem kleinen Fertighaus die Kosten und die Bauzeit betrifft. Denn Ihr Baupartner kümmert sich von bürokratischen Aufgaben wie dem Bauantrag bis zur Überwachung und Koordination aller Arbeiten am Bau um alle anfallenden Aufgaben beim Hausbau.
Je nach den im Bauvertrag vereinbarten Leistungen wird Ihr kleines Fertighaus schlüsselfertig übergeben, das heißt, es fallen nur noch kleinere Innenausbauarbeiten wie das Streichen der Wände an, oder Sie erhalten Ihr neues Eigenheim sogar bezugsfertig.
Wie im vorigen Abschnitt erwähnt, ist die umfangreichste Ausbaustufe auch die kostenintensivste, was den reinen Hauspreis bei kleinen Fertighäusern angeht, erlaubt es Ihnen aber, Ihr Zuhause stressfrei und ohne kostspielige Verzögerungen zu beziehen.
Vergleichen Sie mindestens drei Angebote für ein kleines Fertighaus mit schlüsselfertigem Bau und achten Sie im Detail auf den offerierten Leistungskatalog. So finden Sie das kleine Fertighaus mit dem besten Preis-Leistungs-Verhältnis für Ihre Ansprüche.
Kleines Fertighaus schlüsselfertig: Alle Angebote
Fertighaus 50 qm schlüsselfertig
Kleines Fertighaus für 2 Personen und Singles
Kleine Fertighäuser liegen voll im Trend und präsentieren gerade für junge Paare oder Singles, die ihren ersten Hausstand gründen, eine spannende Option. Insbesondere bei schmalem Finanzvolumen stellen kleinste Fertighäuser – teilweise in der Größe von Tiny Houses – mit attraktivem Preis-Leistungsverhältnis und optimal genutztem Wohnraum die perfekte Lösung dar. So können sich selbst Alleinstehende den Traum von den eigenen vier Wänden verwirklichen. Ein kleines Fertighaus für 2 Personen beziehungsweise Paare ist ebenfalls die ideale Alternative zur Eigentumswohnung.
Ein kleines Fertighaus bedarf eines wohl durchdachten Grundrisses, damit die geringe Wohnfläche effizient verwendet wird. Es ist letztlich von Ihren persönlichen Vorstellungen und Wünschen abhängig, auf wie viel Wohnfläche Sie leben möchten. Bei minimalistischer Lebensweise reichen 30 Quadratmeter nicht nur für eine einzelne Person, sondern auch für Paare. Wir definieren alle Fertighäuser bis 100 qm als klein, sodass selbst für kleine Familien geeignete Objekte zu finden sind.
Vor- und Nachteile kleiner Fertighäuser
Kleine Fertighäuser erweisen sich nicht nur als sinnvolle Alternative für eine junge Zielgruppe. Auch für Menschen im mittleren bis hohen Alter bietet sich ein kleines Fertighaus an, beispielsweise wenn die Familienplanung abgeschlossen ist oder die Kinder erwachsen sind und eine eigene Wohnung haben. Denn dann wird die Fläche eines Einfamilienhauses meist nicht mehr benötigt, und ein kleines Fertighaus bedeutet zudem deutlich einfachere Pflege und Instandhaltung.
Weiterer Vorteil der kleinen Größe ist der geringe Platzbedarf für das Grundstück. So können Sie leichter und vermutlich auch preiswerter Bauland ausfindig machen.
Die Unterhalts- als auch die Verbrauchskosten bewegen sich ebenfalls im unteren Bereich, beispielsweise bei den Heizkosten – gute Dämmung allerdings vorausgesetzt.
Des Weiteren wollen wir die kurze Bauzeit als unschätzbaren Vorteil kleiner Fertighäuser nennen. Kleine Fertighäuser werden aus vorgefertigten Bauteilen erstellt – die Möglichkeit der Serienproduktion erklärt den schnellen Aufbau. Diese Module können in kürzester Zeit zusammengefügt werden. Die Umsetzung persönlicher Ideen und Wünsche ist bei kleinen Fertighäusern gegen einen Aufpreis problemlos möglich.
Der Nachteil bei einem Fertighaus mit kleiner Fläche besteht unter Umständen in der Notwendigkeit zur Umgewöhnung und Reduktion eigener Ansprüche. Haben Sie zuvor auf über 100 Quadratmetern Wohnfläche gelebt, müssen Sie sich erst an die neuen Wohnverhältnisse anpassen und gegebenenfalls einen minimalistischeren Lebensstil pflegen – eventuell gehört dazu, dass Sie sich zum Beispiel von liebgewonnener Einrichtung trennen. Ändern sich Ihre Wohnbedürfnisse unerwartet, wie etwa durch Nachwuchs, kann ein kleines Fertighaus sich ebenfalls als ungünstig entpuppen. Denn es lässt sich nur schwer flexibel umstrukturieren. Weiterer Nachteil ist, dass Sie mit weniger Stauraum auskommen müssen, es sei denn, Sie unterkellern Ihr kleines Fertighaus.
Vorteile
Niedrige Baukosten
Geringere Verbrauchskosten
Einfachere Grundstückssuche durch geringeren Platzbedarf
Leichter zu pflegen
Nachteile
Kaum anpassbar bei veränderten Wohnverhältnissen
Weniger Stauraum
Nicht für größere Haushalte geeignet
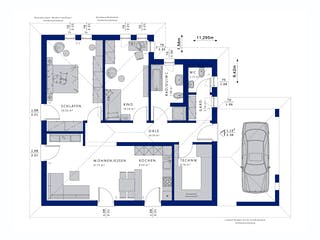
Grundrissgestaltung beim kleinen Fertighaus
Wenn nur ein kleines oder ungünstig geschnittenes Grundstück zur Verfügung steht, bieten sich kleinste Fertighäuser perfekt an, denn sie benötigen erstaunlich wenig Platz. Smarte Grundrisse in schmaler oder kompakter Form erreichen das Optimum selbst bei schwierigen Bauflächen und schaffen komfortablen Wohnraum. Einer der wichtigsten Ratschläge für die Gestaltung des Grundrisses für kleine Fertighäuser ist, diesen so einfach und offen wie möglich zu planen, da Sie so die vorhandene Wohnfläche optimal ausnutzen und den Eindruck von Weitläufigkeit schaffen.
Weitere Tipps: Die Wohnfläche weitestgehend minimieren können Sie, indem Sie zunächst alle Verkehrsflächen reduzieren. Verzichten Sie auf Flure und lassen Sie die Räume fließend ineinander übergehen. Halten Sie den Eingangsbereich so klein wie möglich und richten Sie deckenhohe Wandschränke für praktischen Stauraum ein. Diese eignen sich auch für Küchen, Wohnräume und als Kleiderschrank, um platzsparend und aufgeräumt Ihr Hab und Gut zu verstauen.
Fertighaus klein: Bewährte Grundrisse
Weitere Tipps und hilfreiche Ratschläge zur Planung kleiner Häuser finden Sie auf den folgenden Seiten.
Kleine Fertighäuser bis 80 qm
Kleine Fertighäuser bis 100 qm
Kleine Fertighäuser zum Selbstausbau
Beliebte Anbieter für kleine Fertighäuser
Alternativen zum kleinen Fertighaus
Fertighaus klein: Häufige Fragen




































































































































