
Fertighaus mit 100 qm Wohnfläche

Auch wenn es Sie erstaunen mag: selbst ein Fertighaus von 100 qm kann äußerst variabel gestaltet werden. Das beginnt bei der Gebäudeform, der Außenfassade und dem Dach und reicht bis zur Ausstattung. Zwar zählt ein Fertighaus bis 100 qm zu den kleineren Fertighäusern, aber sogar die hier recht überschaubare Wohnfläche können Sie durch einen cleveren Grundriss nach Belieben an Ihre Lebenssituation und persönlichen Anforderungen anpassen und planen.
Aber für wen kommt ein Fertighaus bis 100 qm in Betracht? Wie gestaltet man den Grundriss optimal? Was kostet ein Haus von 100 qm im Schnitt? Und welche Vorteile hat es, ein kleines Haus zu bauen und auf 100 qm Kosten zu sparen?

Für wen kommen kleine Fertighäuser bis 100 qm in Frage?
Ob Massiv-, Fertig- oder Modulhaus mit 100 qm Raum, ein Objekt dieser Größe bietet großzügigen Platz für Singles, angemessene Wohnfläche für Paare und ist auch für eine kleine Familie ausreichend.
Mit einem etwas minimalistischeren Wohnkonzept werden außerdem diejenigen glücklich, die ein kleines Haus bauen, aber nur bis 100 qm den Preis für das Eigenheim tragen möchten oder können. Gleiches gilt, wenn Sie bereits ein Baugrundstück besitzen, das sich aufgrund von Fläche oder Schnitt mit einem kompakteren Haus von 100 qm optimal ausnutzen lässt.
Auch der gewünschte Haustyp geht mit der Eignung eines Fertighauses von 100 qm Fläche als Ihr zukünftiges Zuhause einher: Interessieren Sie sich etwa für einen Bungalow oder ein Kubushaus, so können Sie sich die besonders flexible Raumaufteilung beziehungsweise das Plus an Platz durch ein Flachdach zunutze machen. Wie immer ist eine geschickte Grundrissplanung der Schlüssel zum Erfolg, auf die wir weiter unten genauer eingehen.

Seien Sie bestens informiert bei Ihrer Fertighauswahl! Fordern Sie Informationen von Baupartnern in Ihrer Nähe an, um bei der Entscheidung gut vorbereitet zu sein.
Kataloge anfordernWie viel kostet ein Fertighaus mit 100 qm?
Sie wollen ein kleines Haus bauen – Wie hoch sind bei 100 qm die Kosten? Individuelle Ausstattung und die gewählte Ausbaustufe spielen hierbei eine entscheidende Rolle, statistisch gesehen sollten Sie jedoch mit ungefähr 2.700 Euro pro Quadratmeter rechnen. Demnach ist für ein Fertighaus mit 100 qm Wohnfläche ein Preis von durchschnittlich rund 270.000 Euro anzusetzen, nach oben ist die Grenze selbstverständlich offen. Bauen Sie mit Eigenleistung, fällt der Quadratmeterpreis geringer aus. Ausbauhäuser beginnen bei ca. 1.800 Euro pro Quadratmeter und Bausatz-Fertighäuser in dieser Größe gibt es bereits ab ca. 1.100 Euro pro Quadratmeter.
Beachten Sie hierbei, dass diese Preisangaben sich nur auf den Gebäudeteil oberhalb der Bodenplatte beziehen. Bedenken Sie für Ihre Budgetkalkulation demnach auch zusätzliche Kosten für Grundstück, Bodenplatte oder Keller, Baunebenkosten, gegebenenfalls Materialkosten für Rohbau, Innenausstattung und Technik sowie weitere relevante preisliche Aspekte. Alle Kosten erläutern wir Ihnen genau in unserem Artikel zu den Preisen von Fertighäusern bis 100 qm und mehr.
Was kostet ein Fertighaus mit 100 qm?
Ein Fertighaus mit 100 qm kostet schlüsselfertig im preislichen Mittelfeld zwischen 2.500 und 3.000 Euro ab Oberkante Bodenplatte. Demzufolge stellen entsprechende Hauspreise zwischen 250.000 und 300.000 Euro einen praktikablen Orientierungswert dar.
Fertighaus bis 100 qm: Preis nach Wohnfläche
Modulhaus mit 100 qm
Was kostet ein Fertighaus schlüsselfertig mit 100 qm? Beispielrechnung
Bei unserer exemplarischen Budgetplanung gehen wir von einem durchschnittlichen 100 qm Fertighaus als schlüsselfertiges Einfamilienhaus zu 2.800 Euro pro qm mit Bodenplatte aus. Außerdem nehmen wir an, dass bei diesem Fertighaus die 100 qm auf 2 Etagen als Vollgeschosse verteilt sind. Dazu addieren wir die Kosten für ein kleines Grundstück mit 400 qm (aktueller Durchschnittskaufwert pro qm Bauland: 218 Euro laut Destatis).
| KOSTENFAKTOR | PREIS |
|---|---|
| Fertighaus 100 qm: Preis | 280.000 Euro |
| Grundstück | 87.200 Euro |
| Bodenplatte | 12.500 Euro |
| Außenanlage | 28.000 Euro |
| Baunebenkosten | 56.000 Euro |
| Sonstige Kosten | 10.000 Euro |
| = 100 qm Fertighaus: Kosten Gesamt | 473.700 Euro |
Fertighaus mit 100 qm schlüsselfertig oder in Eigenleistung bauen?
Dass sich in Abhängigkeit zur Ausbaustufe bei einem Massiv- oder Fertighaus bis 100 qm Kosten reduzieren lassen, haben wir ja bereits erwähnt. Je umfangreicher die von Ihnen erbrachte Eigenleistung, desto günstiger gestaltet sich auch bei einem Massiv- oder Fertighaus bis 100 qm der Preis, und desto geringer ist die Summe, die finanziert werden muss. Allerdings kommen natürlich noch vom jeweiligen Bauvertrag abhängige Kosten für Materialien und Technik hinzu, die Sie selbst übernehmen müssen. Das größte Sparpotential stellen die durch Ihren Einsatz und damit Ihre Zeit wegfallenden Lohnkosten dar.
Gerade Häuser mit einer eher kleinen Wohnfläche bis 100 qm bieten sich aufgrund der noch recht überschaubaren Projektgröße bei entsprechenden Praxiskenntnissen zum Mit- oder Selbstbau an:
- Beim Ausbauhaus schultern Sie je nach handwerklichem Geschick und zeitlichen Ressourcen alle nur denkbaren Stufen der Eigenleistungen beim Innenausbau, von der Installation einer Wärmepumpe bis hin zum Putz.
- Mit einem Bausatzhaus können Sie Ihre bauliche Kreativität noch mehr verwirklichen, da der gesamte Hausbau schon ab dem Rohbau in Eigenleistung erfolgt. Für Ihr Massiv- oder Fertighaus mit 100 qm Wohnfläche werden die Planung übernommen und in spezifischem Umfang Baustoffe für den Rohbau geliefert - auf Wunsch erhalten Sie aber weitere Unterstützung durch Ihren Baupartner.
Die schlüsselfertige Ausbaustufe repräsentiert die bequemste aber auch meist kostenintensivste Alternative für den Bau eines Hauses von 100 qm Größe. Hier nehmen Sie jedoch auch je nach vertraglicher Vereinbarung ein fast vollendetes oder sogar bezugsfertiges Haus vom Fertighausanbieter entgegen.
Fertighaus 100 qm schlüsselfertig: Alle Angebote
100 qm Fertighaus zum Selbstausbau
Kleines Haus bauen mit 100 qm: Preis als Bausatz
Was sind Vorteile eines Fertighauses mit 100 qm?
- Grundstück: Wie bereits angeklungen, können Sie mit einem Haus bis 100 qm den Grundstückspreis beträchtlich drücken, da Sie natürlich eine entsprechend geringere Fläche benötigen. Des Weiteren fallen bei einem kleineren Grundstück auch eine niedrigere Grundsteuer und Grunderwerbsteuer an.
- Hauspreis: Oben haben wir bereits für den Fall, dass Sie ein kleines Haus bauen, für 100 qm den Preis im Durchschnitt angegeben. Beim Bau von Wohnraum fällt jeder zusätzliche Quadratmeter ins Gewicht. Reduzieren Sie also die Wohnfläche Ihres Fertighauses auf 100 qm, schont das Ihr Budget im Vergleich zu einem nur wenige Quadratmeter größeren Neubau spürbar.
- Wohnnebenkosten: Sind Sie erst einmal in Ihr neues Zuhause eingezogen, können Sie bei einem Haus von 100 qm von wesentlich niedrigere Heizkosten ausgehen als bei einem großzügigeren Objekt.
- Perfekte Bungalow-Größe: Nicht selten werden Fertighäuser mit 100 qm ebenerdig als Bungalow gebaut. Das bietet gleich mehrere Vorteile wie barrierefreien Wohnraum oder räumliche Gestaltungsfreiheit, da keine obere Etage bei tragendem Mauerwerk berücksichtigt werden muss.
Was kostet ein 100 qm Bungalow-Fertighaus?
Ein Fertighaus-Bungalow mit 100 qm ist zu den gleichen Hauspreisen erhältlich wie ein mehrgeschossiges Modell. Konkret hängt auch bei einem Fertighaus-Bungalow mit 100 qm der Preis vor allem von der Ausbaustufe, Energieeffizienz & Ausstattungsqualität ab. Allerdings profitieren Sie bei einem ebenerdigen 100 qm Fertighaus von der Abwesenheit tragender Wände im Hausinneren sowie der Möglichkeit, weitestgehend ohne Verkehrsflächen und deswegen besonders offen zu bauen. So nutzen Sie den vorhandenen Wohnraum bestmöglich aus, weshalb meist auch weniger Wohnfläche im Vergleich zu einem ansonsten bauähnlichen 1,5-Geschosser nötig sind. Denken Sie beispielsweise allein an die zusätzlichen Quadratmeter, die Sie bei mehreren Geschossen für Treppen und auch in der oberen Etage für Flure mit einpreisen müssen. Andererseits fallen bei einem Fertighaus als Bungalow mit 100 qm im Gegenzug höhere Kosten für das Grundstück, die Bodenplatte und das Dach an. Denn die Grundfläche entspricht hier der gesamten Wohnfläche. Letzten Endes gleichen sich die Kosten also insgesamt wieder aus.
Fertighaus-Bungalow bis 100 qm
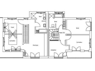
Grundrissplanung beim Fertighaus mit 100 qm
Nicht nur für kleine Fertighäuser bis 100 qm Grundfläche ist ein cleverer Grundriss das A und O. Einerseits sollten Sie den Grundriss an Ihren aktuellen Bedürfnissen ausrichten, andererseits aber auch etwaige spätere Veränderungen im Hinterkopf behalten. So bietet es sich bei einer Familie mit Kindern an, mehrere separate Zimmer zu ermöglichen, und dabei am besten Rigipswände zu verwenden, die sich relativ leicht wieder versetzen lassen. Dagegen ist bei Singles oder Paaren ein offenes Raumkonzept vorzuziehen oder ein zusätzliches Zimmer wird bewusst eingeplant, ob als Arbeitszimmer, als späteres Kinderzimmer oder als Gästezimmer.
Immer im Blick behalten sollten Sie die Leitungsführung, egal ob für Elektrik, Heizung oder Wasser. Denn wenn beispielsweise Küche, WC und Badezimmer sich in räumlicher Nähe befinden, ist das Verlegen von entsprechenden Leitungen mit weniger Aufwand verbunden und damit kostengünstiger; wollen Sie einen Raum für unterschiedliche Zwecke nutzen, so benötigen Sie eventuell zum Beispiel mehr Steckdosen.
Verzichten Sie größtmöglich auf Flure und Treppen und präferieren Sie eine funktionale und offene Gestaltung ohne Nischen wie bei einer Wohnküche, sowie deckenhohe Wandschränke statt einer abgeschlossenen Kammer, und Flachdächer. Bodentiefe Fenster schlagen zwar mit einem höheren Preis zu Buche, lassen Ihr Zuhause aber weitläufiger wirken. Nicht zuletzt empfiehlt es sich, den Hauswirtschafts- und Technikraum in den Keller zu verlegen, wenn dieser vorhanden ist.
Beispielhafte Raumgliederung im Haus bis 100 qm
Als Beispielrechnung für eine Familie mit zwei Kindern können Sie bei einem Massiv- oder Fertighaus mit 100 qm von folgenden Richtwerten für Raumgrößen ausgehen:
Bei sparsamster Einteilung ist für den Wohn-Essbereich mit offener Küche mit 43 qm zu rechnen, ein modernes Bad beansprucht 9 qm, für ein separates WC sollten Sie 3 qm reservieren, und ein Flur weist mindestens 5 qm auf. Dann benötigt die Familie ein Elternschlafzimmer mit 16 qm und zwei Kinderzimmer mit jeweils 10,5 qm sowie einen Hauswirtschaftsraum von 3 qm.
Unser Tipp: Suchen Sie nach Anregungen für die Grundrissplanung Ihres Fertighauses mit 100 qm Wohnfläche bei erprobten Modellen unserer Haushersteller.
Grundrisse für Fertighäuser mit 100 qm












































































































