
Mehrgenerationenhaus bauen
In den letzten Jahrzehnten ging der Trend in die Richtung der eigenständigen und voneinander getrennten Lebensweise der Generationen. Doch das Mehrgenerationenhaus ist im Kommen!
Mehrere Faktoren lösten einen Umkehrtrend aus. Immer mehr Menschen entscheiden sich bewusst für eine gemeinsame Lebensgestaltung mehrerer Generationen unter einem Dach.
Damit ist nicht unbedingt das Haus für mehrere Generationen geboren. Es ist vielmehr das Wiederaufnehmen einer traditionellen Lebensweise, der das neue Mehrgenerationenhaus angepasst wird und durch viele Vorteile überzeugt. Dabei spielt es keine Rolle, ob eine Familie oder unterschiedliche Familien miteinander wohnen.

Kostenlos Kataloge & Informationen anfordern!
Seien Sie bestens informiert bei Ihrer Traumhauswahl! Fordern Sie Informationen von Baupartnern in Ihrer Nähe an, um bei der Entscheidung gut vorbereitet zu sein.
Kataloge anfordernWas ist ein Mehrgenerationenhaus?
Wie der Name schon vermuten lässt, ermöglicht ein Mehrgenerationenhaus das generationsübergreifende, gemeinschaftliche Leben unter einemDach. Dies bedeutet, dass Familienmitglieder unterschiedlichsten Alters und Lebenssituation gemeinsam in einem Haus wohnen. Der Klassiker bildet dabei das Zusammenwohnen von einer Familie inklusive der Großeltern. So können die jungen Eltern gelassener ihrer Karriere nachgehen, während die Großeltern mehr Zeit mit ihren Enkeln verbringen können.
Ein Mehrgenerationenhaus eignet sich aber auch besonders für Patchworkfamilien mit mehreren Kindern und Verwandten.
Zusammen leben, gegenseitig helfen
Das Grundprinzip eines Mehrgenerationenhauses ist das Gegenseitigkeitsprinzip. Dabei handelt es sich um die verschiedensten Hilfen, die den Alltag jedes Bewohners vereinfachen. Die Aufsicht der Kinder und Unterstützung im Alltag zählen genauso dazu, wie das Erledigen von Einkäufen oder leichte pflegerische Maßnahmen. Neben der gegenseitigen Hilfe ist die gleich hohe Lebensqualität jedes Bewohners ein wichtiges Kriterium, das bereits in der Planungsphase berücksichtigt wird.
Was muss bei der Planung beachtet werden?
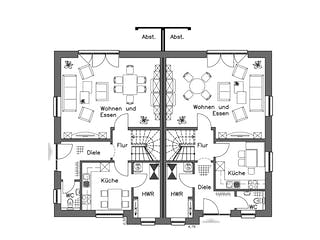
Ein Haus für mehrere Generationen ermöglicht den Bewohnern, den Alltag gemeinsam zu gestalten und ihn für alle Beteiligten erheblich zu erleichtern. Vorausgesetzt, es werden von den Bauherren bereits von Anfang an alle wichtigen Kriterien berücksichtigt. Denn das Mehrgenerationenhaus ist wesentlich mehr als ein Haus mit vielen Zimmern. In den meisten Fällen benötigt es mindestens zwei Wohnungen unter einem Dach. Klassisch hierfür ist das Zweifamilienhaus oder Doppelhaus. Gerne wird aber auch ein einfaches Einfamilienhaus mit Einliegerwohnung geplant oder nachträglich auch ein Anbau hinzugefügt werden.
Ein Fertighaus oder Massivhaus für zwei bis drei Generationen zu bauen, erfordert eine gut durchdachte Planung mit dem Blick in die Zukunft aller zukünftigen Bewohner. Folgende Aspekte sollten dabei mit einbezogen werden:
- Anzahl der Wohneinheiten
- Anzahl notwendiger Räume pro Wohneinheit
- Gemeinschaftsräume
- Hobbyräume
- Gemeinschaftsküche oder getrennte Küchen
- Barrierefreie Badausstattung
- Barrierefreier Zugang zu allen Etagen des Hauses
- Rollstuhlgerechter Wohnbereich
Vor allem die Barrierefreiheit zu den höher gelegenen Etagen des Hauses ist von großer Bedeutung. Ein erfahrener Haushersteller berät in allen Bereichen kompetent und unterstützt mit seiner Erfahrung dabei, die gewünschten Individuallösungen zu möglichst niedrigen Kosten umzusetzen.
Wählen Sie jetzt ein passendes Mehrgenerationenhaus aus
Die Ausstattung im Mehrgenerationenhaus
Die große Auswahl an Fertighäusern als auch Massivhäusern, die speziell als Mehrgenerationenhäuser konzipiert werden, erfüllen jeden individuellen Wunsch von der Luxusküche mit integrierter Kochinsel bis zur gemütlichen Wohnküche. Für eine möglichst hohe Flexibilität ist es sinnvoll, alle Badezimmer im Haus seniorengerecht einzurichten. Auch die junge Generation schätzt beispielsweise den komfortablen Zugang einer bodengleichen Dusche. Die großzügige Bemessung der Badezimmer, um Dusche und Badewanne zu integrieren, ist beim Neubau eine gute Investition in die Zukunft.
Durch das enge Zusammenleben von mehreren Menschen auf begrenztem Raum ist es wichtig, für ausreichend Rückzugsmöglichkeiten zu sorgen. Planen Sie kleine Ecken der Ruhe in den Grundriss eines Mehrfamilienhauses mit ein. Um weiterhin den Geräuschpegel im Haus gering zu halten, sollte auf eine effektiveDämmungund einen optimalenSchallschutz geachtet werden. So können Kinder und Erwachsene ungestört zusammen leben.

Warum sollte man ein Mehrgenerationenhaus bauen?
Häuser für mehrere Generationen bringen einige Vorteile mit sich. Gemeinsam mit den Eltern ein Haus zu bauen, reduziert beispielsweise die Kosten für die zukünftigen Bewohner und das gemeinsame Leben. Karriere und Kinder können besser unter einen Hut - ein Dach - gebracht werden und Großeltern können problemlos gepflegt werden.
Vorteile
Kinderbetreuung durch andere Familienmitglieder
Alltagshilfe für die ältere Generation
Geteilte Gartenarbeit
Gestärkter Zusammenhalt
Geteilte Haus- und Grundstückkosten
Nachteile
Durch größere Wohnfläche höhere Baukosten
Erhöhtes Konfliktpotenzial
Weniger Privatsphäre
Verstärkte Geräuschkulisse
Ein Haus für mehrere Generationen bauen lassen
Die verschiedenen Hausbaufirmen von Fertig- und Massivhäusern bieten anhand ihrer langjährigen Erfahrung vielfältige Konzepte an. Interessante Alternativen, wie das Mehrfamilienhaus oder Reihenhaus mit einer größeren Anzahl an Wohneinheiten stehen gleichermaßen zur Auswahl, wie die traditionelle Lösung mit nur zwei bis maximal drei Wohneinheiten in Doppelhäusern oder Zweifamilienhäusern.
Beim Haustyp sind ebenfalls verschiedene Ausführungen denkbar. Eine Stadtvilla kann beispielsweise durch einen Anbau mit seperater Wohneinheit ergänzt werden. Und selbst ein Bungalow eignet sich als Mehrgenerationenhaus. Mit einer ausreichend großen Wohnfläche auf einem weitläufigen Grundstück, kann beispielsweise eine Einliegerwohnung problemlos integriert werden. Zusätzlicher Vorteil hier ist die Barrierefreiheit, die bei einem Bungalow ohne viel Aufwand zu erreichen ist.

Welche Bauweisen eignen sich für ein Mehrgenerationenhaus?
Vor allem die Fertigbauweise eignet sich als Haus für mehrere Generationen. Sie bietet praktische Lösungen, um den Wohnbereich verschiedenen Lebenssituationen auch nach dem Bau anzupassen. Ein Fertighaus ist mindestens so flexibel wie ein Massivhaus zum gleichen Preis.
Darüber hinaus können Sie folgende Vorteile genießen:
- Fertigstellungszeitpunkt bzw. Einzugstermin ist vertraglich vereinbart
- Im Werk vorgefertigte Elemente sorgen für Passgenauigkeit und kurze Bauzeit
- Exakt kalkulierbare Kosten durch vertraglich festgelegten Preis
Dies sind einige Pluspunkte, aber auch mit einem Massivhaus sind Sie sehr gut beraten. So werden Sie bei beiden Bauweisen von erfahrenen und renommierten Auftraggebern von Anfang bis Ende unterstützt. Zudem eignet sich sowohl ein Fertighaus als auch ein Massivhaus für die Niedrigenergie-Bauweise und ermöglichen einen hohen Energiestandard.
Wenn Sie ein Musterhaus besuchen, erhalten Sie einen ersten Eindruck und können direkten Kontakt zu den Herstellern aufnehmen. Noch einfacherer und bequemer ist jedoch unsere Haussuche. Dort finden Sie nicht nur Musterhäuser sondern auch zahlreiche Beispielhäuser verschiedener Anbieter in jeder Bauweise. So finden Sie genau das, was Sie und Ihre Familie als Wohnraum benötigen.
Empfohlene Baufirmen die Mehrgenerationenhäuser bauen
Fazit: Mehr Leben mit mehr Generationen
Wenn Sie ein Mehrgenerationenhaus bauen, profitieren Sie von der gegenseitigen Hilfe der Familienmitglieder. Zudem können Sie sich sämtliche Kosten um das Haus teilen. Das fängt beim Grundstück und den Nebenkosten an und geht bis zu den laufenden Kosten im Alltag.
Vergleichen Sie verschiedene Ausführungen des Mehrgenerationenhauses - vom ebenerdigen Bungalow über die geräumige Stadtvilla bis hin zum dreigeschossigen Doppelhaus. Sämtliche Beispielhäuser der Baufirmen können darüber hinaus an Ihre persönlichen Anforderungen und Bedürfnisse angepasst werden.
Kosten teilen und sparen
Gegenseitige Unterstützung
Vielfache Grundrissvarianten

Finden Sie heraus, welches Haus am besten zu Ihnen passt!
In unserem Quiz können Sie wichtige Eckdaten festlegen, verstehen, welches Haus zu Ihnen passt und herausfinden, welche Baupartner es am besten bauen können.
Hausbau-Assistenten starten



















































