Barrierefrei bauen: Wohnglück ohne Grenzen

Barrierefreiheit nach DIN 18040 bedeutet allen Menschen – auch Menschen mit Behinderungen – ein gleichberechtigtes Miteinander in der Gesellschaft zu ermöglichen. Das schließt auch eine selbstbestimmte und weitgehend eigenständige Lebensführung in der eigenen Wohnung mit ein. Die Begriffe barrierefreies Bauen sowie alters- und behindertengerechtes Bauen bezeichnen hierbei ähnliche Anforderungen an den Wohnungsbau, die für eine inklusive Gemeinschaft zunehmend an Bedeutung erlangen.
So stellt barrierefreies Bauen nicht nur für Menschen mit Behinderungen eine Wohnwertverbesserung dar, sondern auch für Familien mit Kleinkindern oder ältere Personen. Das Attribut altersgerechtes Bauen genau wie das Seniorenhaus werden oftmals unter dem Oberbegriff der Barrierefreiheit subsumiert, wobei es einige definitorische Unterschiede gibt. Welche das im Einzelnen sind, klären wir im Folgenden, genau wie die Frage, welche Maßnahmen beim barrierefreien Bauen von Anfang an getroffen werden sollten.

Barrierefreies Haus: Definition
Barrierefreiheit wird in der DIN 18040, die vorherige Normen wie die DIN 18024 ersetzt, wie folgt definiert: Barrierefreies Bauen erfordert ein Wohnumfeld, in dem alle Menschen, auch wenn sie auf einen Rollstuhl oder andere Hilfsmittel angewiesen sind, umstandslos Zugang zu Wohnungen, sowie zu Grünanlagen und Verkehrswegen haben und diese uneingeschränkt nutzen können. Das bedeutet unter anderem auch, dass barrierefreier Hausbau erschütterungsarme und gefahrlos mit dem Rollstuhl befahrbare Wege voraussetzt. Dies müssen Sie beispielsweise bei der Grundstückswahl berücksichtigen. ‘Barrierefrei’ ist hier also gleichzusetzen mit ‘rollstuhlgerecht’.
Plant man also ein Massiv- oder Fertighaus barrierefrei, so sollte es ohne große Umbaumaßnahmen unterschiedlichen Anforderungen der Bewohnerinnen angepasst werden können.
Was gehört zur Barrierefreiheit?
Barrierefreies und behindertengerechtes Bauen ohne Hindernisse lässt sich unter anderem mithilfe dieser allgemeinen Maßnahmen realisieren:
- Senkrecht-Aufzug und Treppenlift
- Schwellenlose Türen und stufenlose Wohnfläche (auch Zugang zum Freisitz wie Balkon oder Terrasse) oder Rampen einbauen
- Breite Durchgänge von min. 90 cm
- Ausreichende Bewegungsflächen von min. 1,50 x 1,50 cm, um insbesondere ein Wenden mit dem Rollstuhl zu ermöglichen (auch vor und hinter Türen)
- Unterfahrbare Arbeitsflächen und höhenverstellbare Tische
- Rutschhemmende oder rutschfeste Böden
- Stützen, Griffe und elektrische Fensteröffner
- Bedienungseinrichtungen wie Schalter, Steckdosen und Türgriffe in 85 cm Höhe anbringen (dies kommt auch den Bedürfnissen von Kindern entgegen)
Wer vorausschauend plant, kann darüber hinaus in einem barrierefreien Haus eine Einliegerwohnung anlegen, deren Räumlichkeiten mit einer Küchenzeile sowie einem eigenem WC ausgestattet sind. Bei Bedarf kann diese dann als Betreuungskraft-Wohnung genutzt werden.
Machen Sie von unserem kostenlosen Hausbau-Assistenten Gebrauch, um das perfekte barrierefreie Haus und passende Baufirmen zu finden.
Für wen eignet sich ein barrierefreies Haus?
Grundsätzlich betrachtet, beschränkt sich die Eignung des barrierefreien Hausbaus auf keine bestimmte Personengruppe. Ein barrierefreies Haus kann auch für Menschen ohne Behinderungen, zum Beispiel Senioren oder Familien mit kleinen Kindern, vorteilhaft sein. Der Begriff altersgerechtes Bauen schließt prinzipiell ein breites Spektrum an Wohnkonstellationen ein. Gerade für Menschen mit Behinderung oder anderen Einschränkungen bietet sich barrierefreies Bauen aber natürlich besonders an. Denn in einem barrierefreien Haus können Sie alleine zurechtkommen und wohnen, ohne dabei auf die Hilfe anderer angewiesen zu sein. Ein altersgerechtes Haus hingegen ist nicht immer vollständig barrierefrei und somit behindertengerecht, da hierfür meist noch weitere bauliche Maßnahmen anfallen.
Im besten Fall planen Sie Ihr Eigenheim von Anfang an so, dass ein barrierefreies Haus leicht umsetzbar ist. Aber auch falls Sie Ihr Haus nicht direkt auf behinderten- oder altersgerechtes Bauen ausrichten, können Sie später immer noch entsprechende Umbaumaßnahmen verrichten. Allerdings lassen sich mit einer sorgfältigen Planung die Kosten für einen späteren Umbau zu einem barrierefreien Haus deutlich reduzieren.
Besonders einfach lässt sich Barrierefreiheit zum Beispiel bei einem ebenerdigen Bungalow realisieren, da hier grundsätzlich keine Treppen vorhanden sind.
Wenn Sie Ihr Zuhause barrierefrei bauen, kann dies die Notwendigkeit eines Umzugs im Alter oder bei unerwarteten Änderungen der Lebenssituation hinauszögern oder überflüssig machen und wird zudem staatlich gefördert, wenn Sie bestimmte Vorgaben einhalten. Zudem repräsentiert der barrierefreie Hausbau eine echte Investition in die Zukunft – denn aufgrund des demografischen Wandels und der damit erhöhten Nachfrage an altersgerechtem Wohnraum erzielen barrierefreie Häuser einen hohen Wiederverkaufswert.
Was kostet barrierefreies Bauen?
Wie viel ein barrierefreies Haus kostet, hängt von zahlreichen Faktoren, wie der Größe, der Ausbaustufe und der Ausstattung ab. Generell verzeichnet allerdings ein barrierefreier Bungalow einen erhöhten Platzbedarf. Bei einem ungefähren Durchschnitts-Preis pro umbautem Quadratmeter von 2.700 Euro fallen dementsprechend höhere Kosten an. Nichtsdestotrotz können altersgerechte Häuser häufig ohne Kinderzimmer gebaut werden und unterscheiden sich deshalb von der Wohnraumgröße nicht essentiell von einem Familien-Bungalow.
Zusätzlich müssen alle, die barrierefrei bauen wollen, Kosten für Keller oder Bodenplatte, die Baunebenkosten und das Grundstück tragen. Hinzu addiert werden weitere Ausgaben, zum Beispiel für die barrierefreie Außenanlage, die hindernisfreie Ausstattung oder die Versicherungen.
Staatliche Förderungen für barrierefreies Bauen
Ein Haus barrierefrei zu bauen, bringt mehr Kosten mit sich als der Bau eines vergleichbaren Hauses ohne Spezialausstattung. Deshalb existieren bestimmte Förderprogramme für einen Neu- oder Umbau für Barrierefreiheit nach DIN 18040:
- Finanzierungshilfen von Unfallkasse und Krankenkasse
- Zuschuss für wohnumfeldverbessernde Maßnahmen durch Pflegekasse ab Pflegegrad 1
- Wohnraumförderung für barrierefreies Bauen der Bundesländer und Kommunen
- KfW-Zuschuss 455-B zur Barrierereduzierung (aktuell Antragsstopp, Stand: Februar 2024) und Kredit 159 für altersgerechtes Umbauen
- Stiftungsförderungen für behindertengerechten Umbau
Kann man ein barrierefreies Haus von der Steuer absetzen?
Behindertengerechtes Bauen oder auch entsprechende Umbaumaßnahmen zählen steuerlich gesehen zu den außergewöhnlichen Belastungen. Dementsprechend lassen sich die Aufwendungen für zum Beispiel ein barrierefreies Bad, rollstuhlgerechte Türen oder einen Treppenlift in vollem Umfang bei der Steuererklärung geltend machen. Alternativ existiert auch der Behinderten-Pauschbetrag. Zur Anerkennung müssen Sie meist ein ärztliches Attest beifügen, das bestätigt, dass Sie ein barrierefreies Haus benötigen.
Wollen Sie allerdings barrierefrei bauen, um für die Zukunft vorzusorgen oder den Wert Ihres Eigenheims zu steigern, ohne dass aktuell eine medizinische Indikation besteht, können Sie ein Fünftel der Handwerkerkosten steuerlich absetzen – pro Jahr bis zu 1.200 Euro.
Maßnahmen für Barrierefreiheit nach DIN 18040
Unterschied zwischen altersgerechtem & behindertengerechtem Bauen
Auch wenn die Bezeichnungen behindertengerechtes und altersgerechtes Bauen häufig synonym gebraucht werden, beziehen sie sich zumindest im offiziellen Sprachgebrauch nicht auf das Gleiche. Behindertengerechtes Bauen läuft auf völlige Barrierefreiheit hinaus, auf senioren- oder altersgerechtes Bauen trifft das nur zum Teil zu. Nicht alle älteren Personen benötigen beispielsweise eine Gehhilfe. Daher muss eine altersgerechte Wohnung oder ein Seniorenhaus nicht unbedingt vollständig mit einem Rollator oder Rollstuhl zugänglich sein.
Seniorenhaus altersgerecht bauen: Unabhängig wohnen bis ins hohe Alter
Naturgemäß stellt die Generation 60+ an ein neues Eigenheim andere Anforderungen als junge Paare und Familien mit Nachwuchs, selbst wenn keine Einschränkungen vorliegen. Altersgerecht zu bauen zielt aber selbstverständlich auch darauf ab, die Eigenständigkeit und das Leben in den eigenen vier Wänden auch für Best Ager möglichst lange zu erhalten. Die weitsichtige Planung eines auf zukünftige Bedürfnisse abgestimmten Eigenheims garantiert älteren Menschen langfristig Autonomie in ihrer gewohnten Umgebung.
Altersgerecht bauen - beliebte Häuser
Kleine Häuser für Senioren
Fertighaus barrierefrei
Barrierefreier Bungalow
Barrierefrei bauen: Vorteile und Nachteile
Vorteile
Längere Nutzung möglich, auch bei altersbedingten Beeinträchtigungen
Mehr Komfort durch großzügigere Raumaufteilung
Erhöhter Wiederverkaufswert aufgrund steigender Nachfrage
Weniger Kosten, im Vergleich zu nachträglichen Umbauten
Nachteile
Erhöhter Platzbedarf beim barrierefreien Haus
Große Grundfläche fordert großes Grundstück und folglich höhere Grundstückskosten
Barrierefreie Einrichtung und angepasste Ausstattung erhöhen den Preis
Welche Baufirmen können barrierefrei bauen?
Für den Bau eines barrierefreien Hauses wählt man charakteristischerweise einen Bungalow – diesen können Sie mit fast jedem unserer geprüften Anbieter bauen. Die barrierefreie Ausstattung, wie etwa breitere Türen, elektrische Fensteröffner und rutschfeste Bodenbeläge lassen sich bei nahezu jedem Haushersteller mit einplanen.
Barrierefreie und altersgerechte Grundrisse
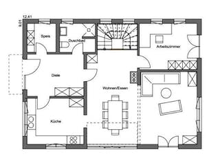
Barrierefreies Haus: Grundriss
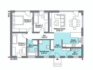
Bungalow barrierefrei: Grundriss
Altersgerechtes Bauen: Grundrisse
Barrierefreies Bauen: Häufige Fragen


























































































