
Stadtvilla bauen

Zu den beliebtesten Haustypen beim Neubau gehört die Stadtvilla – kein Wunder, die schlichte Eleganz, geradlinige Konstruktion und der klare Aufbau sprechen für sich. Eine Villa zu bauen repräsentiert heute entgegen der noch immer verbreiteten Vorstellung keinen unerschwinglichen Luxus. Denn die Stadtvilla der Gegenwart geht zwar auf die Anwesen und Landgüter des Adels und Großbürgertums zurück, hat sich aber mittlerweile vom elitären Nimbus ihrer architektonischen Vergangenheit entfernt.
Wer eine Stadtvilla bauen möchte, entscheidet sich damit zwar immer noch für ein repräsentatives Domizil, doch insbesondere die Ausstattung und Größe bestimmen letzten Endes, ob es sich um eine Luxus-Stadtvilla, eine Stadtvilla in gehobener Ausführung oder gar ein preiswertes Objekt handelt.
Im Folgenden erfahren Sie alles Wissenswerte über den Stadtvilla-Bau, finden anschauliche Angebote unserer geprüften Baupartner sowie Inspirationen und Tipps zum Stadtvilla-Grundriss.

Stadtvilla bauen: Empfohlene Angebote

Kostenlos Kataloge & Informationen anfordern!
Seien Sie bestens informiert bei Ihrer Traumhauswahl! Fordern Sie Informationen von Baupartnern in Ihrer Nähe an, um bei der Entscheidung gut vorbereitet zu sein.
Kataloge anfordernWas ist eine Stadtvilla?
Wollen Sie eine Stadtvilla bauen, variieren die spezifischen Merkmale je nach persönlichem Geschmack – so können Sie durchaus eine nordisch anmutende Stadtvilla mit Klinker für die Fassade gestalten, eine Stadtvilla als Doppelhaus in modernem Stil planen oder auch mit einer mediterranen Stadtvilla ein Gefühl von Urlaub ins Eigenheim holen. Auch die Bauweise steht Ihnen offen, ob Sie eine Massiv- oder Fertighaus-Stadtvilla planen, hat keinen Einfluss auf den Haustyp oder die Baukosten.
Ein bestimmter Immobilienwert ist dagegen als Attribut eher nachrangig. Die Wohnlage in einem bevorzugten Viertel am Stadtrand oder in verkehrsgünstiger Lage im Umland ist hingegen häufiger ein Kriterium, wenn Sie eine Stadtvilla bauen.
Doch wann ist ein Haus eine Stadtvilla? Bedingt durch die historische Entwicklung dieses Haustyps zeichnet sich eine Stadtvilla in der Regel durch folgende Charakteristika aus:
- Mindestens zwei Vollgeschosse
- Geräumige und helle Wohnräume
- Zelt-, Mansard- oder Walmdach
- Stadtvilla-Grundriss als Quadrat oder Rechteck
- Geschmackvoller, weitläufiger Garten (bei städtischen Grundstücken unter Umständen etwas überschaubarer angelegt)
Der Hausbau einer Stadtvilla eignet sich aufgrund des großzügigen Platzangebots insbesondere für Paare und Familien, es sind aber durchaus auch kleinere Ausführungen möglich. Stadtvilla-Grundrisse ermöglichen darüber hinaus oft viele Extras wie zusätzliche Schlafzimmer, Bäder, Hobbyräume oder ein großes Arbeitszimmer.
Stadtvilla: Hausbau in Fertigbauweise
Massivhaus-Stadtvilla
Stadtvilla: Architektur-Geschichte
Das Konzept der Stadtvilla beim Hausbau geht bereits auf das Alte Rom zurück, wo die Bezeichnung Villa Landgüter außerhalb der Stadt benannte. Mit der zunehmenden Urbanisierung entstanden hieraus während der Renaissance Herrenhäuser am Stadtrand wie die berühmten Medici-Villen in Italien, deren Stil sich in heutigen mediterranen Stadtvillen widerspiegelt. Spätestens seit dem frühen 19. Jahrhundert markierte die Villa dann von Wohlstand geprägte, prestigeträchtige Vororte und Wohnviertel – der Begriff Stadtvilla war geboren.
Somit bezieht sich der Name Stadtvilla ursprünglich auf ein freistehendes Anwesen in städtischer oder auch stadtnaher Lage. Teilweise findet sich auch der Terminus Stadthausvilla. Aus dieser noblen Historie ergibt sich auch eines der heutigen Kernmerkmale der Stadtvilla, nämlich der ausgedehnte Wohnraum und oft eine überdurchschnittliche Zimmeranzahl, egal ob Sie den gemütlichen Landhaus- oder einen anderen Baustil bevorzugen.
Woher kommt der Ausdruck Stadtvilla?
Die Benennung Villa stammt aus dem Lateinischen und bedeutet übersetzt Landgut oder Landhaus. Bereits im römischen Reich trugen die Herrenhäuser reicher Landbesitzer diesen Namen. Seitdem hat die Villa einen starken Wandel erfahren, was Architektur und Bewohner angeht, doch der Name ist geblieben. Die heute synonym gebrauchte Stadtvilla wird außerdem nicht mehr ausschließlich in ländlichen Regionen erbaut.
Wählen Sie jetzt eine passende Stadtvilla aus
Energieeffiziente Stadtvilla bauen
Wenn Sie heute eine neue Stadtvilla bauen, profitieren Sie bereits standardmäßig von hoher Energieeffizienz laut GEG, können aber auf Wunsch selbstverständlich eine noch nachhaltigere und umweltfreundlichere Effizienzstufe realisieren. Dank innovativer Materialien und einer intelligenten Konstruktion besitzt eine Stadtvilla eine exzellente Wärmedämmung, die dafür sorgt, dass Sie langfristig Verbrauchskosten sparen und ressourcenschonend wohnen. Gleiches gilt für ökologisch sinnvolle Technologien auf dem aktuellsten Stand wie Wärmepumpe oder PV-Anlage, die Sie am besten von vornherein beim Stadtvilla-Bau mit einplanen.
Unser Tipp: Ab dem KfW-Standard 40 erhalten Sie staatliche Förderungen und nutzen so nicht nur das volle Energiesparpotenzial aus, sondern reduzieren zudem Ihre Baukosten.
Stadtvilla mit Klinker
Luxus-Stadtvilla
Stadtvilla mit Einliegerwohnung
Mediterrane Stadtvilla
Stadtvilla: Vorteile und Nachteile
Vorteile:
Repräsentatives Eigenheim
Weitläufiger Wohnraum
Geschützte Privatsphäre
Oft großer Gartenbereich
Geräumiger Grundriss bietet Platz für Arbeits- und Gästebereich
Nachteile:
Gegebenenfalls großes Grundstück mit Mehrkosten für ausgedehnten Garten nötig
Zeitaufwendige Grundstückspflege
Teilweise höhere Baukosten als bei anderen Haustypen
Stadtvilla: Hausbau-Anbieter
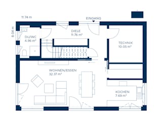
Stadtvilla-Grundriss: Tipps & Inspiration
Offene, lichtdurchflutete Gestaltung bei gleichzeitig viel persönlichem Raum für alle Bewohner – ein Blick auf die Stadtvilla-Grundrisse unserer Anbieter verschafft Ihnen einen ersten realistischen Eindruck vom Leben in einem solchen kompakten und doch komfortablen Eigenheim.
Unser Tipp: Auch wenn der Grundriss einer Stadtvilla dank der mindestens zwei Vollgeschosse mehr Quadratmeter als bei anderen Objekten umfasst, sollten Sie dennoch Grundprinzipien wie möglichst schlichte Gestaltung und Reduzierung wenig genutzter Flächen beachten, um das Optimum an Wohnraum herauszuholen – so sind auch Extras wie eine Doppelgarage leicht integrierbar.
Lassen Sie sich darüber hinaus von den vielfach erprobten Grundrissen der Stadtvillen unserer Baufirmen inspirieren – diese können natürlich bei Bedarf an Ihre Vorstellungen individuell angeglichen werden.
Stadtvilla-Grundrisse
Stadtvilla-Bau: Häufige Fragen






































































































































































































































































